Prenájom bytu 4+1 • 97 m² bez realitkySchmidtstedter Str. 28 Erfurt Altstadt Thüringen 99084
Schmidtstedter Str. 28 Erfurt Altstadt Thüringen 99084MHD 2 minúty pešoNa prenájom je čerstvo zrekonštruovaný 4-izbový byt v 1. poschodí určený pre prvé nasťahovanie. Byt sa nachádza vo fasáde staršej budovy z obdobia zakladateľskej éry v centre Erfurtu. Izby sú orientované buď k pokojnej strane ulice alebo k nádvoriu, čím ponúkajú dokonalú kombináciu centrálneho mestského života a relaxačného pokoja.
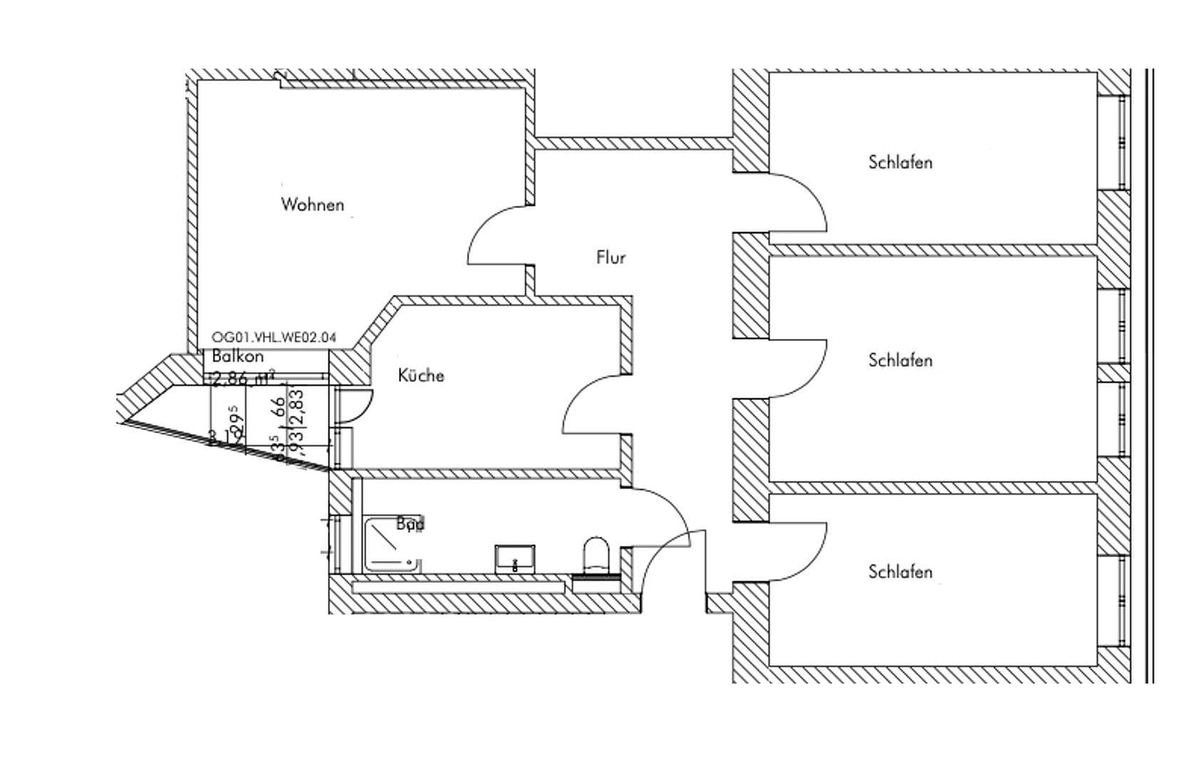
Byt disponuje 3 spálňami a obývacou izbou. Balkón je prístupný z kuchyne. Vysoké stropy pôvodnej budovy nechávajú miestnosti pôsobiť otvorene a dodávajú im pocit veľkorysosti.
Moderná kúpeľňa s denným svetlom je momentálne v rekonštrukcii; dokončenie je plánované na koniec januára (včas na obhliadku). Kuchyňu si môže budúci nájomca zariadiť podľa vlastného uváženia, prípadne môže byť na požiadanie namontovaná kuchyňa za príplatok. Kuchynská miestnosť je veľkorysá, svetlá a ponúka priestor na spoločné varenie a stolovanie, čo je ideálne pre rodinu.
Byt sa nachádza v ulici Schmidtstedter, v centrálnej časti Erfurtu. Hlavná stanica aj Plaza Anger 1 sú dostupné pešo za pár minút. Poloha zaisťuje veľmi dobré spojenie s verejnou hromadnou dopravou (ako aj s diaľkovou) a krátke trasy k nákupným možnostiam a službám v centre, ako sú kaviarne, reštaurácie, lekárne a lekári.
Napriek centrálnemu umiestneniu sa byt nachádza v pomerne pokojnom obytnom prostredí. Nedaleký mestský park a Gera-Auen lákajú na prechádzky alebo na uvoľnenie v zelene.
Kuchyňa nie je súčasťou prenájmu; budúci nájomca si ju môže individuálne navrhnúť a zariadiť, prípadne si môže zvoliť montáž kuchyne za príplatok.
Všetky ostatné miestnosti sú čerstvo zrekonštruované a pripravené na nasťahovanie.
Okrem toho patrí ku bytu aj pivničná miestnosť v tej istej budove určená na ďalšie uskladnenie.
Obhliadka sa predpokladá na stredu 28.01.2026.
Parametre nehnuteľnosti
| Vek | Nad 50 rokov |
|---|---|
| Stav | Po rekonštrukcii |
| Poschodie | Prízemie |
| Úžitková plocha | 97 m² |
| Dostupné od | 31. 1. 2026 |
|---|---|
| Dispozícia | 4+1 |
| Číslo inzerátu | 983514 |
| Cena za jednotku | 11 € / m2 |
Čo táto nehnuteľnosť ponúka?
| Balkón | |
| MHD 2 minúty pešo |
| Pivnica |
V okolí nehnuteľnosti nájdete
Stále hľadáte to pravé?
Nastavte si strážneho psa. Ponuky vybrané na mieru dostanete súhrnne 1× denne e-mailom. S Premium profilom máte po ruke rovno 5 strážcov a keď sa niečo objaví, informujú vás obratom.






