Predaj domu • 232 m² bez realitky, Dolné Sasko
, Dolné SaskoMHD 2 minúty pešo • ParkovanieObjekt postavený v roku 1937 stojí na vlastníckom pozemku o rozlohe 576 m² a nepatrí medzi chránené pamiatky. V roku 1997 bol rozšírený o príček a priebežne renovovaný. Vyhovuje ako rodinný dom (s menšími úpravami) aj ako trojrodinný dom investičného charakteru. Ponúka sa teda kombinácia vlastného bývania a prenájmu.
Momentálne je objekt rozdelený na 3 obytné jednotky, pričom iba prízemie je prenajaté. Suterén nebol kvôli plánovanému predaju znovu prenajatý a nájomná zmluva pre podkrovie bola vypovedaná k 30.4.2026 a ani ono nebude znovu prenajímané. Všetky byty majú samostatné merače elektriny a vody.
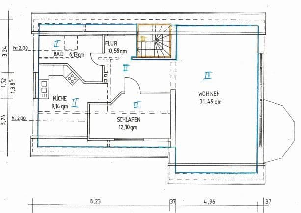
Posledné nájomné výnosy pre celý objekt dosahovali sumu 29 154 EUR (27 900 EUR za 3 obytné jednotky plus 1 254 EUR za 3 parkovacie miesta). Obytná plocha je približne 230 m². Nájomné v prízemí sa zvyšuje podľa indexu spotrebiteľských cien.
Všetky byty sú vybavené kuchyňami, ktoré sú zahrnuté v kúpnej cene. Každý byt je prístupný samostatným vonkajším vstupom. Pre každý byt sú k dispozícii samostatné merače elektriny, vody a vykurovania, ktoré sú voľne prístupné v suteréne. Vedľa bytu sa v suteréne nachádza užitočná plocha o rozlohe približne 35 m², ktorá je využívaná nájomníkmi ako úložný priestor.
Okrem 3 bytov existuje neobývaná časť budovy, ktorá môže byť prípadne prebudovaná na obytný priestor. Rozšíriteľná plocha je približne 50 m².
Nehnuteľnosť sa nachádza v Adendorfe, Artlenburger Landstr. 8. Centrum mesta Lüneburg je autom vzdialené 5 minút. Autobusová zastávka je len približne 100 metrov od domu. Odtiaľ sa do hlavnej stanice dostanete do 10 minút. O pár minút sa dostanete na diaľnicu A39, odkiaľ ste v Hamburku do 30 minút.
Všetky obchody dennej potreby sa nachádzajú v bezprostrednej blízkosti. Adendorf s viac ako 10 000 obyvateľmi má veľmi dobrú infraštruktúru.
Parametre nehnuteľnosti
| Vek | Nad 50 rokov |
|---|---|
| Číslo inzerátu | 983363 |
| Úžitková plocha | 232 m² |
| Celkové poschodia | 3 |
| Stav | Dobrý |
|---|---|
| PENB | F - veľmi nehospodárne |
| Plocha pozemku | 579 m² |
| Cena za jednotku | 2 155 € / m2 |
Čo táto nehnuteľnosť ponúka?
| Balkón | |
| Parkovanie | |
| Terasa |
| Pivnica | |
| MHD 2 minúty pešo |
V okolí nehnuteľnosti nájdete
Stále hľadáte to pravé?
Nastavte si strážneho psa. Ponuky vybrané na mieru dostanete súhrnne 1× denne e-mailom. S Premium profilom máte po ruke rovno 5 strážcov a keď sa niečo objaví, informujú vás obratom.



































