
Predaj domu 5+1 • 254 m² bez realitkyPforzheim Pforzheim Baden-Württemberg 75172
Pforzheim Pforzheim Baden-Württemberg 75172MHD 1 minúta pešo • GarážRozsiahly rodinný dom z roku 1957 sa nachádza v mestskej časti Südweststadt v Pforzheim na pozemku s rozlohou cca 458 m², ktorý je navyše rozšírený o prenájom plochy cca 360 m². Okolie je charakterizované rodinnými domami, zelenými ulicami a pokojnou obytnou atmosférou – ideálne pre tých, ktorí chcú bývať centrálne a zároveň v tichu.
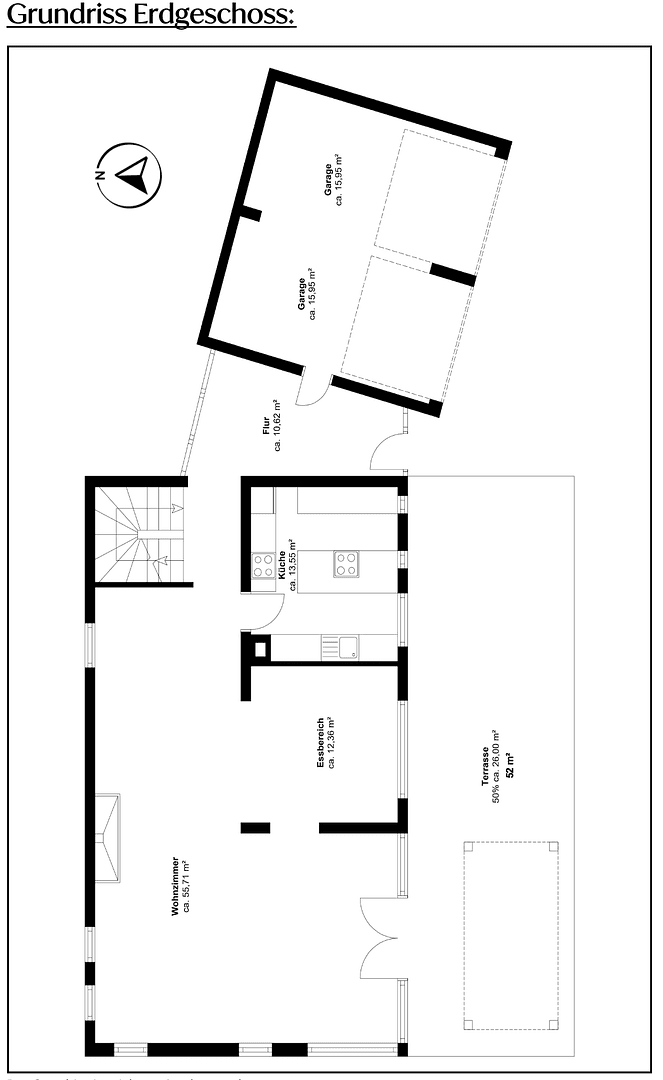
Obytná plocha cca 253,53 m² je rozložená do troch úrovní. Do domu sa dostanete buď cez hlavný vchod, alebo priamo cez dvojitú garáž. Odtiaľ vedie cesta do kuchyne, ktorá je vybavená kvalitnou vstavanou kuchyňou (2012) vrátane varnej ostrova. Srdcom prízemia tvorí otvorený obývací a jedálenský priestor, ktorý je zaplavený svetlom cez veľké okná zimnej záhrady. Ďalší šarm dodáva otvorený krb. Z obývacej izby sa dostanete na priestrannú južnú terasu (52 m²), ktorá je čiastočne krytá masívnym pavilónom a poskytuje priamy prístup do záhrady.
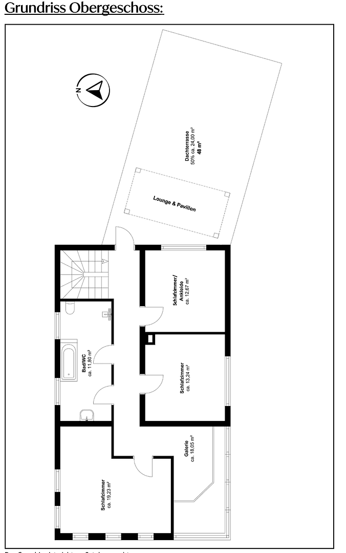
V hornom podlaží sa nachádzajú tri dobre rozvrhnuté izby, ktoré je možné flexibilne využiť ako spálňu, detskú izbu, pracovňu alebo izbu pre hostí. Otvorená galéria spojená s obývacou izbou zabezpečuje aj tu svetlú atmosféru. Poschodie dopĺňa veľká kúpeľňa s vaňou, sprchou a dvojitým umývadlom. Z chodby vstúpite na priestrannú strešnú terasu (48 m²), ktorá je čiastočne krytá masívnym pavilónom a ponúka malebný výhľad na strechy Pforzheimu. Vďaka voľnej orientácii do všetkých strán tu máte celý deň slnko – ideálne pre raňajky, oddych alebo príjemné večerné chvíle.
Podzemné podlažie ponúka okrem kotolne, domácich priestorov a práčovne ešte ďalšiu priestrannú spálňu s prístupom na tretiu terasu (15 m²), ktorá je spojená so záhradou prírodným kameňovým schodiskom. Vďaka polohe na svahu zapadá aj tu dostatok denného svetla, takže miestnosť je svetlá a priateľská. Poschodie dopĺňa aj ďalšia kúpeľňa so sprchou.
Vybavenie domu je kvalitné a udržiavané: V obytných priestoroch je dubová parketa, kúpeľne, vstupná haly a domáce priestory sú obložené ľahko udržiavateľnými dlaždicami, spálne čiastočne s kobercami. Dom je prevažne vybavený drevenými oknami s dvojsklom; okná v prízemí a podzemnom podlaží sú navyše vybavené bezpečnostným sklom. Zatienenie zimnej záhrady je riešené pomocou automatického alebo manuálne ovládateľného vonkajšieho zastrešovacieho systému, v ostatných miestnostiach sú inštalované elektrické rolety.
Dom je vykurovaný naftovým kotlom (1993), ktorý zohrieva všetky miestnosti prostredníctvom radiátorov.
Vonkajšie terasy sú vybavené antracitovými dlaždicami (2021). Pozemok je veľmi udržiavaný: Zelené plochy sú upravené, záhradné oplotenia obnovené. Zavlažovanie prebieha cez inteligentný systém a trávnik väčšinou kosi robotom. Malý rybník, vonkajšia sprcha, drevená chata, sklad dreva a masívna, krytá časť terasy s pavilónom dopĺňajú ponuku. Navyše sú okolo domu prítomné vodovodné a elektrické prípojky, ktoré uľahčujú starostlivosť o záhradu.
Rodinný dom sa nachádza v mestskej časti Südweststadt v Pforzheim, v pokojnej a ustálenej obytné oblasti, ktorá vďaka svojej kopcovitej štruktúre a krásnym výhľadom získava zvláštny šarm. Zároveň je centrum mesta s pešou zónou a trhom rýchlo dostupné – len asi 5 minút na bicykli alebo 10–15 minút pešo. Takto Südweststadt spája príjemnú obytnú atmosféru s vynikajúcim spojením do centra mesta.
Pre každodenné potreby je v bezprostrednom okolí k dispozícii množstvo obchodov: Edeka, Aldi, Lidl a Rewe sú dosiahnuteľné niekoľkými minútami autom alebo dokonca pešo. Pridávajú sa aj pekárne, lekárne a menšie špecializované obchody. Kaviarne a reštaurácie nájdete ako v Südweststadt, tak aj v blízkom centre.
Rodiny profitujú z dobrej infraštruktúry: Viaceré materské školy sa nachádzajú v pešej vzdialenosti. V bezprostrednom okolí sa nachádzajú základná škola Osterfeld, škola Otterstein a škola Weiherberg – všetky sú pohodlne dostupné pešo, na bicykli alebo autobusom. Stredné školy ako gymnázium Hebel, gymnázium Hilda, reálna škola Otterstein a reálna škola Osterfeld sú tiež rýchlo dostupné.
Na oddych zvádzajú priamy kontakt s prírodou, menšie zelené plochy a ihriská v danej mestskej časti. Športové aktivity je možné vykonávať na okolitých športoviskách alebo v miestnych športových kluboch. Obľúbený Enzauenpark je dostupný na bicykli za približne 20 minút a zvádza na prechádzky a voľnočasové aktivity. Zvláštnym lákadlom pre rodiny je aj divočinský park Pforzheim, ktorý je autom dostupný za približne 10 minút. Tiež v krátkej vzdialenosti sa nachádza plynárenská nádrž (Gasometer) Pforzheim, ktorá so svojimi premenlivými 360° panoramatickými výstavami predstavuje kultúrny atrakčný bod ďaleko za hranicami mesta.
Dopravné spojenie je vynikajúce: Viaceré autobusové linky prechádzajú cez Südweststadt a zabezpečujú priamu dopravu do centra mesta a na hlavné nádražie. Hlavné nádražie Pforzheim sa nachádza len asi 1,5 kilometra vzdialené a je dostupné pešo alebo autobusom za pár minút. Po ceste B10 a diaľnici A8 sú Karlsruhe, Stuttgart a celý región rýchlo prístupné.
Südweststadt spája pokojné bývanie, krátke vzdialenosti k obchodom, školám, materským škôlám a kultúre, ako aj ideálne dopravné spojenie – atraktívna lokalita pre rodiny aj pre pracujúcich.
Pozemok: cca 458 m² + prenájom plochy cca 360 m²
Obytná plocha: cca 253,5 m² na troch úrovniach
Povrchy: dubová parketa, dlaždice, kobercové podlahy
Okna: drevené okná s dvojsklom, bezpečnostné sklo v prízemí a podzemnom podlaží
Zatienenie: vonkajšie zatienenie zimnej záhrady, elektrické rolety v ostatných miestnostiach
Vykurovanie: naftový kotol (1993) cez radiátory
Terasy: záhradná terasa (prízemie) 52 m², strešná terasa 48 m², terasa v podzemnom podlaží 15 m², čiastočne kryté pavilónom
Kuchyňa: kvalitná vstavaná kuchyňa (2012) s varnou ostrovkou
Extra: otvorený krb, zimná záhrada, udržiavané a kvalitne upravené zelené plochy
Všetky dodatočné náklady, ako je daň z prevodu nehnuteľnosti vo výške 5 % z kúpnej ceny, ako aj notárske a súdne poplatky, hradí kupujúci.
Parametre nehnuteľnosti
| Vek | Nad 50 rokov |
|---|---|
| Dispozícia | 5+1 |
| PENB | G - Mimoriadne nehospodárne |
| Plocha pozemku | 818 m² |
| Cena za jednotku | 3 146 € / m2 |
| Stav | Dobrý |
|---|---|
| Číslo inzerátu | 982933 |
| Úžitková plocha | 254 m² |
| Celkové poschodia | 2 |
Čo táto nehnuteľnosť ponúka?
| Pivnica | |
| MHD 1 minúta pešo |
| Garáž | |
| Terasa |
V okolí nehnuteľnosti nájdete
Stále hľadáte to pravé?
Nastavte si strážneho psa. Ponuky vybrané na mieru dostanete súhrnne 1× denne e-mailom. S Premium profilom máte po ruke rovno 5 strážcov a keď sa niečo objaví, informujú vás obratom.































