
Prenájom bytu 4+kk • 155 m² bez realitkyHintere Dorfstraße 27, , Bavorsko
Hintere Dorfstraße 27, , BavorskoMHD 1 minúta pešo • ParkovaniePopis nehnuteľnosti – 4,5-izbový byt so záhradným podielom, balkónom a dvoma parkovacími miestami
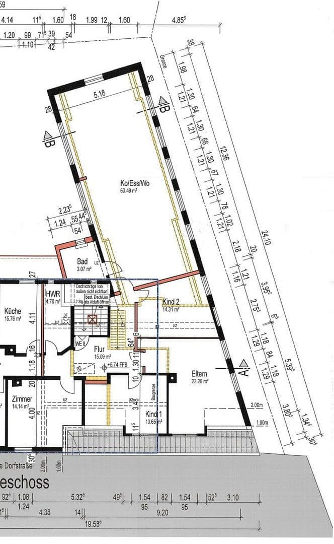
Tento zrekonštruovaný 4,5-izbový byt na podkroví viacrodinného domu zaujme priestranným dispozíciou, kvalitným vybavením a prírodným prostredím. S približne 155 m² obytného priestoru ponúka vynikajúci priestor pre náročných nájomcov, rodiny aj pre prácu z domu.
Prehľad vybavenia:
• Nová zabudovaná kuchyňa vrátane moderných elektrospotrebičov (trouba, variaca doska, umývačka riadu, chladnička, odsávač)
• Priestranný balkón s výhľadom do zelene – ideálny pre slnečné hodiny a relaxačné večery
• Krásny záhradný podiel s množstvom priestoru na oddych, vhodný aj pre rodiny s deťmi alebo záhradkárov
• 4,5 dobre usporiadaných izieb – ideálne ako obývacia izba/jedáleň, dve spálne a pracovňa/detská izba
• Kúpeľňa so skladovacím priestorom v suteréne
• Dve parkovacie miesta priamo pri dome pre pohodlné parkovanie
• Plánovaná rekonštrukcia fasády vrátane nového náteru – optické zlepšenie v blízkej budúcnosti
• Pokojná poloha priamo vedľa Sulzbachparku
Podrobnosti o nájomnom:
• Nájomné bez služieb: 1390 €
• Služby (vrátane kúrenia, vody atď.): 300 €
• Celkové nájomné (vrátane služieb): 1 690 €
Tento byt ponúka nielen priestranný pocit bývania, ale aj kvalitné vybavenie s perspektívou do budúcnosti vďaka nadchádzajúcej energetickej rekonštrukcii.
Popis lokality – Bývanie v Sulzbach am Main, priamo pri parku
Byt sa nachádza v pokojnej a žiadanej lokalite v Sulzbach am Main, hneď vedľa Sulzbachparku. Táto adresa spája bývanie blízko prírody s vynikajúcou infraštruktúrou.
Výhody lokality:
• Priama poloha v parku – ideálna pre prechádzky, športové aktivity alebo oddych v zelenej prírode
• Centrálna, no pokojná obytná ulica bez priechodovej dopravy
• Blízka občianska vybavenosť (supermarkety, pekárne, lekárne) dostupná v priebehu pár minút
• Vzdelávacie zariadenia, ako školy a materské školy, v bezprostrednej blízkosti
• Dobrá dostupnosť verejnej dopravy (autobusové zastávky sú v pešej vzdialenosti)
• Rýchly prístup k ceste B469 – vynikajúce spojenie do Aschaffenburgu a do celého okresu Miltenberg
Záver:
Tento atraktívny byt zaujme svojou veľkosťou, vybavením aj polohou. Je ideálny pre tých, ktorí chcú bývať priestranne a pokojne, bez kompromisov v otázke infraštruktúry a mobility. Nasťahujte sa a cíťte sa ako doma!
V prípade záujmu o byt nám, prosím, zašlite vyplnené vyhlásenie nájomcu z Immoscout alebo Immowelt.
Parametre nehnuteľnosti
| Vek | Nad 50 rokov |
|---|---|
| Stav | Po rekonštrukcii |
| Poschodie | 2. poschodie z 3 |
| PENB | C - Hospodárne |
| Cena za jednotku | 9 € / m2 |
| Dostupné od | 1. 2. 2026 |
|---|---|
| Dispozícia | 4+kk |
| Číslo inzerátu | 982913 |
| Úžitková plocha | 155 m² |
Čo táto nehnuteľnosť ponúka?
| Balkón | |
| Parkovanie |
| Pivnica | |
| MHD 1 minúta pešo |
V okolí nehnuteľnosti nájdete
Stále hľadáte to pravé?
Nastavte si strážneho psa. Ponuky vybrané na mieru dostanete súhrnne 1× denne e-mailom. S Premium profilom máte po ruke rovno 5 strážcov a keď sa niečo objaví, informujú vás obratom.













