
Prenájom bytu 4+1 • 98 m² bez realitkyLedergasse 12, , Bádensko-Wurttembersko
Ledergasse 12, , Bádensko-WurttemberskoMHD 3 minúty pešo • GarážTáto výnimočná podkrovná byt presvedčuje svojou jedinečnou dispozíciou, priestrannými miestnosťami a pocitom bývania, ktorý nenájdete každý deň. Ideálna pre ľudí, ktorí ocenia niečo výnimočné a chcú flexibilne skombinovať bývanie a prácu.
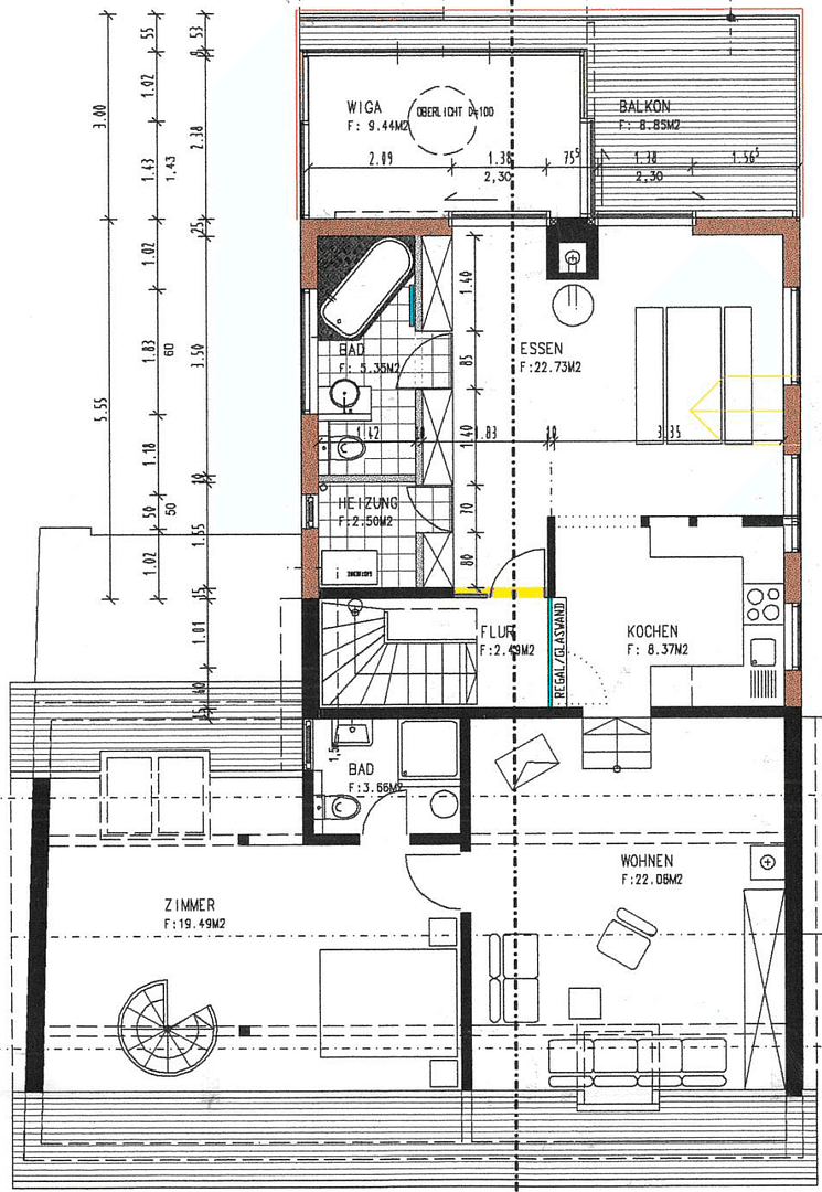
Srdcom bytu je kuchyňa so susedným, veľmi priestranným jedálenským priestorom. Odtiaľ sa otvára niekoľko oblastí bytu:
Jedna kúpeľňa s vaňou a toaletou, praktický úložný priestor, ako aj svetlý zimný záhrad, ktorý vedie priamo na balkón – ideálny pre oddychové chvíle s množstvom denného svetla.
Na druhej strane bytu sa z kuchyne cez niekoľko schodíkov dostanete do veľkej, útulnej obývacej izby. Súvisiaca s ňou je priestranná spálňa s vlastnou kúpeľňou, vybavenou sprchou a toaletou – ideálna ako súkromné útočisko.
Zo spálne vedie špirálové schodisko o poschodie nižšie do ďalšej miestnosti, ktorá sa výborne hodí ako pracovňa, home office alebo ako hobby miestnosť.
K bytu patria navyše:
• malá garáž
• dodatočné úložné priestory v prízemí
• ďalší úložný priestor na pódiu
Byt je momentálne v procese renovácie. Z tohto dôvodu zatiaľ nie sú k dispozícii fotografie všetkých miestností. Po dokončení prác sa byt predstaví v upravenom a modernom stave.
Výnimočný podkrovný byt s množstvom šarmu, svetla a priestoru – ideálny pre páry, pracujúcich na home office alebo pre tých, ktorí nehľadajú klasické riešenie dispozície.
Donzdorf je mesto s dobrou infraštruktúrou. Nákupné možnosti pre každodenné potreby, lekári a lekárne sú ľahko dostupné. Dobre zabezpečené spojenie s verejnou dopravou uľahčuje pendulérske cesty. Početné voľnočasové aktivity v blízkom okolí, ako sú parky a športoviská, ponúkajú rozmanitosť v každodennom živote.
Parametre nehnuteľnosti
| Vek | Nad 50 rokov |
|---|---|
| Stav | Po rekonštrukcii |
| Poschodie | 2. poschodie z 2 |
| Úžitková plocha | 98 m² |
| Dostupné od | 1. 4. 2026 |
|---|---|
| Dispozícia | 4+1 |
| Číslo inzerátu | 982850 |
| Cena za jednotku | 12 € / m2 |
Čo táto nehnuteľnosť ponúka?
| Balkón | |
| Garáž |
| Pivnica | |
| MHD 3 minúty pešo |
V okolí nehnuteľnosti nájdete
Stále hľadáte to pravé?
Nastavte si strážneho psa. Ponuky vybrané na mieru dostanete súhrnne 1× denne e-mailom. S Premium profilom máte po ruke rovno 5 strážcov a keď sa niečo objaví, informujú vás obratom.














