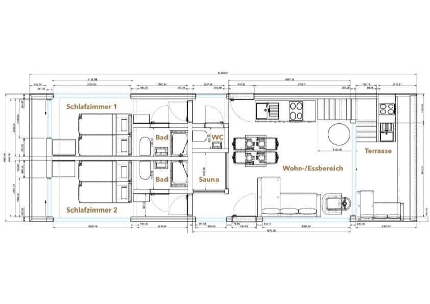
Predaj rekreačného objektu 3+1 • 75 m² bez realitky, Meklenbursko-Predpomoransko
, Meklenbursko-PredpomoranskoMHD 2 minúty pešoExkluzívna obytná loď (plytvajachta) s kotvišťom na Usedom – Premium dovolenková nehnuteľnosť
- udržateľné, pohodlné, pripravené na charter -
Splňte si sen o živote na vode: Ponúkame vám vysoko kvalitnú oceľovú obytnú loď (Made in Germany) kategórie C (pri pobreží) – plne vybavenú na charter, ideálnu pre súkromné využitie alebo profesionálny prenájom.
Využite IAB a dosiahnite veľmi vysoký výnos.
Máme pre vás pripravené atraktívne kotvište na slnečnom ostrove Usedom.
Nájomné kotvište (vhodné pre 12-mesačný charter počas celého roka) sa nachádza v závierke pri najdlhšej námorní moste v Nemecku.
Možnosť dlhodobého prenájmu (napr. na 10 rokov)
Plne vybavená marína so všetkými službami súvisiacimi s charterom
Na požiadanie prevezmeme pre vás kompletný servis:
- Marketing a správa rezervácií
- Upratovanie a starostlivosť o hostí
- Technická údržba a servis
Hlavné výhody na prvý pohľad:
- Udržateľný oceľový trup a robustná oceľová konštrukcia nadstavby zaručujú celoživotnú bezúdržbovú trvanlivosť
- Exkluzívne a odolné interiérové vybavenie pre dlhodobé využitie
- BIO čistička odpadových vôd a úprava pitnej vody – samostatná a šetrná k životnému prostrediu
- Kúrenie a klimatizácia s modernou technológiou tepelného čerpadla
- Tichý elektrický pohon: 50 kW / 48 V
- Veľkorysý batériový systém s vysokou kapacitou
Ideálne riešenie pre komfortné bývanie, celoročné využitie a charterový prevádzku
Máte záujem?
Radi odpovieme na vaše otázky a poradíme vám osobne ohľadom vybavenia, možností využitia a charterových konceptov.
Kontaktujte nás – tešíme sa na vás!
Parametre nehnuteľnosti
| Vek | Nad 50 rokov |
|---|---|
| Číslo inzerátu | 982822 |
| Cena za jednotku | 6 847 € / m2 |
| Dispozícia | 3+1 |
|---|---|
| Úžitková plocha | 75 m² |
Čo táto nehnuteľnosť ponúka?
| MHD 2 minúty pešo |
| Terasa |
V okolí nehnuteľnosti nájdete
Stále hľadáte to pravé?
Nastavte si strážneho psa. Ponuky vybrané na mieru dostanete súhrnne 1× denne e-mailom. S Premium profilom máte po ruke rovno 5 strážcov a keď sa niečo objaví, informujú vás obratom.










