Predaj bytu 1+1 • 30 m² bez realitkyMainz Marienborn Hessen 55127
Mainz Marienborn Hessen 55127MHD 3 minúty pešo • VýťahNa predaj je kompletne novo zrekonštruovaný a plne zariadený 1-izbový dizajnérsky apartmán v Mainzi. Byt sa rozprestiera na cca 30 m² a skvelo sa hodí ako študentský apartmán alebo pre dojížďaných, ktorí nechcú obetovať ani dizajn, ani bývací komfort. Vďaka atraktívnej lokalite a premyslenej dispozícii bude tento byt aj naďalej veľmi žiadaný medzi nájomcami – výhodná investícia so dlhodobou hodnotovou stabilitou.
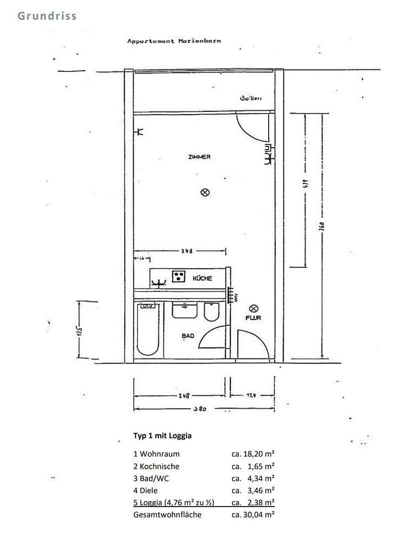
Byt bol zrekonštruovaný a zariadený v modernom, vysoko kvalitnom štýle a je okamžite pripravený na nasťahovanie, resp. prenájom. Vďaka jasnej a dobre premyslenej dispozícii sa obytná plocha využíva efektívne; bývanie, spánok a práca sa dajú skombinovať v jednotnom koncepte. Slnečný balkón s výhľadom do zelene, ktorý sa tiahne cez celú obytnú plochu, pozýva na oddych.
**Čísla-údaje-fakty k tvojej prvej investícii**
Kúpna cena: 145 000 EUR
Čisté nájomné: 650 EUR (650 x 12 mesiacov = 7 800 EUR ročne)
Domový poplatok: 198 EUR, z ktorého 130 EUR sa prenáša na nájomcu. Tvoj podiel je teda len 68 EUR mesačne, pričom väčšina z toho smeruje do rezervného fondu.
Nechceš ponechať svoju dôchodkovú budúcnosť osudu? Potom nečakaj dlhšie a postarej sa o to už dnes. Byt nie je len vizuálne atraktívny, ale aj výhodný z hľadiska výpočtu!
Rezidenčný komplex presviedča nielen svojim upraveným vzhľadom, ale aj výbornou polohou. Mainz-Marienborn spája blízkosť k mestu s bývaním v prírode. Vďaka dobrej dostupnosti verejnej dopravy a diaľnic smerujúcich do oblasti Rýn-Main a Rýnsko-heissenskej oblasti je lokalita obzvlášť atraktívna pre dojížďaných.
Pre milovníkov prírody a tých, ktorí hľadajú oddych, ponúkajú okolité polia, lúky a cyklotrasy ideálne možnosti, ako na chvíľu vypnúť a uniknúť každodennému zhonu. Zároveň sú v blízkosti obchody, reštaurácie a ďalšie dôležité zariadenia.
- Čerstvo zrekonštruovaný a zariadený – okamžité nasťahovanie alebo prenájom (už je k dispozícii potenciálny nájomca).
- Hladko omietnuté steny pre pokojný, kvalitný vzhľad.
- Kvalitná dizajnérska podlaha v podobe parkiet.
- Nová, moderná sprchovňa s čiernymi armaturami a obkladom v štýle sauny.
- Nová vstavaná kuchyňa.
- Plné vybavenie vrátane boxspring postele, šatníka (Jutzler), pracovného stola a ďalšieho nábytku od XXXL-Lutz.
- K bytu patrí vlastný suterénny priestor, ktorý je prístupný bez schodov – praktické doplnenie pre dodatočný úložný priestor.
Priamo od majiteľa, bez provízie realitnej kancelárie.
Parametre nehnuteľnosti
| Vek | Nad 50 rokov |
|---|---|
| Stav | Po rekonštrukcii |
| Poschodie | 3. poschodie z 6 |
| PENB | E - Nehospodárne |
| Cena za jednotku | 4 833 € / m2 |
| Dostupné od | 29. 1. 2026 |
|---|---|
| Dispozícia | 1+1 |
| Číslo inzerátu | 982555 |
| Úžitková plocha | 30 m² |
Čo táto nehnuteľnosť ponúka?
| Balkón | |
| Pivnica | |
| MHD 3 minúty pešo |
| Bezbariérový prístup | |
| Výťah |
V okolí nehnuteľnosti nájdete
Stále hľadáte to pravé?
Nastavte si strážneho psa. Ponuky vybrané na mieru dostanete súhrnne 1× denne e-mailom. S Premium profilom máte po ruke rovno 5 strážcov a keď sa niečo objaví, informujú vás obratom.











