
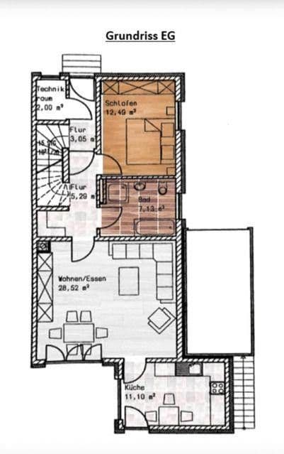
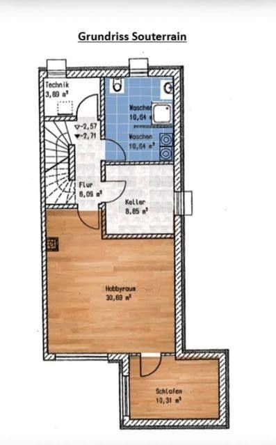
Predaj bytu 4+1 • 105 m² bez realitky, Bavorsko
, BavorskoMHD do minúty pešo • Parkovanie • GarážModerný prízemný byt so súkromnou záhradou, priestranným suterénom a energeticky efektívnou konštrukciou (KfW-40, tepelné čerpadlo, solárny systém). Svetlé miestnosti, udržiavaný stav a premyslené rozdelenie priestorov pre rodiny, páry alebo home office. Spálňový kút v suteréne ponúka flexibilné využitie. Nízke prevádzkové náklady vďaka inovatívnej vykurovacej technike. Perfektná poloha pre dochádzajúcich do Augsburgu a Mníchova.
Mering ponúka veľmi dobrú infraštruktúru pre každodenné potreby a spája pokojné bývanie s vynikajúcim spojením. Rodinne orientovaná obytná štvrť sa vyznačuje príjemným susedskej atmosférou a krátkymi vzdialenosťami.
Doprava verejnou dopravou je ideálna: Stanica Mering umožňuje rýchly prístup do Augsburgu (cca 15 minút) a Mníchova (cca 25 minút) – čo je veľká výhoda pre dochádzajúcich. Navyše, blízkosť diaľnice B2 zaručuje rýchle spojenie s regionálnou aj medzinárodnou cestnou sieťou.
Množstvo obchodov, lekárov, materských škôl, základných a stredných škôl ako aj gastronomických podnikateľov sa nachádza priamo v okolí a zabezpečuje vysokú kvalitu života.
Aj ponuka voľnočasových a relaxačných aktivít nezostáva pozadu: Vonkajší bazén, jazerá, cyklotrasy a turistické chodníky, ako aj ďalšie možnosti na oddych, sa nachádzajú v bezprostrednej blízkosti a vyzývajú na aktívne trávenie voľného času.
Nehnuteľnosť postavená v roku 2009 spĺňa štandard KfW-40 a zaujme najmä vďaka mimoriadne energeticky efektívnej konštrukcii. Na udržateľné a úsporné zásobovanie teplom slúži podzemné tepelné čerpadlo, ktoré dopĺňa moderný solárny systém inštalovaný v roku 2024. Vo všetkých miestnostiach je podlahové kúrenie, ktoré poskytuje príjemné a rovnomerné klímu.
Byt je vo veľmi udržiavanom stave a vyniká svetlými, slnečnými priestormi. Zásuvná kuchyňa je už zahrnutá v kúpnej cene, takže k okamžitému nasťahovaniu nič nebráni. Navyše je nehnuteľnosť vybavená optickým pripojením, čo poskytuje ideálne podmienky pre home office a moderné bývanie.
Ponuku dopĺňa garáž a dodatočné parkovacie miesto, ktoré je možné zakúpiť spoločne za 20 000 €.
Parametre nehnuteľnosti
| Vek | Nad 50 rokov |
|---|---|
| Stav | Veľmi dobrý |
| Číslo inzerátu | 982494 |
| Úžitková plocha | 105 m² |
| Dostupné od | 31. 7. 2026 |
|---|---|
| Dispozícia | 4+1 |
| PENB | A - Mimoriadne úsporné |
| Cena za jednotku | 5 238 € / m2 |
Čo táto nehnuteľnosť ponúka?
| Pivnica | |
| Parkovanie | |
| Terasa |
| Garáž | |
| MHD 0 minút pešo |
V okolí nehnuteľnosti nájdete
Stále hľadáte to pravé?
Nastavte si strážneho psa. Ponuky vybrané na mieru dostanete súhrnne 1× denne e-mailom. S Premium profilom máte po ruke rovno 5 strážcov a keď sa niečo objaví, informujú vás obratom.














