Predaj domu 7+1 • 147 m² bez realitky, Dolné Sasko
, Dolné SaskoMHD 2 minúty pešo • Parkovanie • GarážNa predaj je rodinný dom postavený v roku 1968 masívnou stavbou, samostatne stojaci, kompletne s podzemím, nachádzajúci sa na rozľahlej pozemku o rozlohe 828 m² vo vlastníctve s veľkou záhradou a dvojgarážou. Nachádza sa v absolútne idylickej lokalite v blízkosti lesa, v žiadanej mestskej časti Klein Hehlen a ponúka s približne 147 m² čistej obytného priestoru a ďalším rozsiahlym užitným priestorom veľa miesta a flexibility pre vašu rodinu.
V prízemí nájdete otvorenú, svetlom zalievanú vstupnú halu, ktorá so svojím priestorom s krbom a prilehlou jedálňou tvorí komunikatívne srdce domu. Odtiaľ máte prístup do samostatnej obývacej izby, ktorá ponúka útulné miesto na oddych a vďaka širokým oknám láka na výhľad do exteriéru. Záhrada a terasa orientovaná na juh sú absolútnym vrcholom s množstvom možností, ako individuálne oživiť zelené plochy a záhony podľa vašich predstáv. Ďalej sa pri vstupe nachádza izba vhodná pre hostí alebo kanceláriu s priľahlou toaletou pre hostí a priamo vedľa kuchyne ešte dve malé technické miestnosti, napr. pre jedálenské alebo spižírne.
V nadzemnom podlaží je veľká spálňa s priamym vstupom na slnkom zaliatu balkón. Pri nej sa nachádzajú dve miestnosti, ktoré je možné využiť ako šatník alebo detskú izbu. Ďalej je v oblasti bývalého podkrovia k dispozícii ďalšia izba, ktorá je ideálna ako samostatná detská izba či alternatívne ako úplne oddeliteľný priestor pre hostí s prístupom do kompletnej kúpeľne. Ďalšia sprchovacia kúpeľňa sa nachádza bezprostredne vedľa nej.
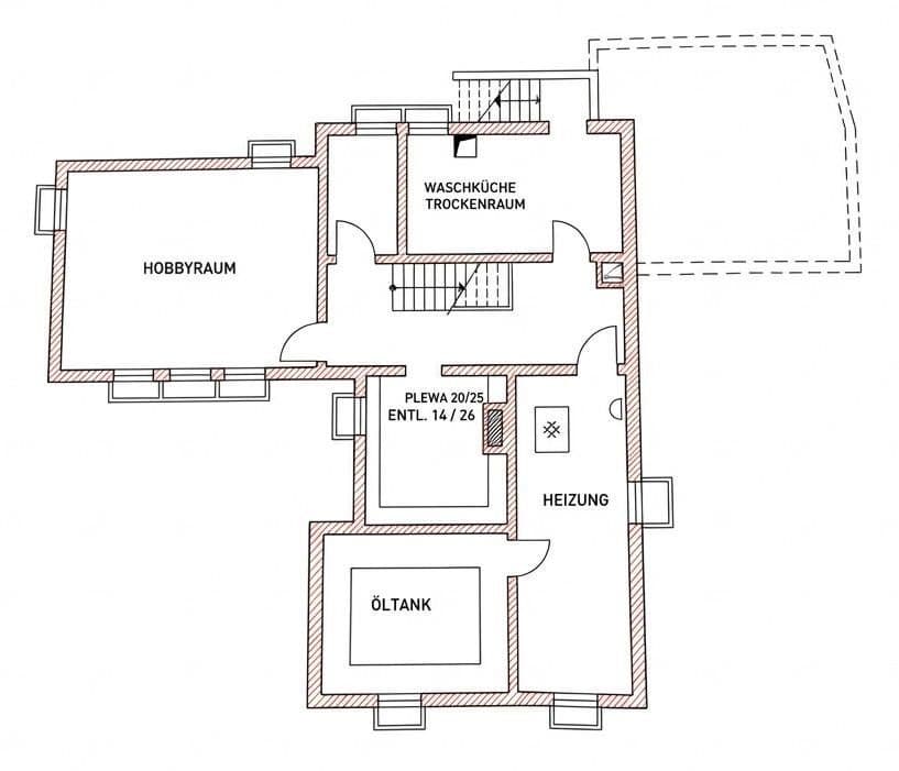
V suteréne sa nachádza ďalšia veľká, kompletne vykurovaná miestnosť, ktorá môže slúžiť perfektne ako hobby miestnosť alebo tichá kancelária – ideálna pre nerušenú prácu z domu. Ďalej je tu veľká práčovňa s priamym vstupom cez vonkajší schod na severnú stranu záhrady. Vedľa kotolne vrátane oddelenej miestnosti na ukladanie vykurovacieho oleja sa nachádzajú navyše ešte dve ďalšie skladovacie miestnosti s množstvom úložného priestoru.
Konstrukcia domu sa javí ako veľmi stabilná a bola kedysi postavená ako architektonický dom, vzdialený dnešným ľahkým stavbárskym metódam, individuálne navrhnutý s dôrazom na vysokú kvalitu a dlhú životnosť. Dom je čerstvo zrekonštruovaný a vo väčšine obytných a chodbičkových priestorov dostal nové podlahové krytiny a nátěry. Nedávno boli tiež realizované menšie energetické sanácie, avšak ďalšie energetické modernizácie v oblasti kúrenia a izolácie sa v budúcnosti určite zvažujú.
Rodinný dom sa nachádza v pokojnej a vyvinutej obytné štvrti v obľúbenom cellerskom mestskom obvode Klein Hehlen. Okolie je charakteristické udržiavanými rodinnými domami a bezprostrednou blízkosťou lesa. Ste len pár minút od prírody, pričom aj možnosti nakupovania bežných potrieb sú dostupné pešo alebo na bicykli. Na lokalitu budú nadšení milovníci prechádzok, majitelia psov a ľudia s náklonnosťou k prírode. Lekári, lekárne, ako aj materské školy a školy sa nachádzajú taktiež v bezprostrednom okolí. Súčasne ste len pár minút autom od cellerského centra so svojím historickým starým mestom.
Doprava je výhodná aj pre dochádzajúcich. Cez dobre dostupné hlavné cesty sa dostanete rýchlo smerom na Hannover alebo Braunschweig.
• Masívna stavba, železobetónové stropy s vynikajúcou zvukovou izoláciou, Leca murivo (vnútorné aj vonkajšie steny suteréna), vápenocementový tehličkový materiál (vonkajšie steny)
• Kompletné suterénovanie
• Dvojgaráž s diaľkovým ovládaním priamo pri domě
• Ďalšie dve parkovacie miesta priamo na pozemku / príjazdovej ceste
• Olejové kúrenie z roku 1992, pravidelne odborným servisom udržiavané, čiastočne modernizované (medzi iným nový horák), podľa našich informácií v súčasnosti nie je nutná bezprostredná výmena (kondenzačný kotol) – prípadne konzultujte individuálne so servisným odborníkom
• 10 000 litrový olejový zásobník v oddelenej miestnosti na vykurovací olej
• Krbisko s reálnym, z múru postaveným krbom (nie rekonštruovaný z nerezového komína)
• Kvalitná a odolná prírodná kamenná podlaha v prízemí
• Nová podlahová krytina v obytných a chodbových priestoroch: vinyl alebo kobercová podlaha
• Úplne nové obklady v suterénnej oblasti
• Slnečná, rozľahlá terasa orientovaná na juh
• Balkón orientovaný na juh
• Elektrické rolety a markízy
• Vstavaná kuchyňa, funkčná, ale už stará, avšak s čiastočne novo zakúpenými elektrospotrebičmi (môže byť na požiadanie prevzatá ako dočasné riešenie)
• Premietací vonkajší priestor / outdoor lounge v záhradnom sektore
• Starý stromový porast a vysoké živé ploty na hraniciach pozemku zaisťujú súkromie
• Automatizovaný zavlažovací systém / elektrické zavlažovače trávnika
• Vrt s podzemnou vodou a čerpadlom
• Záhradný rybník / systém vysokého rybníka v existencii, drevený lem však vyžaduje rekonštrukciu
• Práčovňa s prístreškom a vonkajším vstupom
• Výklopová komora prádla priamo z obytného a prízemného podlažia do práčovne
• Presne vyrobené, kvalitné vstavané skrine s množstvom úložného priestoru
• Nedávno postavený, robustný plot na severnej hranici pozemku
• Glasfiberové pripojenie pre moderný prístup na internet
Kúpnej cene, okrem bežných dodatočných nákladov spojených s kúpou, sa neplatí žiadna dodatočná provízia alebo poplatok maklérovi.
Parametre nehnuteľnosti
| Vek | Nad 50 rokov |
|---|---|
| Dispozícia | 7+1 |
| PENB | G - Mimoriadne nehospodárne |
| Plocha pozemku | 828 m² |
| Cena za jednotku | 2 578 € / m2 |
| Stav | Po rekonštrukcii |
|---|---|
| Číslo inzerátu | 981752 |
| Úžitková plocha | 147 m² |
| Celkové poschodia | 2 |
Čo táto nehnuteľnosť ponúka?
| Balkón | |
| Garáž | |
| MHD 2 minúty pešo |
| Pivnica | |
| Parkovanie | |
| Terasa |
V okolí nehnuteľnosti nájdete
Stále hľadáte to pravé?
Nastavte si strážneho psa. Ponuky vybrané na mieru dostanete súhrnne 1× denne e-mailom. S Premium profilom máte po ruke rovno 5 strážcov a keď sa niečo objaví, informujú vás obratom.














































