
Prenájom bytu 4+1 • 132 m² bez realitkyJügesheimer Weg 31, , Hesensko
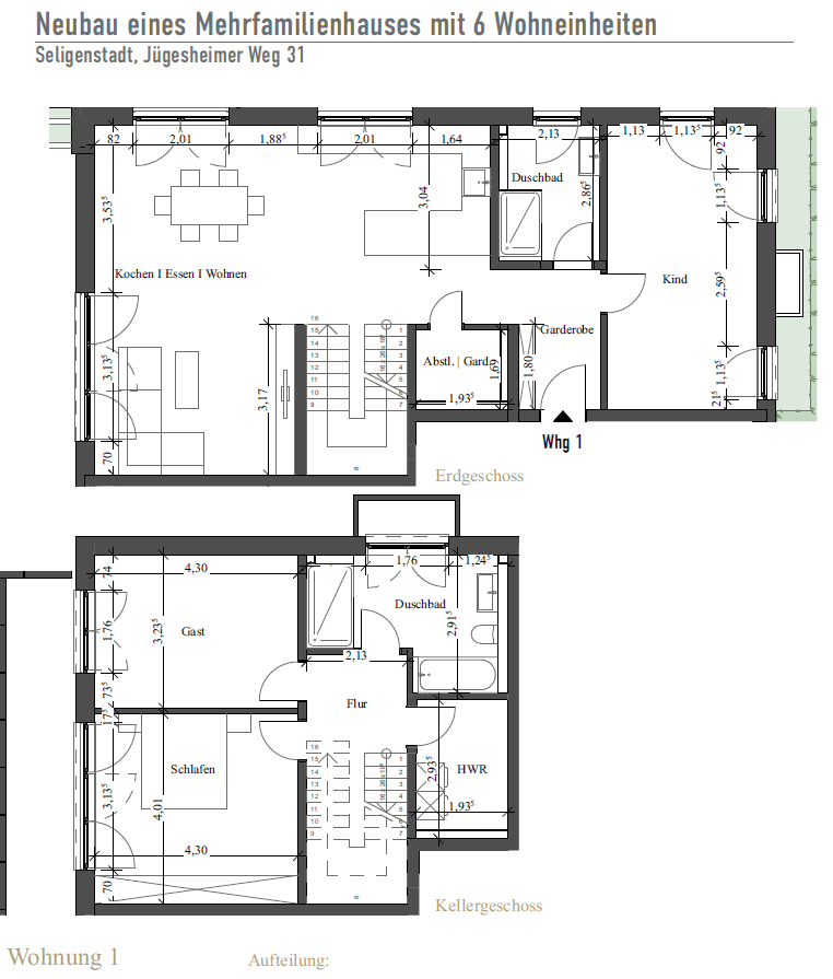
Jügesheimer Weg 31, , HesenskoMHD 3 minúty pešo • Výťah • ParkovanieTáto štýlová prízemná bytová jednotka zaujme svojim kvalitným vybavením, premyslenou dispozíciou rozprestierajúcou sa na dvoch úrovniach a jedinečným šarmom, že tu môžete byť prvými nájomcami.
V prízemí vás očakáva priestranný obývací a jedálenský priestor s otvorenou kuchyňou – ideálne miesto pre spoločné chvíle s rodinou a priateľmi. Táto úroveň je doplnená svetlou detskou izbou a modernou kúpeľňou.
Skutočným lákadlom je priestranná rodičovská spálňa v suteréne, ktorá je prekrásne osvetlená. Vďaka svojej tichej polohe a priľahlej priestrannej kúpeľni s vaňou vzniká súkromný útočisko, ktoré zaručuje oddych a atmosféru pohody.
Obývacie priestory v prízemí ponúkajú priamy prístup na terasu a do záhrady, ktorá sa dá využiť ako druhý obývací priestor pod holým nebom. Praktický sklep navyše poskytuje dodatočný úložný priestor.
Nastal vám domov, ktorý ideálne spája moderný životný štýl, súkromie a komfort.
Srdcom bytu je pôsobivo priestranný obývací a jedálenský priestor s otvorenou kuchyňou – približne 45 m² priestoru pre život, varenie a relaxáciu. Veľké okná zabezpečujú dostatok svetla a vzdušný pocit z priestoru. Balkón so západnou orientáciou ponúka slnečné lúče až do večerných hodín – ideálne na oddych po dlhom dni.
Byt sa nachádza v pokojnej slepej uličke – úplne bez priechodovej premávky – a ponúka tak uvoľnenú obytnú atmosféru pri zároveň výbornom dosahu všetkých dôležitých zariadení.
Nasťahujte sa, cíťte sa pohodlne, prichádzajte domov – tento byt spája moderný dizajn, komfort a tichú polohu do dokonalého domova.
Objekt sa nachádza v pokojnej slepej uličke v Seligenstadt Froschhausen. Prístup k diaľnici je vynikajúci.
Autobusové linky 58 a OF-85 sú dostupné pešo.
V blízkosti sa nachádza niekoľko reštaurácií, kaviareň a ambulancia. Zároveň máte k dispozícii parkové a zelené plochy, poštový úrad, lekáreň a kaderníctvo priamo na mieste.
Vybavenie je moderné a premyslené:
- Vysoko kvalitná vinylová podlaha v trendovej dubovej optike
- Tepelné čerpadlo s chladiacou funkciou – udržateľné a pohodlné
- Štýlová kúpeľňa s modernými batériami
- Samostatné hostinské WC
- Walk-in sprcha
- Vaňa
- Praktický úložný priestor s dosť miestom pre práčku a sušičku
- Výťah v budove pre pohodlný prístup
- V prípade potreby je možné prenajať aj druhé parkovacie miesto
- Satelitný príjem
- Glasfiberové pripojenie
- Priestranný nájomný sklep s rozlohou takmer 4 m²
- Uzamykateľné cyklistické garáže na pozemku, aj pre elektrobicykle
- Domovnícky servis je zahrnutý – nemusíte sa o nič starať
Tešíme sa na váš záujem o tento byt. Aby sme si mohli urobiť lepší obraz, prosíme vás, aby ste vo vašom dopyte uviedli niekoľko slov o sebe (napríklad povolanie, životnú situáciu, počet osôb, ktoré sa budú sťahovať, atď.). Takto môžeme rýchlejšie posúdiť, či byt je pre vás vhodný.
Ďakujeme vám za vašu snahu!
Parametre nehnuteľnosti
| Vek | Nad 50 rokov |
|---|---|
| Dispozícia | 4+1 |
| Úžitková plocha | 132 m² |
| Stav | Novostavba |
|---|---|
| Číslo inzerátu | 981689 |
| Cena za jednotku | 14 € / m2 |
Čo táto nehnuteľnosť ponúka?
| Bezbariérový prístup | |
| Výťah | |
| MHD 3 minúty pešo |
| Pivnica | |
| Parkovanie | |
| Terasa |
V okolí nehnuteľnosti nájdete
Stále hľadáte to pravé?
Nastavte si strážneho psa. Ponuky vybrané na mieru dostanete súhrnne 1× denne e-mailom. S Premium profilom máte po ruke rovno 5 strážcov a keď sa niečo objaví, informujú vás obratom.












