Prenájom nebytového priestoru • 988 m² bez realitkyOtto-Kipp-Straße 2 Scharbeutz Pönitz Schleswig-Holstein 23684
Otto-Kipp-Straße 2 Scharbeutz Pönitz Schleswig-Holstein 23684MHD 4 minúty pešoNa prenájom je k dispozícii približne 988 m² veľká obchodná nehnuteľnosť v dopravne výhodnej polohe v Scharbeutzi – mestskej časti Gleschendorf.
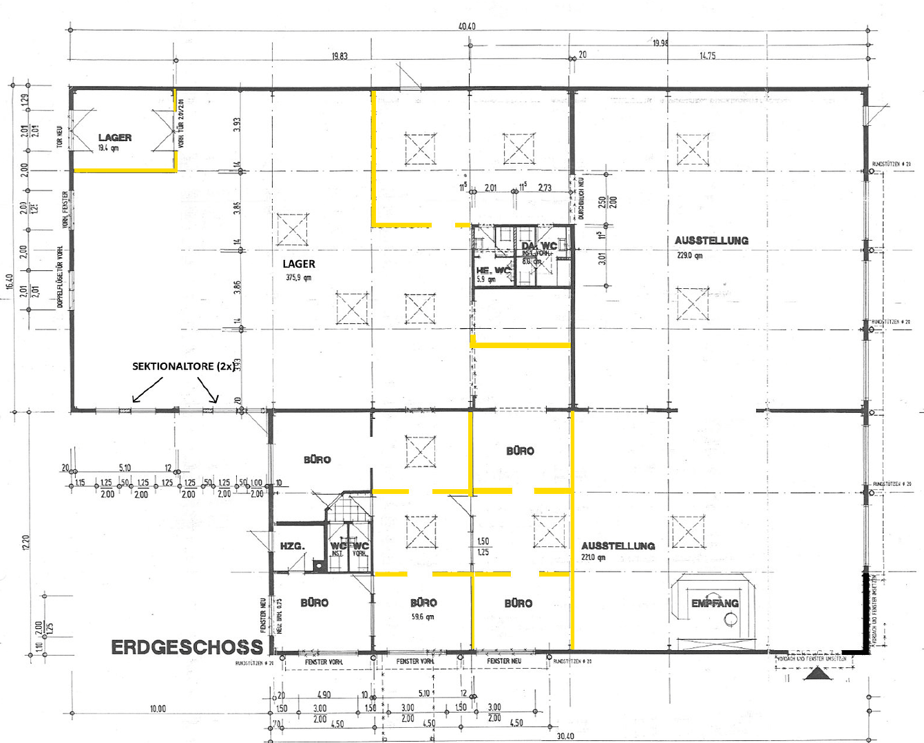
Priestor je funkčne rozdelený na skladové, výstavné a kancelárske priestory vrátane sanitárnych zariadení a je ideálny pre spoločnosti, ktoré majú záujem spojiť administratívu, prezentáciu a skladovanie na jednom mieste.
Osobitnou výhodou je inštalovaná fotovoltaická elektráreň, ktorá umožňuje ročnú výrobu elektriny približne 50 000 kWh (referenčný rok 2021). Elektrinu je možné cenovo výhodne získať priamo od vlastníčky.
Prehľad priestorov a vybavenia:
- Celková plocha: cca 988 m²
- Skladový priestor so 2 sekčnými bránami
- 13 parkovacích miest priamo pri nehnuteľnosti, ďalšie parkovacie miesta po dohode
- Fotovoltaická elektráreň za atraktívnych podmienok
- Možnosť flexibilného rozdelenia priestorov
- Celá plocha sa nachádza plynule v prízemí
- Veľmi dobrá dostupnosť pre zákazníkov, zamestnancov a pre dodávateľské vozidlá
Ďalšie možné využitie:
- remeselné a obchodné podniky
- obchodné a distribučné spoločnosti
- spoločnosti s potrebou showroomu a skladu
- logisticky orientovaní poskytovatelia služieb
- kancelárske a servisné spoločnosti s priestorovou potrebou
- Plánujete iné využitie? Jednoducho nás kontaktujte!
Veľmi dobrá, dopravne výhodná poloha v obchodnom prostredí Gleschendorf (obec Scharbeutz) s rýchlym napojením na regionálnu dopravnú sieť.
Bez provízie!
Kontakt a prehliadka:
Záujemcovia sú srdečne pozvaní, aby nás kontaktovali správou.
Prosíme, pošlite nám krátke predstavenie vašej spoločnosti, váš plánovaný projekt využitia a vaše kontaktné údaje, najmä telefónne číslo.
Ozveme sa vám veľmi čoskoro, aby sme prebrali ďalšie detaily.
Parametre nehnuteľnosti
| Vek | Nad 50 rokov |
|---|---|
| Číslo inzerátu | 981328 |
| Cena za jednotku | 7 € / m2 |
| Stav | Dobrý |
|---|---|
| Plocha nebytového priestoru | 988 m² |
Čo táto nehnuteľnosť ponúka?
| MHD 4 minúty pešo |
V okolí nehnuteľnosti nájdete
Stále hľadáte to pravé?
Nastavte si strážneho psa. Ponuky vybrané na mieru dostanete súhrnne 1× denne e-mailom. S Premium profilom máte po ruke rovno 5 strážcov a keď sa niečo objaví, informujú vás obratom.























