
Predaj domu 4+1 • 115 m² bez realitkyKytnerova, Brno - Medlánky, Jihomoravský kraj
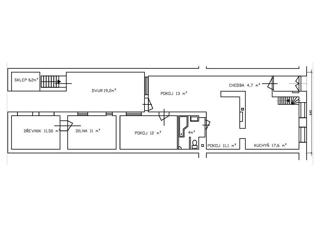
Kytnerova, Brno - Medlánky, Jihomoravský krajPivnica 5 m²Nabízíme k prodeji rodinný dům v Brně Medlánkách po kompletní rekonstrukci s velkou zahradou v uzavřeném vnitrobloku. Dům je volný, ihned připravený k užívání.
Pozemek celkem 600 m2 (z toho zastavěná plocha 168 m2), zahrada 432 m2.
Přízemí domu tvoří obývací pokoj, kuchyně, koupelna s toaletou a ložnice. Většina obytného prostoru má vysoké stropy s přiznanými trámy.
Patro domu, přístupné po schodech z kuchyně, tvoří otevřený obytný prostor, částečně rozdělený příčkou.
Z obývacího prostoru je přímý vstup na uzavřený dvorek a zahradu.
V roce 2014 byla dokončena celková rekonstrukce domu. Celý objekt je zateplený a vybavený protihlukovými okny s trojskly. Vytápění plynovým kondenzačním kotlem v kombinaci podlahové topení a radiátory.
V domě je instalována katexová jednotka pro změkčování vody v celém objektu. Přípojka 230/400 V, kabel Vodafone.
Dům disponuje dílnou napojenou na vytápění, přístupnou z dvorku a cihlovým klenutým sklepem pod úrovní terénu.
K domu přiléhá velká, udržovaná, přírodní zahrada, v rovině, orientovaná na jih. Součástí zahrady jsou nové vyvýšené záhony z masivního dřeva a skleník s kapkovou závlahou.
Na zahradě jsou také udržované plodící ovocné stromy, keře a pergola s vinnou révou.
Nemovitost se nachází v klidné lokalitě s dobrou přístupností do centra, zastávka MHD vzdálena 200m od domu.
Právní servis při prodeji domu včetně úschovy peněz zajištěn notářskou kanceláří.
Prohlídka po dohodě možná kdykoli.
Parametre nehnuteľnosti
| Dostupné od | 14. 1. 2026 |
|---|---|
| Konštrukcia budovy | Tehla |
| Vybavené | Nevybavené |
| Číslo inzerátu | 981254 |
| PENB | G - Mimoriadne nehospodárne |
| Umiestnenie | Tichá lokalita |
| Plocha pozemku | 600 m² |
| Cena za jednotku | 139 043 CZK / m2 |
| Stav | Po rekonštrukcii |
|---|---|
| Dispozícia | 4+1 |
| Vykurovanie | Plynové |
| Vlastníctvo | Osobné |
| Poloha domu | Sériové |
| Úžitková plocha | 115 m² |
| Celkové poschodia | 2 |
Čo táto nehnuteľnosť ponúka?
| Pivnica 5 m² |
V okolí nehnuteľnosti nájdete

Predaj domuK Hluku, Lelekovice - Lelekovice, Jihomoravský kraj- 5+kk
- 325 m²
- 566 m²
12 800 000 CZK14 800 000 CZK
Ušetríte 2 000 000 CZK
Stále hľadáte to pravé?
Nastavte si strážneho psa. Ponuky vybrané na mieru dostanete súhrnne 1× denne e-mailom. S Premium profilom máte po ruke rovno 5 strážcov a keď sa niečo objaví, informujú vás obratom.



















