
Predaj bytu 2+1 • 61 m² bez realitkyMerhautova, Brno - Černá Pole, Jihomoravský kraj
Merhautova, Brno - Černá Pole, Jihomoravský krajČiastočne vybavené • Pivnica 8 m²Máte-li zájem, vyplňte prosím tento formulář: https://forms.gle/xcQ9TtYEF3QHZVmF8
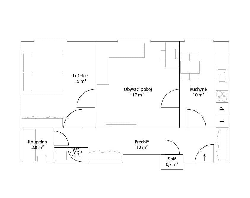
Jako přímý majitel prodám byt 2+1 o rozloze 61m² v cihlovém domě na ulici Merhautova. K bytu náleží 2 sklepy (velká sklepní kóje 6m² a zděný sklep 2m²) a dále je možné využívat společných prostor kočárkárny, prádelny a sušárny.
Západní orientace bytu nabízí velké množství světla, které prochází do všech obytných místností.
Dispoziční řešení 2+1 nabízí možnost dvou neprůchozích pokojů, což ocení například studenti v podnájmu. Prostorná chodba nabízí velké množství úložných prostor.
Rozlehlý udržovaný pozemek před a za domem je ohraničen plotem, což ocení hlavně maminky s dětmi. Největší výhodou je vlastní zatravněný dvůr, kde se nachází příjemné posezení v zeleni se skluzavkou a pískovištěm pro děti.
V roce 2019 prošel celý dům celkovou rekonstrukcí inženýrských sítí a společných prostor. V následujících letech se plánují i další úpravy - zateplení, které by zlepšilo energetickou náročnost z D na B, možná dokonce A. SVJ má k této rekonstrukci již zpracované podklady. Byla by zde i možnost dokoupit balkón.
Parametre nehnuteľnosti
| Dostupné od | 30. 7. 2026 |
|---|---|
| Konštrukcia budovy | Tehla |
| Vybavené | Čiastočne |
| Číslo inzerátu | 980847 |
| PENB | D - Menej hospodárne |
| Úžitková plocha | 61 m² |
| Stav | Dobrý |
|---|---|
| Dispozícia | 2+1 |
| Poschodie | 3. poschodie z 4 |
| Vlastníctvo | Osobné |
| Umiestnenie | Centrum mesta |
| Cena za jednotku | 108 180 CZK / m2 |
Čo táto nehnuteľnosť ponúka?
| Pivnica 8 m² |
V okolí nehnuteľnosti nájdete
Stále hľadáte to pravé?
Nastavte si strážneho psa. Ponuky vybrané na mieru dostanete súhrnne 1× denne e-mailom. S Premium profilom máte po ruke rovno 5 strážcov a keď sa niečo objaví, informujú vás obratom.

















