Prenájom bytu 1+kk • 40 m² bez realitkyBirkenallee 4 Dessau-Roßlau Roßlau (Elbe) Sachsen-Anhalt 06862
Jedná sa o udržiavaný obytný komplex na štědrém pozemku, navyše je na vonkajšom areáli prítomné detské ihrisko.
Návštevné parkovacie miesta sa nachádzajú taktiež na pozemku.
K dispozícii je správcovský, zimný a čistiaci servis schodísk.
Obytný komplex je dopravne výhodne umiestnený pri cestách B184, B187 a diaľnici A9. Je zabezpečené aj dobré napojenie na verejnú dopravu.
Infraštruktúra: Liekareň, diskont potravín, všeobecná medicína, materská škola,
základná škola, gymnázium, všeobecná stredná škola, verejná doprava
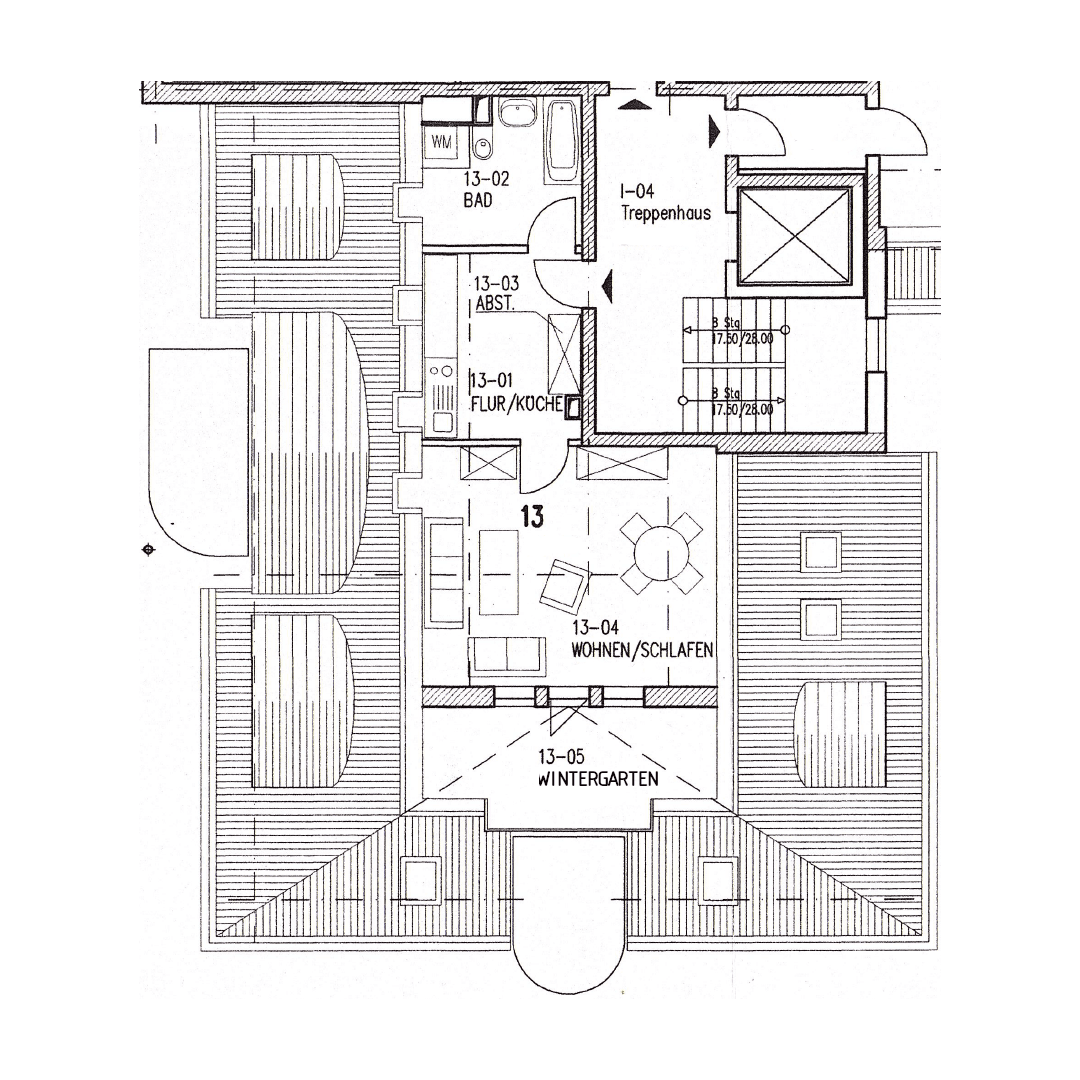
Jednopokojový byt (39,5 m²) v Dessau-Roßlau, mestská časť Roßlau (Birkenallee) so svetlou kúpeľňou (vrátane prípojky na práčku), zimnou záhradou, parkovacím miestom pre auto, suterénom a navyše s priestranným podkrovím (prístupným cez vysúvateľný rebríkový schod).
Medzi vybavenie patrí okrem iného aj zabudovaná kuchyňa s jedálenskou súpravou.
V suteréne sa nachádza aj oddychová miestnosť, priestor na uskladnenie bicyklov alebo detských kočíkov a miestnosti na práčenie a sušenie.
Parametre nehnuteľnosti
| Vek | Nad 50 rokov |
|---|---|
| Stav | Dobrý |
| Poschodie | 3. poschodie z 3 |
| PENB | C - Hospodárne |
| Cena za jednotku | 7 € / m2 |
| Dostupné od | 1. 1. 2026 |
|---|---|
| Dispozícia | 1+kk |
| Číslo inzerátu | 980693 |
| Úžitková plocha | 40 m² |
Čo táto nehnuteľnosť ponúka?
| Bezbariérový prístup | |
| Výťah | |
| MHD 1 minúta pešo |
| Pivnica | |
| Parkovanie |
V okolí nehnuteľnosti nájdete
Stále hľadáte to pravé?
Nastavte si strážneho psa. Ponuky vybrané na mieru dostanete súhrnne 1× denne e-mailom. S Premium profilom máte po ruke rovno 5 strážcov a keď sa niečo objaví, informujú vás obratom.














