Predaj domu 7+1 • 197 m² bez realitky, Hesensko
Dom v Idsteine - Oberrod, cca 3 km od Glashütten.
Mesto Idstein je vzdialené cca 11 km.
Cena je dohodou.
Masívne postavený a samostatne stojaci obytný dom s potenciálom pre samostatný byt a so záhradou okolo
Pozemok 863 m²
Záhradná chata
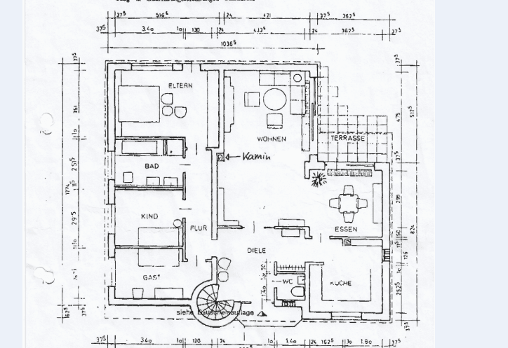
Obytná plocha 197 m² plus 42 m² pivnice
7 izieb (kuchyňa, obývačka/jedáleň, 5 spální) a 3 pivnice
50 m² veľká obývačka/jedáleň
Kúpeľňa s vírivkou a walk-in sprchou s dažďovou sprchou
2 hostinské WC (jedno s pripravenými pripojeniami a sprchou)
90 m² veľký príjazd s carportom
Modernizované v rokoch 2009 - 2015 (parketová podlaha, laminát, dlaždice a prevažne nové okná a dvere, nová strecha a nové kúpeľne)
Pelletové kúrenie (upravené 17.10.25 a schválené kominárom)
Solárne kolektory (upravené 17.10.25)
Kachlový krb v obývačke (upravený 17.10.25 a schválený kominárom)
Možnosť zrekonštruovať podkrovie alebo prístavbu.
Priestor sme zachytili len ako vzorové fotografie – nie všetky sú zobrazené.
Cca 3 km od Glashütten sa nachádza náš dom v pokojnej bočnej ulici s výhľadom na dedinský kostol v Oberrod.
Západy slnka sú legendárne a okolná záhrada je neustále na slnku, pretože záhrada obklopuje dom.
V Glashütten (5 minút) nájdete lekárov, veterinárov, lekárne, supermarkety, materské školy a všetko, čo je potrebné pre každodenný život.
Základná škola je vzdialená 10 minút.
Stredné školy sú v Königstein alebo priamo v Idsteine.
Osobitosti:
Všetky hlavné priestory (kuchyňa, obývačka, veľká kúpeľňa, hostinské WC, tri spálne) a prístup do záhrady sa nachádzajú na jednom poschodí, čo robí dom výhodným pre osoby so zdravotným postihnutím alebo seniorov.
Druhý možný byt sa nachádza v prízemí s už existujúcim vodovodným pripojením pre kuchyňu a s pripravenou kúpeľňou so sprchou.
Aj v prízemí sú dve veľké terasové dvere vedúce von, takže miestnosti sú svetlé.
Keďže som kouč a terapeutka, využívam tu svoje terapeutické priestory. Avšak je tu možnosť aj pre samostatný byt.
Miestnosti sú totiž veľmi veľké a môžu byť ďalej delené pomocou ľahkých priečok, čím by vzniklo ešte viac oddelených priestorov.
Otázky sú srdečne vítané.
Parametre nehnuteľnosti
| Vek | Nad 50 rokov |
|---|---|
| Dispozícia | 7+1 |
| PENB | E - Nehospodárne |
| Plocha pozemku | 863 m² |
| Cena za jednotku | 3 706 € / m2 |
| Stav | Dobrý |
|---|---|
| Číslo inzerátu | 980685 |
| Úžitková plocha | 197 m² |
| Celkové poschodia | 2 |
Čo táto nehnuteľnosť ponúka?
| Pivnica | |
| MHD 1 minúta pešo |
| Parkovanie | |
| Terasa |
V okolí nehnuteľnosti nájdete
Stále hľadáte to pravé?
Nastavte si strážneho psa. Ponuky vybrané na mieru dostanete súhrnne 1× denne e-mailom. S Premium profilom máte po ruke rovno 5 strážcov a keď sa niečo objaví, informujú vás obratom.




























