
Prenájom bytu 3+1 • 82 m² bez realitkyMeisterstr. 21, , Bádensko-Wurttembersko
Meisterstr. 21, , Bádensko-WurttemberskoMHD 4 minúty pešo • Výťah • ParkovanieByt sa nachádza v historickej budove, ktorá bola počas dvoch rokov úplne prestavaná a zmodernizovaná. K dispozícii je detské ihrisko a stojany na bicykle.
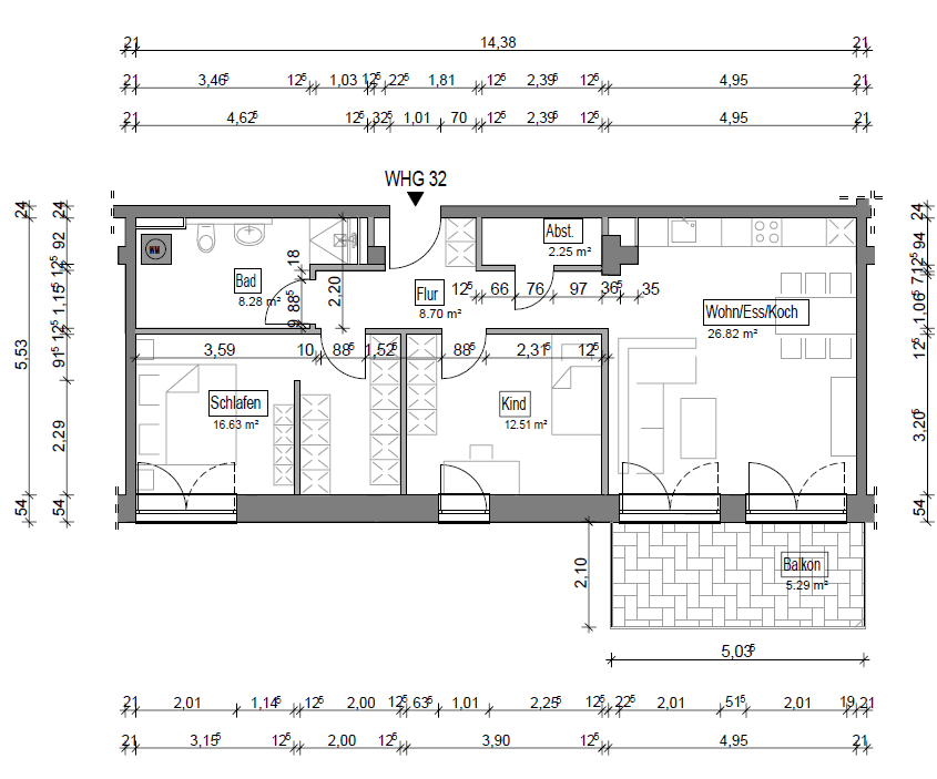
Energeticky úsporný, svetlý a moderne navrhnutý 4-izbový byt ponúka dostatok priestoru pre páry a rodiny s deťmi.
Spôsob výstavby spĺňa najnovšie stavebné normy s vynikajúcou energetickou bilanciou.
Engstlatt je mestská časť Balingenu s približne 35 000 obyvateľmi v Zollernalbkreis, pri úpätí Schwäbische Alb v Bádensku Württembersku. Táto časť mesta disponuje základnou školou a rôznymi nákupnými možnosťami, ktoré pokrývajú každodenné potreby. Prirodzené okolie, vedľajšie Čierneho lesa a Albu, láka na outdoorové aktivity a umožňuje pestré voľnočasové vyžitie.
Dopravne je Balingen veľmi dobre napojený. Mesto sa nachádza v bezprostrednej blízkosti diaľnice A81, ktorá umožňuje rýchle spojenie do Štuttgartu (cca 45 minút), k Bodamskému jazeru (cca 45 minút) a aj do Švajčiarska. Nádražie v Balingene ponúka pravidelné vlakové spojenia do Štuttgartu a Tübingenu.
Región je významným centrom textilného a strojárskeho priemyslu. Mnohé renomované firmy majú sídlo práve tu a prispievajú k hospodárskej stabilite regiónu.
Ako vykurovacia a ventilačná technika je inštalované vzduch-vodné tepelné čerpadlo v kombinácii s plynovým kondenzáciou zariadením a fotovoltaická inštalácia s teplovodnou nádrží, ako aj systém vetrania obytných priestorov. Tým sa zabezpečuje, že energetické náklady zostávajú nízke.
V svetlom a moderne navrhnutom byte boli použité výlučne prvotriedne materiály.
K bytu patrí úložná miestnosť a vonkajšie parkovacie miesto.
Voliteľne je možné za malý príplatok pridať kuchyňu a garáž.
Parametre nehnuteľnosti
| Vek | Nad 50 rokov |
|---|---|
| Stav | Novostavba |
| Poschodie | 2. poschodie z 3 |
| PENB | A - Mimoriadne úsporné |
| Cena za jednotku | 16 € / m2 |
| Dostupné od | 26. 1. 2026 |
|---|---|
| Dispozícia | 3+1 |
| Číslo inzerátu | 980678 |
| Úžitková plocha | 82 m² |
Čo táto nehnuteľnosť ponúka?
| Balkón | |
| Výťah | |
| MHD 4 minúty pešo |
| Pivnica | |
| Parkovanie | |
| Terasa |
V okolí nehnuteľnosti nájdete
Stále hľadáte to pravé?
Nastavte si strážneho psa. Ponuky vybrané na mieru dostanete súhrnne 1× denne e-mailom. S Premium profilom máte po ruke rovno 5 strážcov a keď sa niečo objaví, informujú vás obratom.






