
Prenájom bytu 3+1 • 84 m² bez realitkyBettlerpfad 13, , Hesensko
Bettlerpfad 13, , HesenskoMHD 5minút pešo • ParkovanieNa prenájom je moderný byt (novostavba) v 1. nadzemnom podlaží udržiavaného viacrodinného domu v Butzbach, mestskej časti Griedel. Premyslený pôdorys poskytuje príjemný pocit bývania s jasným rozdelením miestností a množstvom denného svetla.
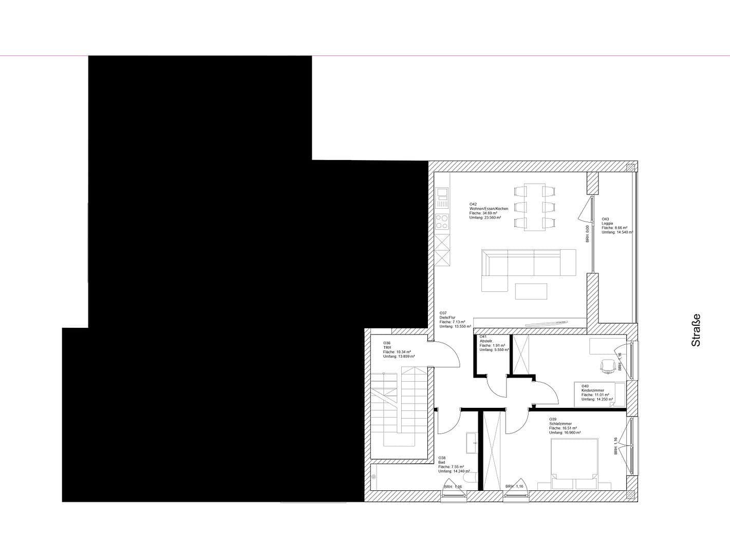
Srdcom bytu je priestranná obývacia, jedálenská a kuchynská časť s približne 35 m², ktorú je možné rôzne zariadiť. Spálňa s približne 16,50 m² ponúka dostatok miesta pre veľkú posteľ, skriňu a ďalší nábytok. K dispozícii je tiež detská izba s približne 11,00 m². Priestorovú ponuku dopĺňa veľká loggia s 8,66 m² a praktická úložná miestnosť priamo v byte.
Byt sa nachádza v Butzbach, mestskej časti Griedel, v pokojnej a zároveň dopravne výhodnej lokalite. Priame napojenie na diaľnicu A5 (1 minúta od bytu k diaľnici) a bezprostredná blízkosť k A45 umožňujú rýchle cesty smerom k Gießen, Friedberg, Frankfurt nad Mohanom a do celého regiónu Rýn-Majn – ideálne pre dochádzajúcich.
Nákupné možnosti, lekári, lekárne, ako aj školy a materské školy sa nachádzajú v Butzbach a sú v závislosti od cieľa dostupné za krátky čas. Zároveň Griedel ponúka príjemné, rozvinuté životné prostredie so zmesou pokoja a blízkosti mesta.
Energetický štandard: Efektívny dom 40
Loggia cca 8,66 m²
Sprchovňa (moderné prevedenie)
Priestranná spálňa cca 16,51 m²
Obývacia, jedálenská a kuchynská časť cca 35 m²
(Poznámka: bez vstavaných spotrebičov – ideálne pre vlastné plánovanie kuchyne)
Úložná miestnosť priamo v byte
Práčovňa v suteréne s miestom pre práčky a sušičky
Samostatná skladovacia miestnosť v suteréne
K dispozícii optické vlákno (Telekom)
Parametre nehnuteľnosti
| Vek | Nad 50 rokov |
|---|---|
| Stav | Novostavba |
| Poschodie | 1. poschodie z 3 |
| PENB | B - Veľmi úsporné |
| Cena za jednotku | 15 € / m2 |
| Dostupné od | 1. 2. 2026 |
|---|---|
| Dispozícia | 3+1 |
| Číslo inzerátu | 980570 |
| Úžitková plocha | 84 m² |
Čo táto nehnuteľnosť ponúka?
| Balkón | |
| Parkovanie |
| Pivnica | |
| MHD 5 minút pešo |
V okolí nehnuteľnosti nájdete
Stále hľadáte to pravé?
Nastavte si strážneho psa. Ponuky vybrané na mieru dostanete súhrnne 1× denne e-mailom. S Premium profilom máte po ruke rovno 5 strážcov a keď sa niečo objaví, informujú vás obratom.



