
Prenájom bytu 2+1 • 58 m² bez realitkyHeiglhofstraße 86 München Hadern Bayern 81377
Heiglhofstraße 86 München Hadern Bayern 81377MHD 4 minúty pešo • VýťahTento krásny 2-izbový byt sa nachádza na 1. nadzemnom podlaží udržiavaného viacrodinného domu v Mníchove-Großhadern a vyniká svojim dobrým usporiadaním a pokojnou polohou v zelenom prostredí.
Byt bol nedávno kompletne zrekonštruovaný, takže je všetko nové: podlaha, kúpeľňa atď.
Pôvabná obytná zóna sa nachádza v pokojnej a zelenenej oblasti Mníchova-Großhadern.
Všetky obchody dennej potreby máte pešo vzdialené približne 10 minút. Tiež rôzne školy, materské školy, lekári a pod. sú v bezprostrednej blízkosti. Obzvlášť krásny je lesný revír vzdialený približne 5 minút, ktorý dokonca disponuje aj pivnou záhradou a vedie do veľkého parku Forstenrieder.
Máte vynikajúce dopravné spojenia: 2 minúty pešo k autobusovej zastávke, približne 8 minút k metru (U6) a len pár minút k výjazdom z diaľnic A96 a A95.
V obytných priestoroch je položená podlaha s príjemnou drevenou optikou, kúpeľňa je novo obkladaná dlažbou a disponuje úplne novým sanitárnym vybavením. Nachádza sa tu vaňa, toaleta, umývadlo, ohrievač uterákov a prípojka pre práčku.
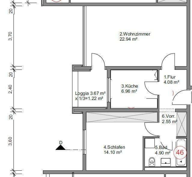
Pozor: Neexistuje zabudovaná kuchyňa, takže si nájomca musí zariadiť kuchyňu sám/sama.
Byt je dotiahnutý vlastnou pivničkou a spoločnou priestorom určeným na sušenie vecí a úložným priestorom pre bicykle.
Podzemné garážové miesto je možné prenajať samostatne za 65,00 eur mesačne.
Byt sa bude prenajímať dlhodobo s obojstranným vzdanie sa výpovede na 27 mesiacov od začiatku nájmu.
Index nájom: Základom je každoročne stanovený index cien životných nákladov, ktorý určuje Štatistický úrad. Prenajímateľ môže nájom raz ročne prispôsobiť všeobecnému vývoju cien.
Budúci nájomca nebude platiť žiadnu províziu.
Kaucia sa musí odložiť formou prevodu na osobitný kaučný depozitár, oddelený od majetku prenajímateľa. Kaučné poistenia, bankové garancie a podobné formy záruky nebudú akceptované.
IMPRESSUM:
Angela Wowra Prenájmy
Angela Wowra
Aberlestraße 7
81371 Mníchov
0174 1852474
Angela.wowra@aw-vermietungen.de
Povolenie podľa §34c od LRA Ebersberg
Parametre nehnuteľnosti
| Vek | Nad 50 rokov |
|---|---|
| Stav | Po rekonštrukcii |
| Poschodie | 1. poschodie z 3 |
| PENB | C - Hospodárne |
| Cena za jednotku | 19 € / m2 |
| Dostupné od | 2. 2. 2026 |
|---|---|
| Dispozícia | 2+1 |
| Číslo inzerátu | 980523 |
| Úžitková plocha | 58 m² |
Čo táto nehnuteľnosť ponúka?
| Balkón | |
| Výťah |
| Pivnica | |
| MHD 4 minúty pešo |
V okolí nehnuteľnosti nájdete
Stále hľadáte to pravé?
Nastavte si strážneho psa. Ponuky vybrané na mieru dostanete súhrnne 1× denne e-mailom. S Premium profilom máte po ruke rovno 5 strážcov a keď sa niečo objaví, informujú vás obratom.























