Predaj domu 7+1 • 330 m² bez realitky, Severné Porýnie - Westfálsko
Toto nádherné nedávno kompletne zrekonštruované rodinné domstvo zaujme už na prvý pohľad.
Vďaka vlastnej príjazdovej ceste, z ktorej máte výhľad na rozkošnú predzáhradu s pivonkami, plakatou vŕbou a malým rybníkom, sa dostanete k domu, kde sú k dispozícii miesto pre dva automobily. Štyri ďalšie parkovacie miesta sa nachádzajú na spodku pozemku.
Hneď po prístupe hore upúta pozornosť impozantný vstupný priestor. Dom sa svojou teplou farebnou odtieňom dokonale včleňuje do prírody.
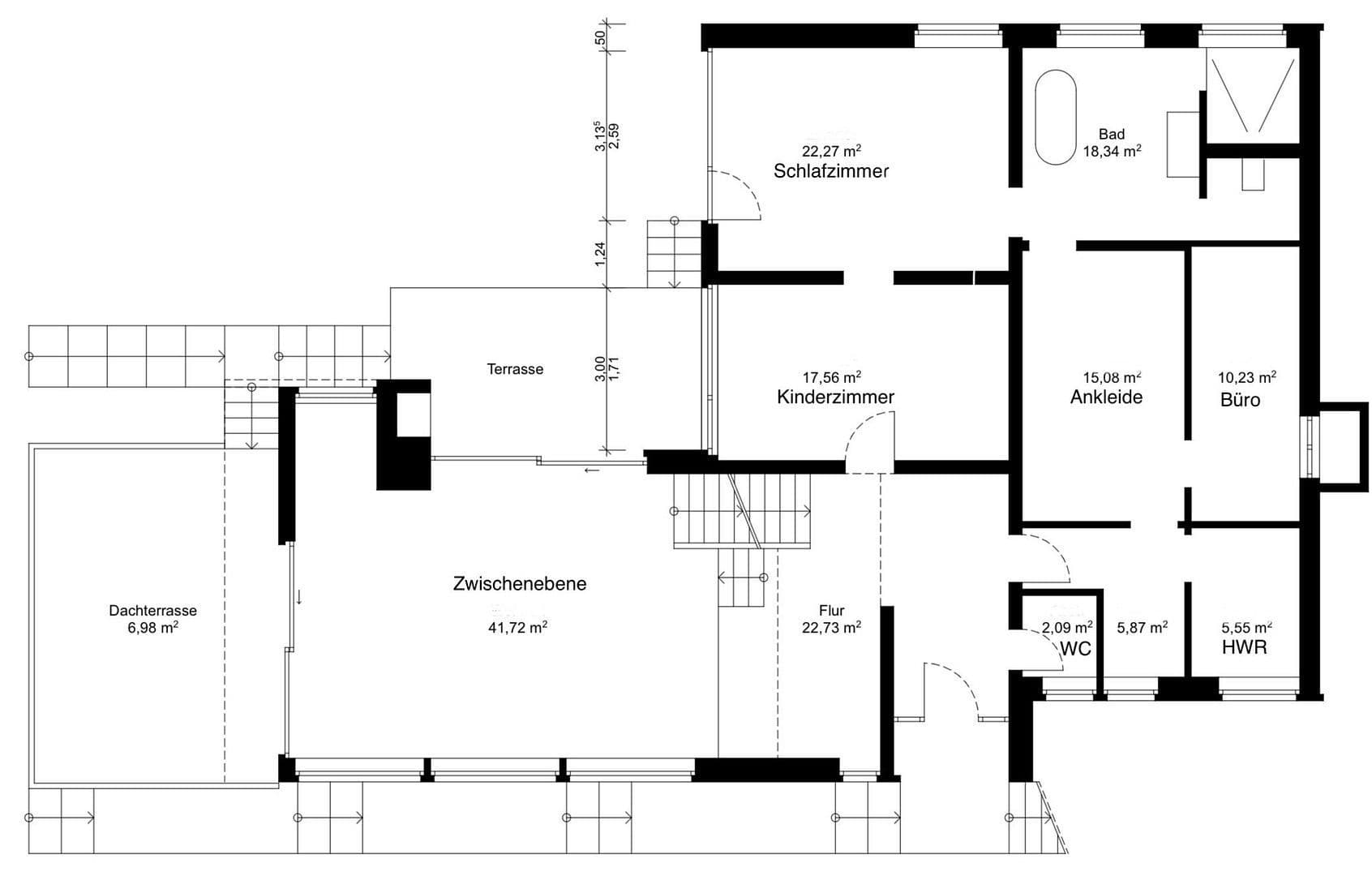
Už pri vstupe do domu je zjavné kvalitné a vkusné vybavenie, ako napríklad XXL dlaždice a LED svetelné lišty. Dom sa vyznačuje premysleným rozdelením – v prízemí sa nachádza hlavná spálňa s pripojenou nádherne zariadenou dizajnovou kúpeľňou s vaňou a šatníkom, ako aj detská izba. Na tejto úrovni sa nachádza aj kancelária a práčovňa a návštevné WC.
Ďalej hore vás čaká medziposchodie. Obrovská, prirodzene osvetlená miestnosť ponúka priestor pre akékoľvek využitie. (V prípade potreby sa tento priestor dá bez problémov prebudovať na ďalšiu izbu.) Vďaka podlahovým hliníkovým oknám máte výhľad na svoj pozemok, ktorý je v absolútnom súkromí a zdobený pôvodným kvetinovým a rastlinným porastom.
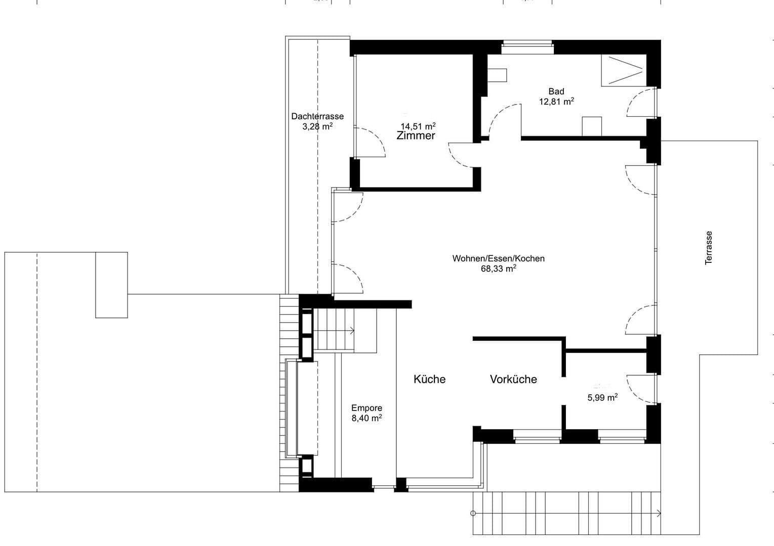
Ešte o jedno poschodie vyššie vstúpite do srdca domu. V nádhernej dizajnovanej kuchyni s výhľadom na oblohu sa doslova tešíte na varenie. V tejto kuchyni bolo premyslené všetko až do najmenších detailov. Napríklad, cez systém Quooker získate vriacu a perlenú vodu priamo z kohútika, takže nemusíte ťahať ťažké balenia domov. Nepraktické a nevkusné kuchynské spotrebiče jednoducho skryjete v predkuchyni, ku ktorej je pohodlný prístup cez vysokú rad vstavaných skríň, takže špeciálne vyrobený ostrov v kuchyni stále žiari.
V prilehlom jedálenskom priestore aj vo veľkom obývacom priestore vás opäť upútajú veľké podlahové hliníkové okná s perfektne ladeným vstavaným nábytkom a výhľadom na pekný pozemok vo všetkých smeroch.
Na tej istej úrovni sa nachádza aj ďalšia spálňa alebo detská izba s pripojenou veľmi štýlovou dizajnovou sprchovým kúpeľňou.
Z obývacej izby sa dostanete do rozkošnej záhrady. Malý priestor priamo prístupný zo záhrady ponúka miesto pre záhradné vankúše a záhradné náradie.
Celkovo tento dom ohromuje na každom štvorcovom metre: dizajn a funkčnosť sa navzájom dokonale dopĺňajú.
Na pokojnom a nádhernom Ahlenbergu v Herdecke vás na ceste domov privítajú kone zo svojej pastviny.
Obklopený lesmi, poľami a lúkami máte prírodu priamo pred dverami.
Pozemok je skrytý v absolútnom súkromí medzi kvalitnými rodinnými domami a exkluzívnymi vilami.
Školy a obchody, ktoré pokrývajú každodenné potreby, sú v bezprostrednej blízkosti.
Autobusová zastávka je vzdialená len pár minút chôdze.
Takisto máte k dispozícii výborné napojenie na diaľnicu.
Cca 10 minút autom vás dovedie do čarovného Herdecke a cca 20 minút ste v centre Dortmundu.
- Kompletná rekonštrukcia a technické vybavenie je úplne nové s tepelným čerpadlom, ktoré je elektricky podporované a využíva solárnu termiu.
- Komfortné ovládanie prostredníctvom Smarthome; možnosť ovládať osvetlenie, kúrenie, žalúzie, interkom prostredníctvom aplikácie.
- Alarmový systém, ktorý je takisto riaditeľný cez aplikáciu.
- XXL hliníkové okná v exkluzívnej farebnej úprave.
- Vstavané LED svetelné lišty.
- Žalúzie.
- Talianske XXL dlaždice.
- Umývateľná farba na stenách.
- Kvalitný vstavaný nábytok v kúpeľniach, obývacej izbe a predkuchyni.
- High End Next kuchyňa s prémiovými kuchynskými spotrebičmi.
- Dizajnová kúpeľňa.
- Pekná veľká terasa (cca 20 m²) a balkón (cca 7 m²) s nádherným výhľadom do hôr a údolia, navyše dve záhradné terasy.
- Technické vedenia umožňujú v budúcnosti vybavenie bazénom.
- 316 m² čistej obytné plochy je možné nastahovať krátkodobo.
Parametre nehnuteľnosti
| Vek | Nad 50 rokov |
|---|---|
| Stav | Veľmi dobrý |
| Číslo inzerátu | 980395 |
| Úžitková plocha | 330 m² |
| Celkové poschodia | 2 |
| Dostupné od | 12. 1. 2026 |
|---|---|
| Dispozícia | 7+1 |
| PENB | A - Mimoriadne úsporné |
| Plocha pozemku | 1 895 m² |
| Cena za jednotku | 7 545 € / m2 |
Čo táto nehnuteľnosť ponúka?
| Balkón | |
| Parkovanie | |
| Terasa |
| Pivnica | |
| MHD 0 minút pešo |
V okolí nehnuteľnosti nájdete
Stále hľadáte to pravé?
Nastavte si strážneho psa. Ponuky vybrané na mieru dostanete súhrnne 1× denne e-mailom. S Premium profilom máte po ruke rovno 5 strážcov a keď sa niečo objaví, informujú vás obratom.













