Predaj bytu 4+1 • 83 m² bez realitkyKirschentalgasse 10 Innsbruck Mariahilf Tirol 6020
Kirschentalgasse 10 Innsbruck Mariahilf Tirol 6020MHD 2 minúty pešo • Výťah • GarážSúkromný predaj!
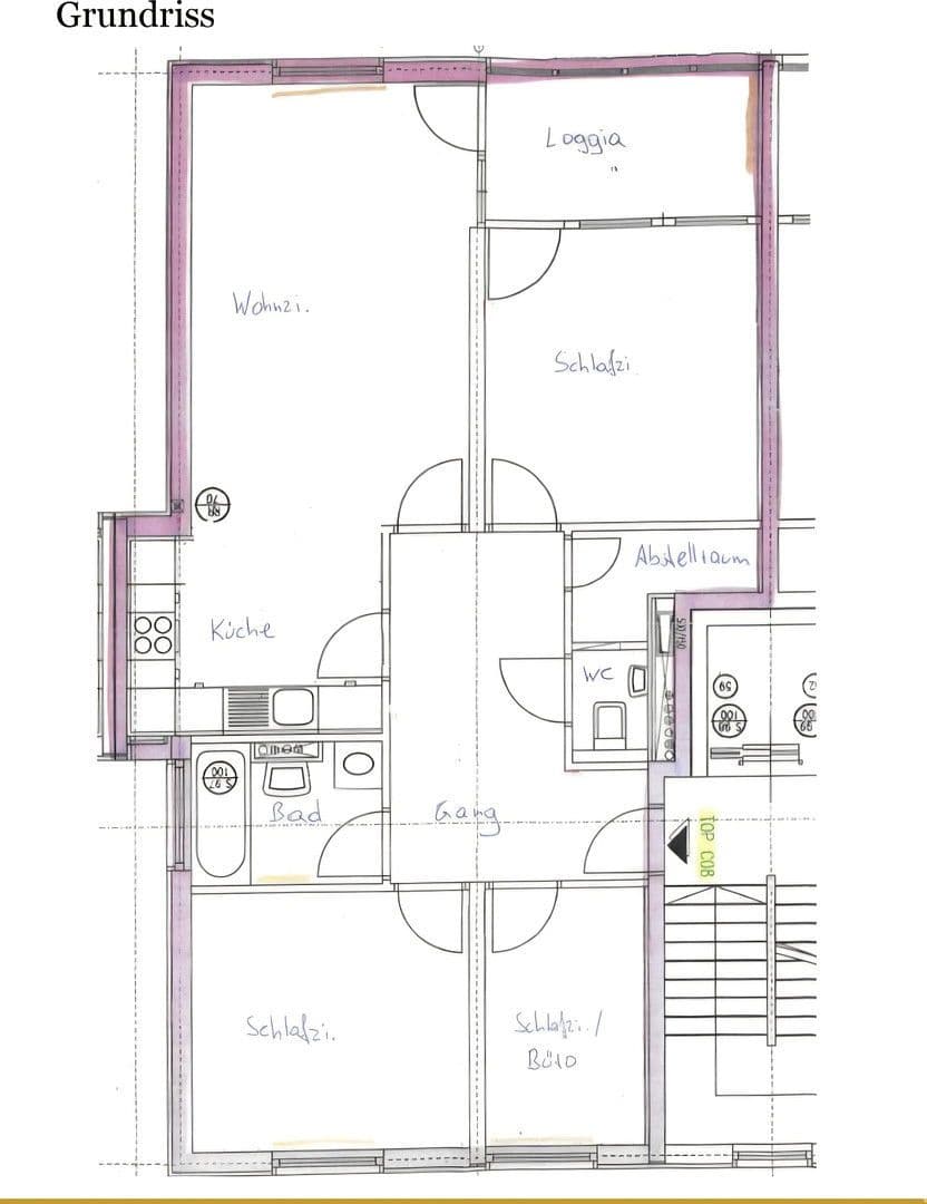
Svetlý 4-izbový byt v centrálnej a pokojnej lokalite
V obľúbenej obytné štvrti Innsbruck „Hötting“ sa tento svetlý a veľmi dobre dispozíčný 4-izbový byt predáva s loggiou.
K bytu patrí parkovacie miesto v podzemnej garáži a pivnica.
Výnimočne tichá lokalita túto kúpu ešte umocňuje.
Mestské centrum je dostupné pešo len za pár minút.
Zabezpečenie každodenných potrieb je postačujúce vďaka viacerým obchodom.
Materská škola a základná škola sú dostupné do 3 minút.
Prevádzkové náklady € 541,65
Vrátane rezerv
Momentálne je prenajatý do 28.02.2027
Parametre nehnuteľnosti
| Vek | Nad 50 rokov |
|---|---|
| Dispozícia | 4+1 |
| Číslo inzerátu | 980298 |
| Úžitková plocha | 83 m² |
| Stav | Dobrý |
|---|---|
| Poschodie | 1. poschodie z 3 |
| PENB | C - Hospodárne |
| Cena za jednotku | 7 048 € / m2 |
Čo táto nehnuteľnosť ponúka?
| Pivnica | |
| Výťah |
| Garáž | |
| MHD 2 minúty pešo |
V okolí nehnuteľnosti nájdete
Stále hľadáte to pravé?
Nastavte si strážneho psa. Ponuky vybrané na mieru dostanete súhrnne 1× denne e-mailom. S Premium profilom máte po ruke rovno 5 strážcov a keď sa niečo objaví, informujú vás obratom.















