
Predaj domu 4+1 • 103 m² bez realitkyViniční, Brno - Židenice, Jihomoravský kraj
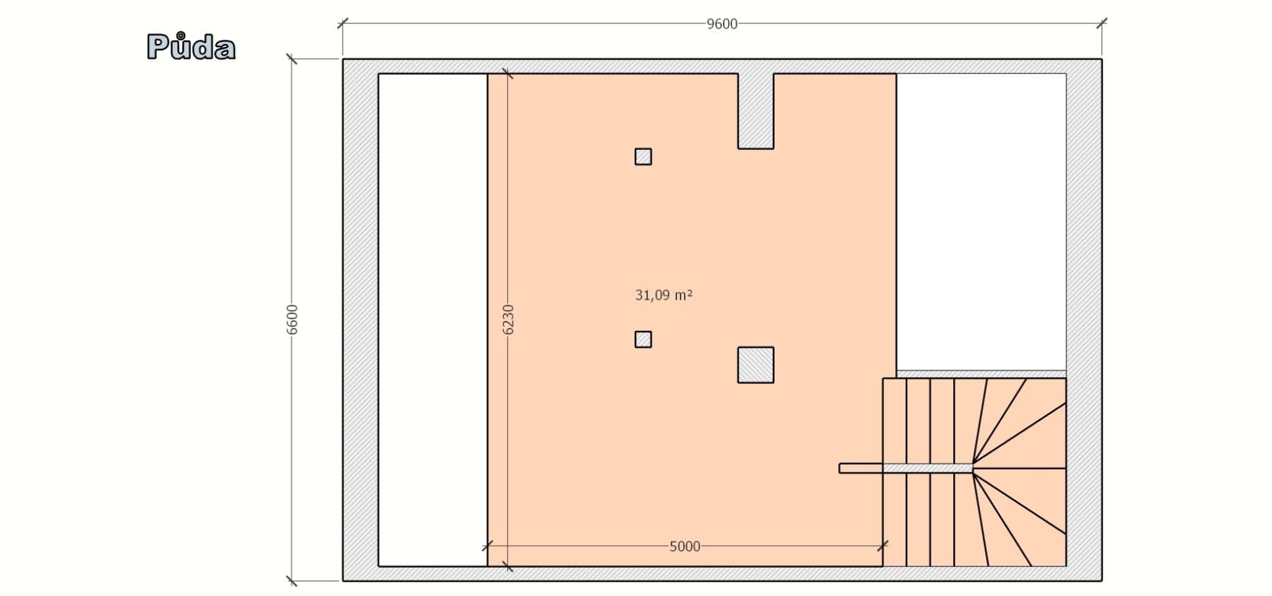
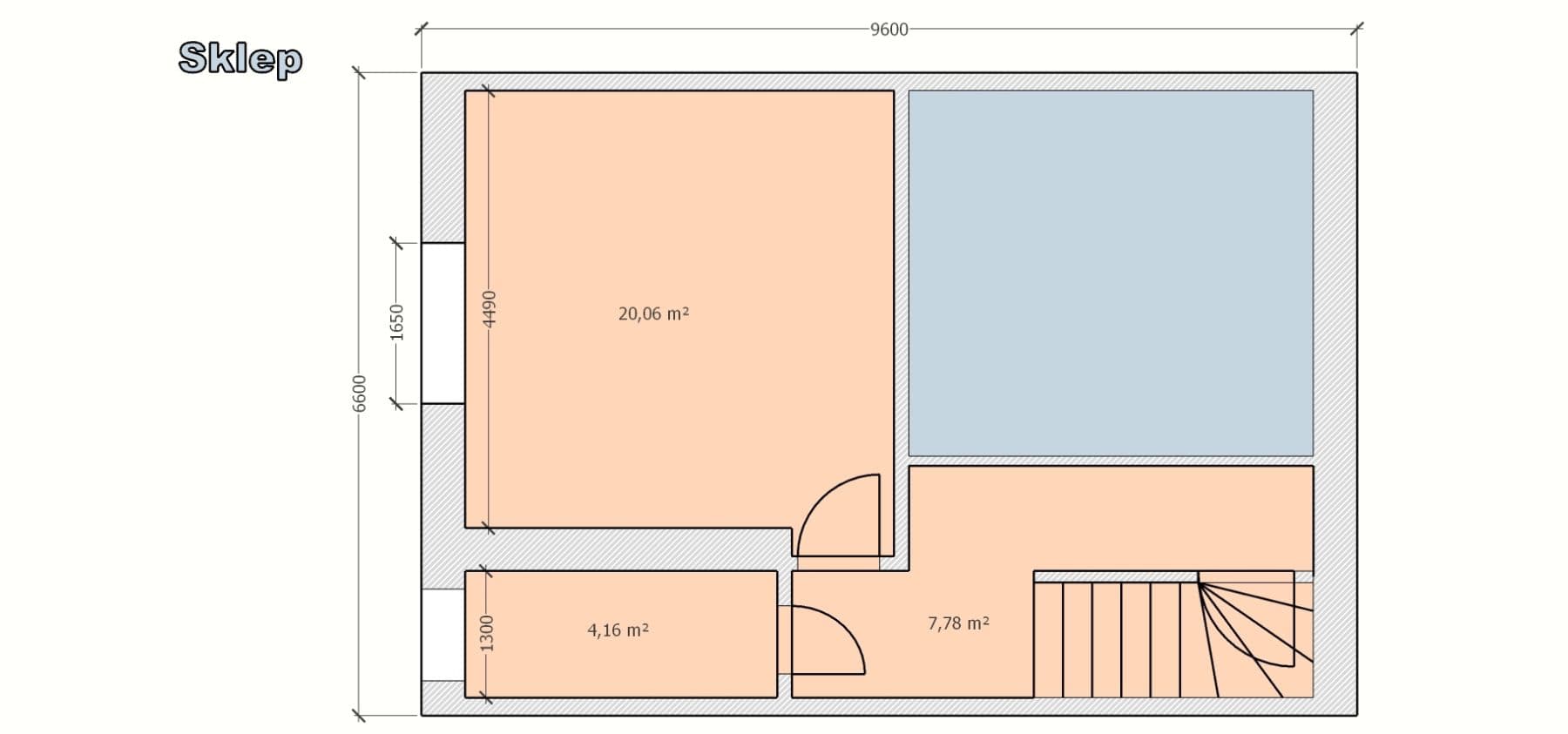
Viniční, Brno - Židenice, Jihomoravský krajPivnica 32 m²Prodávám svůj dům 4+1, který se nachází v osobním vlastnictví a je postaven z cihly. Nemovitost je před rekonstrukcí, což nabízí skvělou příležitost přeměnit ji přesně podle vlastních představ a potřeb. Dispozice dvoupatrového domu činí 103 m² obytné plochy, ke které náleží také sklep o rozloze 32 m², půda s využitelnou podlahovou plochou o rozloze 31 m² a zahradu o výměře 47 m², jenž může posloužit pro zařizování zahrady či jiných aktivních prostor. Dům je v nevybaveném stavu, což je ideální volba pro ty, kdo si chtějí interiér zařídit podle vlastního vkusu a stylu.
Celá nemovitost se nachází na klidné lokalitě, která je vhodná jak pro rodinné bydlení, tak i pro investiční záměr. V případě zájmu mě neváhejte kontaktovat skrz zprávy či komunikační platformu, kde se můžeme domluvit na osobní prohlídce a dalších detailech. Jedná se o přímý prodej od majitele, k dispozici ihned.
Parametre nehnuteľnosti
| Dostupné od | 11. 1. 2026 |
|---|---|
| Konštrukcia budovy | Tehla |
| Vybavené | Nevybavené |
| Vlastníctvo | Osobné |
| Poloha domu | Radovka |
| Plocha pozemku | 110 m² |
| Stav | Pred rekonštrukciou |
|---|---|
| Dispozícia | 4+1 |
| Číslo inzerátu | 980225 |
| PENB | G - Mimoriadne nehospodárne |
| Úžitková plocha | 103 m² |
| Cena za jednotku | 96 117 CZK / m2 |
Čo táto nehnuteľnosť ponúka?
| Pivnica 32 m² |
V okolí nehnuteľnosti nájdete
Stále hľadáte to pravé?
Nastavte si strážneho psa. Ponuky vybrané na mieru dostanete súhrnne 1× denne e-mailom. S Premium profilom máte po ruke rovno 5 strážcov a keď sa niečo objaví, informujú vás obratom.














