Prenájom nebytového priestoru • 76 m² bez realitkyWeiserstraße 28 Salzburg Schallmoos Salzburg 5020
Weiserstraße 28 Salzburg Schallmoos Salzburg 5020MHD 2 minúty pešoKvôli odchodu do dôchodku prenajímam odteraz
PROVÍZNE ZADARMO
svoj obchodný priestor v bezprostrednej blízkosti salzburskej HLAVNEJ ŽELEZNIČNEJ STANICE.
Obchodný priestor sa nachádza v prízemí obytného bloku s celkovo 42 bytmi a 3 ďalšími obchodnými priestormi.
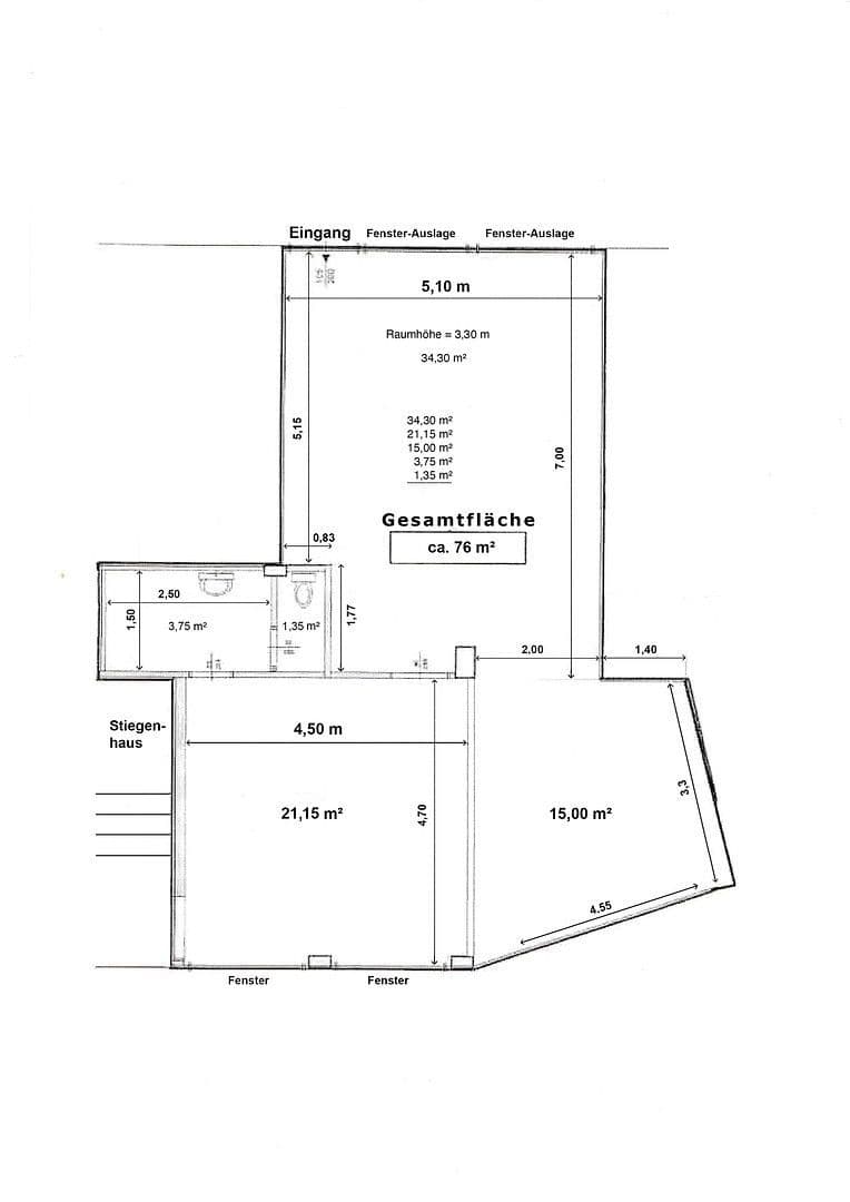
Celková obchodná plocha cca 76 m² je rozdelená na 3 miestnosti:
1. Predajňa (cca 50 m²)
a
2. Kancelária (cca 21 m²), tieto dve miestnosti sú oddelené iba dočasnou stenou, ktorú je možné podľa potreby odstrániť.
3. Sklad s pripojením na vodu (resp. malá kuchyňa, má rozlohu cca 5 m²) a WC (cca 1 m²)
Do obchodu vedú 2 vstupné dvere: jedna zo strany ulice a druhá (ťažké bezpečnostné dvere) v zadnom dvore obytného bloku resp. v schodisku domu.
Aj skladovací priestor v obchodnom priestore je oddelený od kancelárie bezpečnostnými dverami.
Všetky výklady, dve veľké okná vo vnútornom dvore a vstupné dvere sú navyše chránené žalúziami.
Celý obchodný priestor bol pred niekoľkými rokmi nákladne celkom zrekonštruovaný: boli obnovené všetky elektrické káble, zásuvky, vypínače, kúrenárske telesá a dvere.
Podlaha bola obložená kameninovými obkladmi.
Celý obchodný priestor bol nedávno znovu natretý.
Bola inštalovaná kabelážom prepojená alarmová sústava (ktorá je už technologicky zastaraná), ale stále funguje.
Ponúkaný obchodný priestor je vynikajúco vhodný aj ako kancelária.
Mesačný nájom činí 1.500,- EURO. Nájomca má tiež niesť prevádzkové náklady, ktoré momentálne činia cca 386,- EURO vrátane DPH, pričom obchodný priestor v posledných rokoch nebol vykurovaný. Bezprostredne pod obchodom sa nachádza kúrená miestnosť celého obytného bloku, vďaka čomu teplota v miestnostiach aj počas zimy málokedy klesne pod 19 stupňov.
P.S. Nevhodné pre gastronomický prevádzku. Energický preukaz je k dispozícii. Obchodný priestor je zároveň na predaj (VP 330.000,- €)
Salzburg Schallmoos / Neustadt, v bezprostrednej blízkosti zadnej strany salzburskej hlavnej železničnej stanice, resp. cca 250 metrov od hlavného vchodu do HBF Salzburg.
Cca 60 metrov k autobusovým zastávkam v oboch smeroch.
Cca 100 metrov k 24-hodinovej policajnej stanici.
Parametre nehnuteľnosti
| Vek | Nad 50 rokov |
|---|---|
| Číslo inzerátu | 980137 |
| Cena za jednotku | 20 € / m2 |
| Stav | Po rekonštrukcii |
|---|---|
| Plocha nebytového priestoru | 76 m² |
Čo táto nehnuteľnosť ponúka?
| Bezbariérový prístup |
| MHD 2 minúty pešo |
V okolí nehnuteľnosti nájdete
Stále hľadáte to pravé?
Nastavte si strážneho psa. Ponuky vybrané na mieru dostanete súhrnne 1× denne e-mailom. S Premium profilom máte po ruke rovno 5 strážcov a keď sa niečo objaví, informujú vás obratom.























