Predaj bytu 4+1 • 113 m² bez realitkyKassel Kassel Hessen 34128
Kassel Kassel Hessen 34128MHD 2 minúty pešoEs ide o veľmi príťažlivý, takmer ako nový kompletne zariadený a priestranne rozdelený byt v tichej bočnej ulici, chránený a vďaka svojej zadnej polohe neviditeľný z ulice, obklopený zeleňou. Byt sa nachádza v 1. poschodí a obytná plocha je rozdelená na obývaciu izbu s prístupom na balkón, spálňu, detskú izbu, izbu pre deti/prácu (tiež s prístupom na balkón), modernú kúpeľňu s denným svetlom (2011) vybavenú vaňou, sprchou, WC, bidetom, moderné návštevné WC (2011, vnútorné), kuchyňu so vstavanou kuchynskou linkou (2022) a spižírňu, predsieň.
Cukráreň (~50 metrov vzdialená!), lekáreň, rôzni lekári a možnosti nákupov sú dostupné v priebehu niekoľkých minút chôdze. Rovnako aj autobusová zastávka Harleshausen Mitte. Vo vyhliadke sa nachádza materská škôlka, základná škola "Am Krauthof" je vzdialená 450 m. Pred domom sa nachádza niekoľko (verejných) a bezplatne využiteľných parkovacích miest. Park "Am Kubergraben" s detským ihriskom začína priamo za domom.
Kassel-Harleshausen sa nachádza v najseverozápadnejšej časti mestskej oblasti a je obklopený zeleňou, prepustený poliami a lúkami, a preto patrí medzi najobľúbenejšie a najatraktívnejšie mestské štvrtě Kasselu s veľmi vysokou kvalitou bývania.
Obchodné možnosti sú dostupné. Vďaka výbornej dostupnosti verejnej dopravy alebo autom je centrum mesta ľahko dosiahnuteľné, rovnako ako diaľnica A 44. Pre športové alebo prírodné voľnočasové aktivity je ponuka veľmi pestrá.
Byt je moderný a väčšinou novový zariadený. Dôležité vlastnosti a chronologické investície do súkromného vlastníctva zahŕňajú:
2011: kompletná a vysoko kvalitná obnova kúpeľne s denným svetlom a návštevného WC vrátane stien a podlahových obkladov ako aj elektrického podlahového vykurovania
2014: nové vstupné dvere do bytu s hliníkovým vložkou, profilový valcový zámok s trojitým zablokovaním, vonkajšie tesnenia
2020: položenie dubového masívneho parkietu v celom byte (okrem kuchyne a kúpeľne), položenie kvalitného vinylu v kuchyni
2020: nové biele izbové dvere a natretie dverových rámov a radiátorov
2020: elektroinštalačné práce -> inštalácia chrániča prúdu (FI) a výmena/rozšírenie vypínačov a zásuviek
2022: nová moderná vstavaná kuchyňa (Burger) s obojstranne lakovanými frontami vrátane všetkých elektrických spotrebičov (všetky Siemens a odsávacia jednotka Berbel)
2025: byt zrekonštruovaný (všetky izby okrem kúpeľne boli novoz tapetované a natreté)
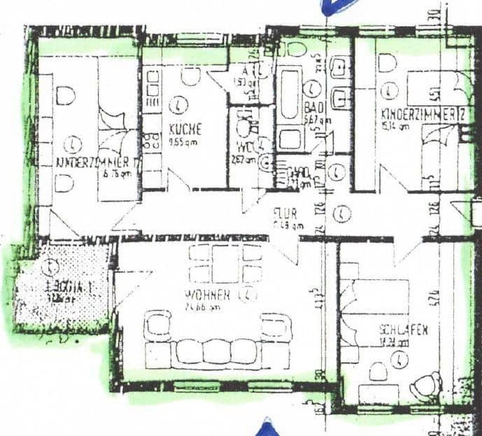
Rozlohy:
Obývačka: 24,60 m²
Spálňa: 18,28 m²
Izba pre deti/práca: 16,76 m²
Detská izba: 15,14 m²
Kuchyňa so vstavanou kuchynskou linkou: 9,63 m²
Spižiareň: 1,93 m²
Kúpeľňa s denným svetlom/podlahové vykurovanie: 6,67 m²
Návštevné WC: 2,62 m²
Predsien: 11,49 m²
Šatník: 2,23 m²
Loggia: 7,16 m²
Parametre nehnuteľnosti
| Vek | Nad 50 rokov |
|---|---|
| Stav | Po rekonštrukcii |
| Poschodie | 1. poschodie z 3 |
| PENB | C - Hospodárne |
| Cena za jednotku | 3 177 € / m2 |
| Dostupné od | 29. 1. 2026 |
|---|---|
| Dispozícia | 4+1 |
| Číslo inzerátu | 980102 |
| Úžitková plocha | 113 m² |
Čo táto nehnuteľnosť ponúka?
| Balkón |
| MHD 2 minúty pešo |
V okolí nehnuteľnosti nájdete
Stále hľadáte to pravé?
Nastavte si strážneho psa. Ponuky vybrané na mieru dostanete súhrnne 1× denne e-mailom. S Premium profilom máte po ruke rovno 5 strážcov a keď sa niečo objaví, informujú vás obratom.
















