Predaj domu 5+1 • 137 m² bez realitkySchwarzach 5 Schwabach Schwarzach Bayern 91126
Navrhnite si svoj vysnívaný dom vo Schwabachu – priestranná polovica dvojdomu s priamym prístupom k lesu
V 91126 Schwabach (Schwarzach 5) vás čaká jedinečná príležitosť: polovica dvojdomu s dostatkom priestoru, veľkou záhradou a priamym prístupom do lesa – ideálna pre rodiny, ktoré si chcú svoj domov zariadiť podľa vlastných predstáv.
Fakty v prehľade:
Pôvodná obytná plocha: cca 137 m²
Poschodie pod strechou: s možnosťou dokončenia
Pivnica k dispozícii
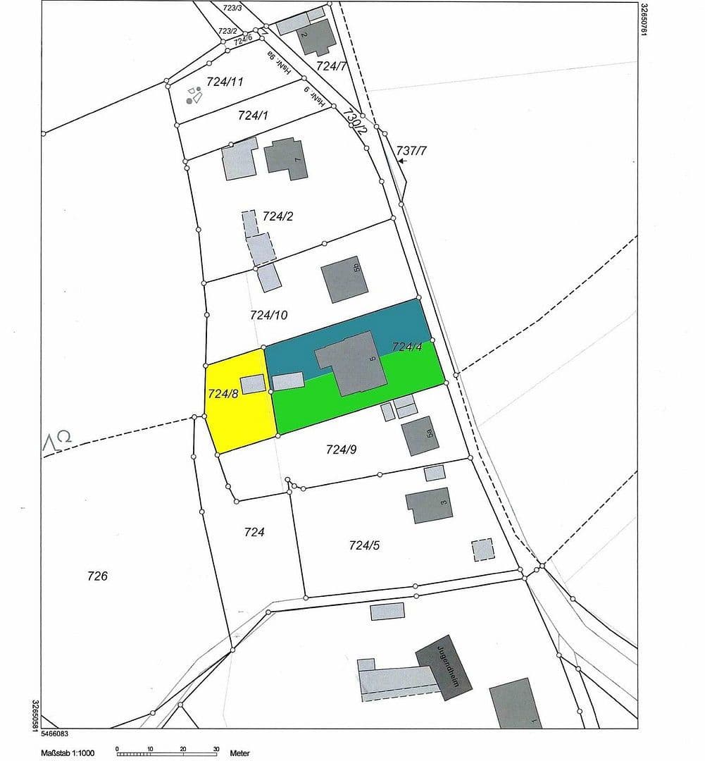
Podiel na parcele: cca 693 m² (spolu 1385 m² ako spoločné vlastníctvo)
Príplatok za lesný pozemok: cca 537 m² (spoločné vlastníctvo)
Spoločne využívaný záhradný domček (predtým saunový dom)
Naolejové kúrenie a malá čistiaca stanica (spoločne využívané)
Dotknutá polovica dvojdomu je úplne zbavená vnútorných príčok a nachádza sa v surovom stave stavby. Máte možnosť si samostatne naplánovať dispozíciu, výber vybavenia a energetický štandard.
Na pôvodných plánoch je ponúkaná polovica domu vyznačená zelenou farbou.
Renovačné opatrenia sú povolené v rámci vyhlásenia o rozdelení vlastníctva. Keďže ide o polovicu dvojdomu spravovanú spoločenstvom vlastníkov, stavebné zásahy do spoločného vlastníctva je potrebné konzultovať s majiteľkou druhej polovice.
Cena:
Objekt sa ponúka za hodnotu parcely cca 318 000 € (odhadovaná hodnota zeme: 460 €/m², stav k 01.01.2024).
Prehliadka:
Zažite možnosti na mieste – osobne si najmä rodiny uvedomia celý potenciál pri osobnej prehliadke.
Podpora:
Využite atraktívne dotačné programy – je možný dotatok až do 70 % a výhodné úvery!
Jednotlivé opatrenia (napr. izolácia, výmena vykurovania) cez BAFA/KfW s dotáciou až do 70 %
Kompletná rekonštrukcia na energeticky efektívny dom s úverom KfW-261 (až 150 000 €, dotácia na splácanie 5–45 %)
BAFA zabezpečí plánovanie a odborné poradenstvo s dotáciou až do 50 %
Daňový bonus až do 20 % na rekonštrukčné náklady (max. 200 000 €)
Odborník na energetickú efektívnosť vás sprevádza celým procesom získavania podpory – od podania žiadosti až po realizáciu. Všetky dotačné prostriedky je potrebné požiadať pred začiatkom prác!
Nehnuteľnosť sa nachádza v Schwarzachu, idylickej časti Schwabachu, cca 12 km južne od Norimberku. Obklopená lesnými plochami, v blízkosti sútoku riek Rednitz a Schwarzach. Má vynikajúce spojenie cez štátnu cestu 2239 na B2 a diaľnicu A6, pravidelné spoje MHD (linka VGN 678) do Schwabachu a Feucht. Nákupné možnosti nájdete v blízkom ORO Centre.
Moja polovica domu je úplne zbavená vnútorných príčok a môže byť prestavaná podľa nových predstáv. Potrebné renovačné opatrenia sú povolené v rámci vyhlásenia o rozdelení vlastníctva. Keďže ide o polovicu dvojdomu spravovanú spoločenstvom vlastníkov, stavebné zásahy do spoločného vlastníctva je potrebné konzultovať s majiteľkou druhej polovice.
Parametre nehnuteľnosti
| Vek | Nad 50 rokov |
|---|---|
| Stav | Pred rekonštrukciou |
| Číslo inzerátu | 980036 |
| Úžitková plocha | 137 m² |
| Celkové poschodia | 3 |
| Dostupné od | 12. 1. 2026 |
|---|---|
| Dispozícia | 5+1 |
| PENB | G - Mimoriadne nehospodárne |
| Plocha pozemku | 693 m² |
| Cena za jednotku | 2 321 € / m2 |
Čo táto nehnuteľnosť ponúka?
| Pivnica |
| MHD 2 minúty pešo |
V okolí nehnuteľnosti nájdete
Stále hľadáte to pravé?
Nastavte si strážneho psa. Ponuky vybrané na mieru dostanete súhrnne 1× denne e-mailom. S Premium profilom máte po ruke rovno 5 strážcov a keď sa niečo objaví, informujú vás obratom.





































