Prenájom bytu 2+kk • 50 m² bez realitkyStolpmünder Str. 13, , Šlezvicko-Holštajnsko
Stolpmünder Str. 13, , Šlezvicko-HolštajnskoMHD 1 minúta pešoDiese frisch renovierte 2,5-Zimmer-Dachgeschosswohnung besticht durch ihren perfekten Grundriss: Alle Räume sind direkt vom Flur aus erreichbar – ideal für ein geordnetes, angenehmes Wohngefühl, auch mit mehreren. Die Wohnung verfügt über Zimmer zur Vorder- und Rückseite des Hauses sowie nach Süden, was für ausgewogene Lichtverhältnisse und flexible Nutzungsmöglichkeiten sorgt. Die Renovierungen befinden sich gerade im Abschluss. Zur Besichtigung sind voraussichtlich alle Arbeiten ausgeführt.
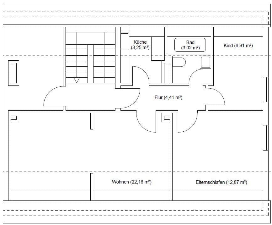
Táto čerstvo zrekonštruovaná 2,5 izbová garsoniéra na podkroví vás oslní perfektným dispozíciou: Všetky miestnosti sú priamo prístupné z chodby – ideálne pre usporiadané a príjemné bývanie, dokonca aj pre viac osôb. Byt ponúka izby orientované na prednú aj zadnú časť domu, ako aj na juh, čo zaručuje vyvážené osvetlenie a flexibilné možnosti využitia. Rekonštrukčné práce sú takmer dokončené. Predpokladá sa, že pri obhliadke budú všetky práce už vykonané.
Besonders attraktiv für junge Familien oder Paare mit Platzbedarf: Das kleinere Zimmer eignet sich perfekt als Kinder-, Gäste-, Ankleide- oder Arbeitszimmer. Die neue Tischlerküche, das modernisierte Vollbad und der helle Boden in Holzoptik ermöglichen Wohlfühlen direkt nach Einzug. Dank Glasfaseranschluss ist auch das Arbeiten von zu Hause aus problemlos möglich. Das Bad ist mit einer Badewanne unter der Dachschräge ausgestattet. Es kann nicht im Stehen geduscht werden! Das müsste man im Sitzen tun oder gleich ein Bad am Abend nehmen.
Obzvlášť atraktívne pre mladé rodiny alebo páry so zvýšenými nárokmi na priestor: Menšia izba je ideálna ako detská izba, izba pre hostí, šatník alebo pracovňa. Nová stolárska kuchyňa, zmodernizovaná kúpeľňa a svetlý podlahový povrch v drevenom vzhľade umožňujú pocit pohody už hneď po nasťahovaní. Vďaka optickému vláknu je tiež možná bezproblémová práca z domu. Kúpeľňa je vybavená vaňou pod šikmou strechou – sprchovanie by sa tam nedalo vykonávať v stoji! Buď by ste si mali sprchu dať v sede, alebo si radšej užiť večernú kúpeľňu.
Die eigene Gas-Kombitherme gibt Ihnen die volle Kostenkontrolle und günstiges Warmwasser jederzeit so viel Sie mögen.
Vlastná plynová kombinovaná kotolňa vám poskytuje úplnú kontrolu nad nákladmi a umožňuje získavať teplú vodu v požadovanom množstve kedykoľvek.
Auf dem Dachboden und im Gemeinschaftsgarten stehen Wäscheleinen zur Verfügung, ein Fahrradkeller (auch für Kinderwagen geeignet) gehört zum Haus, und ein Verschlag auf dem Dachboden kann bei Bedarf günstig angemietet werden. Ein Hausmeister kümmert sich zuverlässig um Ordnung und Anliegen.
Na pôde a v spoločnej záhrade sú k dispozícii šnúry na pranie, súčasťou domu je aj pivnička na bicykle (vhodná aj pre detské kočíky) a sklad na pôde si môžete v prípade potreby prenajať za zvýhodnenú cenu. Domovník sa spoľahlivo postará o poriadok a riešenie vašich požiadaviek.
Hinweis: Die Fassade des Hauses ist optisch in die Jahre gekommen, die Wohnung selbst jedoch modernisiert und sofort bezugsbereit. Kein Balkon vorhanden.
Zu Fuß:
3 min – Kindertagesstätte
5 min – Sporthalle & Sportplatz
6 min – Piratenspielplatz
6 min – Park
8 min – Gemeinschaftsschule Elbschule
20 min – Supermarkt & Besorgungen -> 5 min mit Fahrrad
22 min – Bahnhof -> 5 min mit Fahrrad
22 min – Klinikum Glückstadt -> 6 min mit Fahrrad
22 min – Elbe -> 6 min mit Fahrrad
23 min – Innenstadt -> 6 min mit Fahrrad
Poznámka: Fasáda domu pôsobí vizuálne už staršie, avšak samotný byt je zmodernizovaný a pripravený na okamžité nasťahovanie. Žiadny balkón.
Pešo:
3 min – materská škôlka
5 min – športová hala a ihrisko
6 min – ihrisko pre deti (Pirati)
6 min – park
8 min – komunitná škola Elbschule
20 min – supermarket a obchody (5 min na bicykli)
22 min – vlaková stanica (5 min na bicykli)
22 min – nemocnica Glückstadt (6 min na bicykli)
22 min – rieka Elbe (6 min na bicykli)
23 min – centrum mesta (6 min na bicykli)
Mit dem Auto:
5 min – ganz Glückstadt
25 min – Bf. Elmshorn
28 min – Bf. Itzehoe
37 min – Pinneberg
52 min – Altona
64 min – Hamburg Hbf.
Autom:
5 min – centrum Glückstadtu
25 min – stanica Elmshorn
28 min – stanica Itzehoe
37 min – Pinneberg
52 min – Altona
64 min – hlavná stanica Hamburg
Mit dem ÖPNV ab Bf. Glückstadt:
17 min – Bf. Elmshorn
18 min – Bf. Itzehoe
31 min – Pinneberg
41 min – Bf. Altona-Hamburg
47 min – Hamburg Hbf.
V MHD zo stanice Glückstadt:
17 min – stanica Elmshorn
18 min – stanica Itzehoe
31 min – Pinneberg
41 min – stanica Altona-Hamburg
47 min – hlavná stanica Hamburg
Modernisiert – Aktueller Wohnstandard
Zmodernizované – súčasný štandard bývania
Weiße Wände, Fenster, Türen, alles , frisch gestrichen – Einzugsbereit & hell
Biele steny, okná, dvere, všetko čerstvo natreté – pripravené na nasťahovanie a veľmi svetlé
Perfekter, effizienter Schnitt – Optimal genutzt
Perfektné a efektívne riešenie priestoru – optimálne využitie
Kleines Bad mit Fenster - Licht und frische Luft, statt Gerüchen
Malá kúpeľňa s oknom – svetlo a čerstvý vzduch namiesto zápachu
Badewanne - ohne Duschen im Stehen
Vaňa – sprchovanie nie je možné v stoji
eigene Gastherme - volle Kostenkontrolle
Vlastná plynová kotolňa – úplná kontrola nad nákladmi
Gas-Kombitherme - eigenes Warmwasser, wie man es mag
Kombinovaná plynová kotolňa – vlastná teplá voda presne podľa vašich predstáv
Wohnzimmer, Schlafzimmer, Kinderzimmer, Küche, Vollbad, Flur – Vollwertige Raumaufteilung
Obývacia izba, spálňa, detská izba, kuchyňa, celá kúpeľňa, chodba – plnohodnotné rozdelenie priestorov
Heller Boden in Holzoptik – Modern, hygienisch & pflegeleicht
Svetlý podlahový povrch s dreveným vzhľadom – moderný, hygienický a ľahko udržiavateľný
Schnellstes Internet über Glasfaser – Homeoffice geeignet
Rýchly internet cez optické vlákno – vhodný pre prácu z domu
Einbauküche – Praktisch und direkt startklar
Vstavaná kuchyňa – praktická a okamžite pripravená na použitie
Raumwunder Tischlerküche - Platz für Waschmaschine und Geschirrspüler
Úsporná stolárska kuchyňa – dostatok miesta aj pre práčku a umývačku riadu
Moderne Kunststofffenster – Wärmeschutz & Ruhe
Moderné plastové okná – tepelná izolácia a pokoj
Renoviertes Treppenhaus – Gepflegter Eindruck
Zrekonštruovaný schodisko – udržiavaný dojem
Kein Balkon – Nichts für Raucher
Žiadny balkón – nie je vhodný pre fajčiarov
Wäscheleine auf dem Dachboden gegenüber – Wäsche nie in der Wohnung trocknen müssen
Šnúra na pranie na pôde oproti – prádlo tak nemusíte sušiť v byte
Wäscheleine im großen Gemeinschaftsgarten – Wäsche draußen trocknen
Šnúra na pranie v rozľahlej spoločnej záhrade – prádlo sušené vonku
Hausmeister – Schnelle Hilfe
Domovník – rýchla pomoc
Fahrradkeller, auch für Kinderwagen – Sicher & praktisch
Pivnička na bicykle, vhodná aj pre detské kočíky – bezpečná a praktická
Dachbodenverschlag kann für 10 Euro angemietet werden – Extra Stauraum
Sklad na pôde je možné prenajať za 10 eur – extra úložný priestor
Hässliche, vermooste Vorhangfassade – Sieht man von innen zum Glück nicht
Ošklivá, zhnitá fasáda s oponou – našťastie sa zvonku nevidí
Wir unterstützen die Bewerbung von Bedarfsgemeinschaften und Geflüchteten ab 3 Personen, persönliche Eignung vorausgesetzt. Kleinere Gemeinschaften scheiden leider aus.
Podporujeme prijímanie záujemcov zo skupín s aspoň 3 členmi (napr. rodiny či záujmové komunity) so zohľadnením individuálnej vhodnosti. Menšie skupiny sa bohužiaľ nevítajú.
Vermietung erfolgt direkt vom Eigentümer, kein Makler. Bitte schauen Sie sich die Anzeige genau an und notieren Sie Fragen. Bei Interesse schreiben Sie mich gerne mit Ihren Fragen an!
Prenájom prebieha priamo od vlastníka, nie cez makléra. Prosím, dôkladne si preštudujte inzerát a poznám si prípadné otázky. V prípade záujmu mi neváhajte napísať s vašimi otázkami!
Parametre nehnuteľnosti
| Vek | Nad 50 rokov |
|---|---|
| Stav | Po rekonštrukcii |
| Poschodie | 2. poschodie z 3 |
| PENB | D - Menej hospodárne |
| Cena za jednotku | 9 € / m2 |
| Dostupné od | 1. 2. 2026 |
|---|---|
| Dispozícia | 2+kk |
| Číslo inzerátu | 980028 |
| Úžitková plocha | 50 m² |
Čo táto nehnuteľnosť ponúka?
| MHD 1 minúta pešo |
V okolí nehnuteľnosti nájdete
Stále hľadáte to pravé?
Nastavte si strážneho psa. Ponuky vybrané na mieru dostanete súhrnne 1× denne e-mailom. S Premium profilom máte po ruke rovno 5 strážcov a keď sa niečo objaví, informujú vás obratom.











