Predaj domu 5+1 • 196 m² bez realitky, Šlezvicko-Holštajnsko
, Šlezvicko-HolštajnskoMHD do minúty pešo • Parkovanie • GarážDieses im Jahr 2001 erbaute Einfamilienhaus überzeugt mit 196m² Wohnfläche verteilt auf 2 Etagen. Mit insgesamt 5 Zimmern bietet es ausreichend Platz für Familien und Paare.
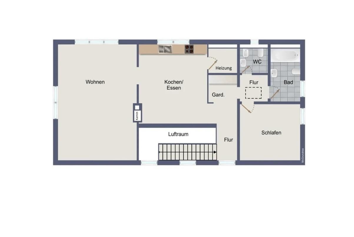
Táto rodinná casa postavená v roku 2001 zaujme s 196 m² obytnou plochou rozloženou na 2 poschodia. S celkom 5 izbami ponúka dostatok priestoru pre rodiny a páry.
Das Herzstück des Hauses ist der offen gestaltete Wohn- und Essbereich.
Srdcom domu je otvorený obývací a jedálenský priestor.
Die Einbauküche ist mit allen Annehmlichkeiten ausgestattet. Geschirrspüler, Kühlschrank, ein Herd mit Ceran- und Gaskochfeld, ein Backofen und Mikrowelle in komfortabler Arbeitshöhe. Ein integriertes Oberlicht sorgt für viel Tageslicht und unterstreicht das offene Raumgefühl.
Zabudovaná kuchyňa je vybavená všetkými komfortami. Umývačka riadu, chladnička, sporák s keramickou a plynovou varnou doskou, rúra a mikrovlnka v pohodlnej pracovnej výške. Integrované strešné okno zabezpečuje veľa denného svetla a zdôrazňuje pocit otvoreného priestoru.
Ein moderner Kamin sorgt an kühleren Tagen für wohlige Wärme und erfüllt alle aktuellen Anforderungen.
Moderný krb zabezpečuje príjemné teplo v chladnejších dňoch a spĺňa všetky aktuálne požiadavky.
Ein besonderes Highlight ist der lichtdurchflutete Kaben-Wintergarten mit edlem Kupferdach. Von hier aus gelangen Sie direkt auf die Terrasse und in den liebevoll angelegten Garten.
Výnimočným zážitkom je priesvitná zimná záhrada Kaben so štýlovou medenou strechou. Odtiaľ sa dostanete priamo na terasu a do starostlivo upravenej záhrady.
2 Terrassen mit unterschiedlicher Ausrichtung bieten Ihnen zu jeder Tageszeit den idealen Platz zum Entspannen – sei es zum Frühstück in der Morgensonne oder zum gemütlichen Grillabend mit Freunden.
Dve terasy s rôznymi orientáciami vám poskytujú ideálny priestor na oddych počas celého dňa – či už na raňajky v rannom slnku alebo na príjemný grilovací večer s priateľmi.
Mit insgesamt 5 Zimmern bietet das Haus ausreichend Raum zur individuellen Gestaltung – ob Schlafzimmer, Kinderzimmer, Büro oder Hobbyraum.
S celkom 5 izbami ponúka dom dostatok priestoru pre individuálne využitie – či už ako spálňa, detská izba, kancelária alebo hobby miestnosť.
Das gepflegte Grundstück mit ca. 1062 m² bietet vielfältige Nutzungsmöglichkeiten – vom Spielbereich für Kinder über die Gartenfläche für Hobbygärtner bis hin zum Rückzugsort im Grünen. Ebenfalls perfekt für Haustiere, da komplett eingezäunt.
Udržiavaný pozemok s približne 1062 m² ponúka rôzne možnosti využitia – od ihriska pre deti, cez záhradnú plochu pre záhradkárov až po útočisko v prírode. Je tiež ideálny pre domácich miláčikov, pretože je úplne oplotený.
Die Rasenpflege übernimmt ein Husqvarna Rasenmäher-Roboter, sodass Sie Ihre Freizeit unbeschwert genießen können.
O starostlivosť o trávnik sa postará robotický kosač od Husqvarna, takže si môžete svoj voľný čas naplno vychutnať.
Ein Glasfaseranschluss im Haus garantiert schnelles Internet – ideal für Homeoffice oder Streaming.
Optické pripojenie v dome zaručuje rýchly internet – ideálne pre home office alebo streaming.
Eine Solaranlage auf dem Dach sorgt für Energieersparnis.
Solárna elektráreň na streche zabezpečuje úsporu energie.
Die Photovoltaikanlage auf dem Dach erwirtschaftet jährlich ca. 2200 € für die Stromeinspeisung noch bis 2029!
Fotovoltaický systém na streche ročne vyprodukuje približne 2200 € za spätný odber elektriny ešte až do roku 2029!
Abgerundet wird das Angebot durch eine beheizte Garage sowie mehrere Freistellplätze, die auch Besuchern genügend Parkmöglichkeiten bieten.
Ponuku dopĺňa vyhrievaná garáž a niekoľko voľných parkovacích miest, ktoré poskytujú aj návštevníkom dostatok parkovacích príležitostí.
Die Immobilie ist nach Absprache verfügbar.
Nehnuteľnosť je k dispozícii po dohode.
Lage
Poloha
Zwischen den Meeren, 30 min. zur Nordsee (Husum), 30 min. zur Ostsee (Eckernförde).
Medzi moriami, 30 minút od Severného mora (Husum), 30 minút od Baltského mora (Eckernförde).
Das Einfamilienhaus befindet sich in Gammellund in der idyllischen Gemeinde Bollingstedt im Kreis Schleswig-Flensburg, eingebettet in die sanfte Landschaft der schleswigschen Geest.
Dom sa nachádza v Gammellunde, v idylickej obci Bollingstedt v okrese Schleswig-Flensburg, zasadený do jemnej krajiny šlesvigskej Geest.
Die Umgebung ist geprägt von Wäldern, Wiesen, Seen und Mooren, was eine ausgesprochen ruhige und naturnahe Wohnlage schafft.
Okolie je charakterizované lesmi, lúkami, jazerami a močiarmi, čo vytvára mimoriadne pokojné a prírodné bývanie.
In unmittelbarer Nähe laden der Mühlenteich, das Bollingstedter Moor sowie das Waldgebiet „Steinholz“ zu Spaziergängen, Radtouren und Naturbeobachtungen ein.
V bezprostrednej blízkosti vás Mühlenteich, Bollingstedter Moor a lesná oblasť „Steinholz“ pozývajú na prechádzky, cyklistické výlety a pozorovanie prírody.
Auch der Gammellunder See im gleichnamigen Ortsteil, ein geschütztes FFH-Gebiet, bietet Möglichkeiten zur Naherholung.
Aj Gammellunder jazero, nachádzajúce sa v rovnomennej časti obce a chránená ako FFH zóna, ponúka možnosti na miestny oddych.
Trotz der ländlichen Lage ist die Grundversorgung gesichert: Schulen, Ärzte und Einkaufsmöglichkeiten sind in der rund 5 km entfernten Gemeinde Jübek erreichbar.
Napriek vidieckej polohe je základná infraštruktúra zabezpečená: školy, lekári a obchody sú dostupné v obci Jübek vzdialenej približne 5 km.
Weiterführende Schulen sowie ein breiteres medizinisches und kulturelles Angebot stehen in der nur zehn Autominuten entfernten Stadt Schleswig zur Verfügung.
Ďalšie školy a širšia ponuka zdravotnej a kultúrnej starostlivosti sú k dispozícii v meste Schleswig, ktoré je vzdialené len desať minút autom.
Verkehrstechnisch ist Bollingstedt gut angebunden:
Pokiaľ ide o dopravnú dostupnosť, je Bollingstedt veľmi dobre napojený:
Über die nahegelegene A7 sowie die Bundesstraße B76 sind größere Städte wie Flensburg, Husum oder Kiel bequem erreichbar.
Cez blízku diaľnicu A7 a štátnu cestu B76 sú väčšie mestá ako Flensburg, Husum či Kiel pohodlne dostupné.
Eine Busverbindung stellt den Anschluss zum Bahnhof in Jübek her, von dem aus regelmäßige Zugverbindungen in Richtung Hamburg, Kiel, Husum und Flensburg bestehen.
Autobusové spojenie zabezpečuje prepojenie s vlakovou stanicou v Jübek, odkiaľ premávajú pravidelné vlakové spoje smerom do Hamburgu, Kielu, Husumu a Flensburgu.
Die Wohnlage eignet sich ideal für Menschen, die naturnahes Wohnen mit guter Erreichbarkeit verbinden möchten.
Táto lokalita je ideálna pre ľudí, ktorí chcú spojiť bývanie v prírode s dobrou dostupnosťou.
Das aktive Vereinsleben, vielfältige Freizeitangebote und eine engagierte Dorfgemeinschaft tragen zusätzlich zur hohen Lebensqualität bei und machen Bollingstedt zu einem attraktiven Standort für Familien, Paare oder Ruhesuchende.
Aktívny spoločenský život, rôzne voľnočasové možnosti a angažovaná dedinská komunita navyše prispievajú k vysokej kvalite života a robia z Bollingstedtu atraktívne miesto pre rodiny, páry alebo tých, ktorí hľadajú pokoj.
Glasfaser im Haus
Optické pripojenie v dome
Fußbodenheizung im Bad EG und Wintergarten
Podlahové kúrenie v kúpeľni v prízemí aj v zimnej záhrade
Vaillant Gas Heizung, neu eingebaut im März 2020
Vaillant plynové kúrenie, novoinštalované v marci 2020
Kamin 2025
Krb 2025
Energieausweis gültig bis 10.09.2035
Energetický preukaz platný do 10.09.2035
Parametre nehnuteľnosti
| Vek | Nad 50 rokov |
|---|---|
| Dispozícia | 5+1 |
| PENB | C - Hospodárne |
| Plocha pozemku | 1 062 m² |
| Cena za jednotku | 2 293 € / m2 |
| Stav | Po rekonštrukcii |
|---|---|
| Číslo inzerátu | 979794 |
| Úžitková plocha | 196 m² |
| Celkové poschodia | 2 |
Čo táto nehnuteľnosť ponúka?
| Garáž | |
| MHD 0 minút pešo |
| Parkovanie | |
| Terasa |
V okolí nehnuteľnosti nájdete
Stále hľadáte to pravé?
Nastavte si strážneho psa. Ponuky vybrané na mieru dostanete súhrnne 1× denne e-mailom. S Premium profilom máte po ruke rovno 5 strážcov a keď sa niečo objaví, informujú vás obratom.




























