Predaj domu 5+1 • 217 m² bez realitkyGRUNDSTÜCK EXKLUSIV NUR FÜR DANWOOD-HAUSBAU Markt Hartmannsdorf Steiermark 8311
GRUNDSTÜCK EXKLUSIV NUR FÜR DANWOOD-HAUSBAU Markt Hartmannsdorf Steiermark 8311MHD do minúty pešoPOINT 217 S ARCHITEKTONICKÝM STATEMENT
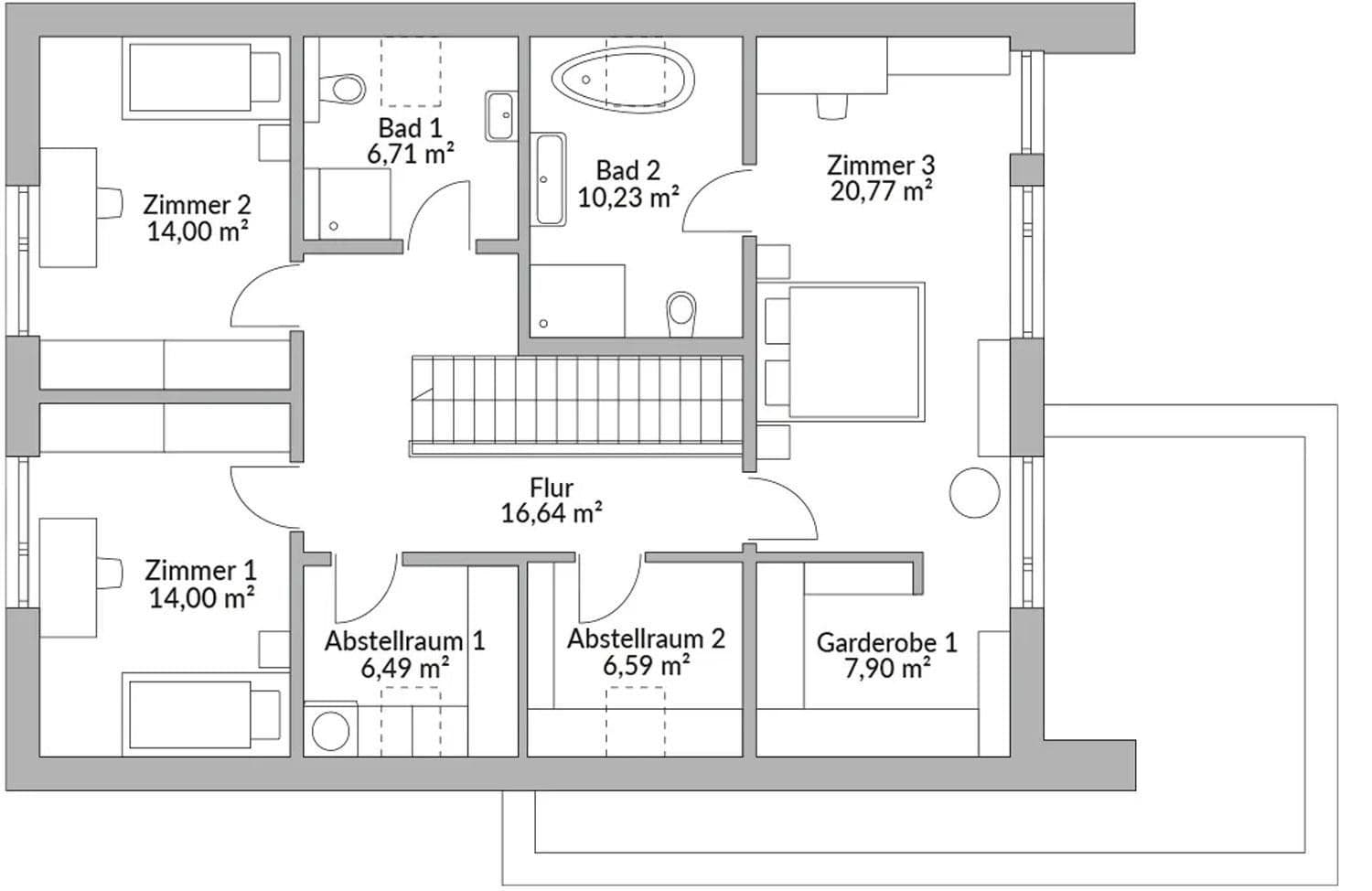
Ako scenografia vás toto domov privíta so zvýšenou vstupnou časťou a dverami, ktoré vytvárajú priestor pre očakávania. Štítové okná – upútavač pohľadu, sľub.
Okná, ktoré siaha až k zemi, nechávajú prúdiť svetlo a umožňujú miestnostiam „dýchať“. Kuchyňa – otvorená, príjemná – sa spája s obývacím priestorom, zatiaľ čo posuvné dvere otvárajú cestu k terase.
Štúdio v prízemí – útočisko, ateliér, izba pre hostí. Miestnosti, ktoré zjednodušujú každodenný život, bez toho aby ho dominovali.
A hore? Spálňa ako útočisko. S priestrannou šatňou, exkluzívnou kúpeľňou, dvojitým umývadlom – a s možnosťou samostatne stojacej vane. Miesto, ktoré inšpiruje.
Na vašom pozemku alebo v…
Güssing: cca 2.600 m², pozemok úplne rovný. Veľkosti a polohy pozemkov sú voľne voľiteľné. Rozmery od 500 m² do 1500 m²
Tu sú stavebné pozemky exkluzívnej kvality! V najlepšej lokalite a s dych berúcim výhľadom na nádherný hrad Güssing!
Güssing ponúka budúcnosť bezpečný, cenovo dostupný a energeticky nezávislý život v zelenom prostredí, čo z investície do nehnuteľnosti tam robí strategickú hodnotovú investíciu.
Prečo Güssing
Energetický priekopník a udržateľnosť:
Mesto je energeticky autonómne a medzinárodne uznávané.
Vysoké pokrytie (nad 85 %) regionálnou biomasovou diaľkovou tepelnou energiou vedie k stabilným a výhodným nákladom na vykurovanie.
Dostupné ceny nehnuteľností:
Ceny sú ešte podstatne atraktívnejšie než rakúsky priemer, čo umožňuje splniť sen o vlastnom dome s priestrannými pozemkami.
Silná infraštruktúra a kvalita života:
Ako okresné predmestie zaručuje Güssing krátke cesty a najlepšie vybavenosť.
Plánované veľké investície:
Nový vzdelávací kampus a moderné lekárske centrum (od roku 2026).
Kultúrne centrum (hrad Güssing) a blízkosť ku kúpeľom.
Kompletné otvorenie S7 prináša značné výhody pre Güssing a jeho obyvateľov:
• Rýchlejšia doprava do aglomerácií: Diaľnica výrazne skracuje cestu na južnú diaľnicu A2, čím sa cestovné časy do Grazu a Viedne podstatne znižujú.
• Odľahčenie regiónu: Presmerováva priechodnú premávku, ktorá predtým zaťažovala obce ako Fürstenfeld a Rudersdorf, na novú trasu.
• Hospodárske impulzy: Nové spojenie, okrem iného cez prístupové miesto pri Rudersdorf/Dobersdorf a vďaka blízkosti k pripojeniu v Königsdorfe, posilňuje Güssing ako okresné predmestie a podnikateľskú lokalitu prostredníctvom zlepšenej dostupnosti a podpory nových priemyselných parkov.
Hodnotová stabilita a rozvojový potenciál:
Cielené komunálne investície do infraštruktúry, oživenia centra mesta a technologického centra zabezpečujú dlhodobú hodnotovú stabilitu nehnuteľností.
Komunálna stratégia sa zameriava na prekonanie demografických výziev a etablovanie Güssingu ako atraktívneho miesta na bývanie a podnikanie.
Cieľová skupina
Rodiny, ktoré hľadajú budúcnosť, istotu a prírodu, ako aj všetci, ktorí kladú dôraz na nízke náklady na energiu a ekologickú zodpovednosť.
Ďalšie pozemky v:
Pozemok, 8323 Kohldorf: Stavebný pozemok s veľkým množstvom slnka vo východnom štajerskom kopcovitom prostredí, 15 km od Grazu!
Rozloha: 758 m² Kúpna cena: € 66.000, --
Pozemok, 8323 Kohldorf: Slnečný stavebný pozemok v Kohldorfe, 15 km východne od Grazu!
Rozloha: 787 m² Kúpna cena: € 69.000, --
Pozemok, 8311 Markt Hartmannsdorf: Kompletný, slnečný stavebný pozemok v Markt Hartmannsdorf
Rozloha: 920 m² Kúpna cena: € 53.000, --
Pozemok, 9335 Lölling Graben: Stavebný pozemok s úžasným diaľkovým výhľadom v malebnej karintskej horskej krajine
Rozloha: 1001 m² Kúpna cena: € 50.000, --
Pozemok, 8075 Hart pri Graze: Slnečný pozemok tesne pred bránami Grazu
Rozloha: 1980 m² Kúpna cena: € 475.000, --
Pozemok v Stainz na predaj: Slnečný pozemok na okraji obce Stainz
Rozloha: 825 m² Kúpna cena: € 149.000,
Medzi vlastníkom pozemku a staviteľom domu neexistuje žiadne ekonomické spojenie.
VISION Dodávka "pod kľúč" – Stavba a špecifikácia služieb – domy na základovej doske!
Rozsah služieb
VÝŠKA MIESTNOSTÍ: prízemie 3,05 m, podkrovia 2,67 m
Technika
Technika, ktorá zjednodušuje bývanie:
Technický balík Today 3BL kombinuje modernú technológiu tepelného čerpadla s priestranným zásobníkom teplej vody a inteligentným ventilačným systémom. Výsledok: domov, ktorý sa automaticky stará o príjemné vnútorné klima – teplý v zime, svieži v lete, efektívny počas celého roka.
Podlahové kúrenie zabezpečuje príjemné teplo v každej miestnosti, zatiaľ čo centrálna ventilácia s rekuperáciou tepla šetrí energiu a zároveň zabezpečuje neustále čerstvý vzduch.
Technický balík, ktorý dokonale spája komfort, efektívnosť a bezpečnosť do budúcnosti.
Elektrické rolety
Rolety od DANWOOD sú dokonalým doplnkom k energeticky efektívnej stavbe DANWOOD. Chránia pred horúčavou v lete, zadržiavajú teplo v zime a zabezpečujú súkromie a bezpečnosť kedykoľvek.
S elektrickým ovládaním alebo inteligentným riadením ich možno pohodlne a intuitívne používať – pohodlie, ktoré pocítite každý deň.
Stručne: Pri DANWOOD sú rolety voliteľné, ale technicky dokonale integrovateľné – elektrické, odolné a ideálne pre modernú architektúru.
Sanitárne vybavenie:
• Sprcha – bezpečná, pohodlná a ideálna pre deti aj dospelých
• Zavesená záchodová misa – ľahko čistiteľná, hygienická, vhodná pre rodiny
• Umývadlo
• Vysokokvalitné armatury – odolné, ľahko ovládateľné, teplotne stabilné
• Voliteľne podľa modelu:
• Vaňa – perfektná pre deti, relaxáciu alebo spoločné večerné rituály
• Dvojitý umývadlový pult – bez ranného zhromažďovania
• Zapustené armatury – bezpečné, elegantné, ľahko čistiteľné
Všetko je navrhnuté tak, aby uľahčilo každodenný život a zároveň zostalo dlho pekné.
Maľovanie
Steny a stropy – pripravené na nasťahovanie. Všetky vnútorné steny a stropy sú realizované v štandarde "pod kľúč". To znamená:
• Hladké, omietnuté a brúsené povrchy
• Biela finálna úprava vysoko kvalitnou disperznou farbou
• Čistý, rovnomerný vzhľad vo všetkých obytných miestnostiach.
DANWOOD dodáva už hotový povrch.
• Žiadne viditeľné škáry alebo prechody vďaka priemyselnej precíznosti.
Tým je dom ihneď obývateľný, bez nutnosti dodatočných malírovacích prác.
Podlahy
Obývacie a spálňové miestnosti – teplé, robustné, príjemné!
Všetky obývacie a spálňové miestnosti budú vybavené vysoko kvalitnými, ľahko udržiavateľnými podlahovými krytinami, ktoré spájajú teplo, komfort a praktickosť pre každodenné použitie.
Štandardná verzia (v závislosti od modelu):
• Vysokokvalitná vinylová podlaha s dizajnom v drevenom vzhľade
• Odolná, tichá, príjemná na dotyk
• Ideálna pre rodiny, domáce zvieratá a každodenné využitie
• Harmonické farebné varianty (svetlý dub, prírodný dub, šedý dub – podľa výberu v Design Centre Pinkafeld)
Voliteľne:
• Laminát v prémiovej kvalite
• Parket z masívneho dreva (za príplatok)
• Alternatívne dizajnové línie (betónový vzhľad, tmavý drevený vzhľad, teplé prírodné odtiene)
Poznámka: Všetky ceny domov platia od hornej hrany základovej dosky. Obrázky môžu ukazovať voliteľné špeciálne vybavenie.
Parametre nehnuteľnosti
| Vek | Nad 50 rokov |
|---|---|
| Dispozícia | 5+1 |
| Úžitková plocha | 217 m² |
| Cena za jednotku | 2 373 € / m2 |
| Stav | Novostavba |
|---|---|
| Číslo inzerátu | 979512 |
| Plocha pozemku | 1 m² |
Čo táto nehnuteľnosť ponúka?
| MHD 0 minút pešo |
V okolí nehnuteľnosti nájdete
Stále hľadáte to pravé?
Nastavte si strážneho psa. Ponuky vybrané na mieru dostanete súhrnne 1× denne e-mailom. S Premium profilom máte po ruke rovno 5 strážcov a keď sa niečo objaví, informujú vás obratom.


















