Predaj domu 5+1 • 217 m² bez realitkyGRUNDSTÜCK FERNLICK EXKLUSIV NUR FÜR DANWOOD-HAUSBAU Lölling Graben Lölling Graben Steiermark 9335
GRUNDSTÜCK FERNLICK EXKLUSIV NUR FÜR DANWOOD-HAUSBAU Lölling Graben Lölling Graben Steiermark 9335MHD 3 minúty pešoPOINT 217 S ARCHITEKTÚRNYM STATEMENTOM
Ako scénografia vás tento dom privíta so zvýšenou vchodovou časťou a dverami, ktoré vytvárajú priestor pre očakávania. Okna v štítovej časti – zaujímavý prvok, sľub – pritahujú pozornosť.
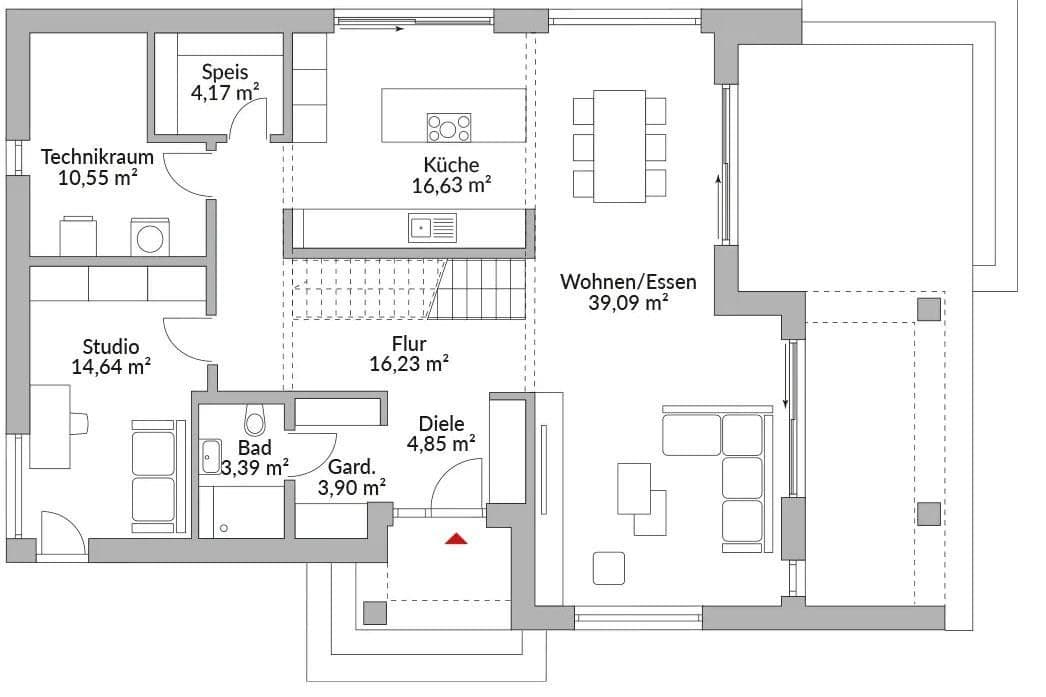
Okná, ktoré siahajú až k podlahe, nechávajú prúdiť svetlo a umožňujú priestorom „dýchať“. Kuchyňa – otvorená, príjemná – sa spája s obývacou časťou, pričom posuvné dvere otvárajú cestu na terasu.
Na prízemí sa nachádza štúdio – útočisko, ateliér, hosťovská izba. Priestory sú navrhnuté tak, aby zjednodušovali každodenný život, bez toho aby ho úplne ovládali.
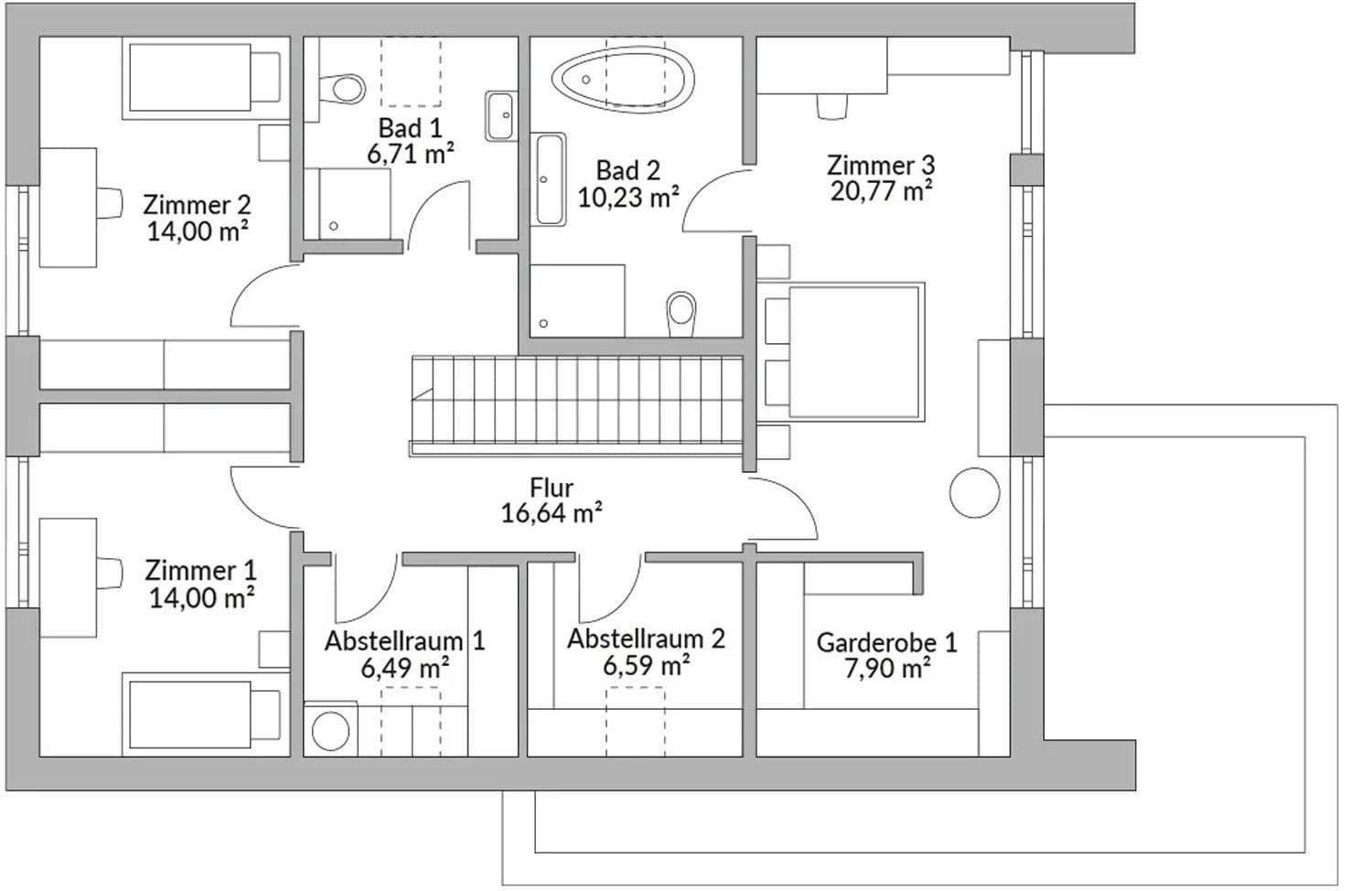
A hore? Spálňa ako útočisko. S prístupnou šatňou, exkluzívnou kúpeľňou, dvojitým umývadlom – a možnosťou samostatne stojacej vane. Miesto, ktoré inšpiruje.
Na vašom pozemku alebo v…
Güssing: cca 2 600 m², lokalita úplne rovná, pričom veľkosť a poloha pozemku je na výber. Rozmery od 500 m² do 1500 m².
Tu sú stavebné pozemky EXTRA triedy! V najlepšej lokalite s dychberúcim výhľadom na nádherný hrad Güssing!
Güssing ponúka budúcnosť zaručujúci, cenovo dostupný a energeticky nezávislý život v zelene, čo robí investíciu do nehnuteľnosti tu strategickým aktívom.
Prečo Güssing
Energetický priekopník a udržateľnosť:
Mesto je energeticky sebestačné a medzinárodne uznávané.
Vysoké pokrytie (nad 85 %) regionálnym biomassatým diaľkovým ohrevom prináša stabilné a nízke náklady na vykurovanie.
Dostupné ceny nehnuteľností:
Ceny sú stále výrazne priaznivejšie než priemerné ceny v Rakúsku, čo umožňuje sen o vlastnom dome s veľkorysými pozemkami.
Silná infraštruktúra a kvalita života:
Ako okrajové mesto zaručuje Güssing krátke vzdialenosti a vynikajúce služby.
Plánované veľké investície:
Nový vzdelávací kampus a moderné lekárske centrum (od 2026).
Kultúrne centrum (hrad Güssing) a blízkosť termálnych kúpeľov.
Úplné otvorenie S7 prináša značné výhody pre Güssing a jeho obyvateľov:
Rýchlejšie spojenie s metropolitnými oblasťami: Rýchlodráha výrazne skracuje cestovný čas na diaľnicu A2 južnú, čím sa cestovné časy do Grazu a Viedne výrazne znižujú.
Odľahčenie regiónu: Nová trasa odvedie tranzitnú premávku, ktorá predtým prechádzala ťažko zaťaženými obcami ako Fürstenfeld a Rudersdorf.
Ekonomické impulzy: Nové spojenie, čiastočne cez pripojovaciu stanicu pri Rudersdorf/Dobersdorf a blízkosť spojenia Königsdorf, posilňuje Güssing ako okrajové mesto a ekonomické centrum zlepšenou dostupnosťou a podporou nových obchodných parkov.
Hodnotová stabilita a rozvojový potenciál:
Cielené komunálne investície do infraštruktúry, oživenia centra mesta a technologického centra zaisťujú dlhodobú hodnotovú stabilitu nehnuteľností.
Komunálna stratégia je zameraná na zvládnutie demografických výziev a etablovanie Güssing ako atraktívneho miesta pre bývanie a podnikanie.
Cieľová skupina
Rodiny, ktoré hľadajú budúcnosť, bezpečnosť a prírodu, ako aj všetkých, ktorí si cenia nízke náklady na energiu a ekologickú zodpovednosť.
Ďalšie pozemky v:
Pozemok, 8323 Kohldorf: Stavebný pozemok s množstvom slnečného svetla vo východnom štajerskom kopcovitom krajine, 15 km od Grazu!
Rozloha 758 m², kúpna cena € 66 000, --
Pozemok, 8323 Kohldorf: Slnečný stavebný pozemok v Kohldorfe, 15 km východne od Grazu!
Rozloha 787 m², kúpna cena € 69 000, --
Pozemok, 8311 Markt Hartmannsdorf: Úplne uzemnený, slnečný stavebný pozemok v Markt Hartmannsdorf
Rozloha 920 m², kúpna cena € 53 000, --
Pozemok, 9335 Lölling Graben: Stavebný pozemok s úžasným diaľkovým výhľadom v malebnom Kärnten horskom prostredí
Rozloha 1001 m², kúpna cena € 50 000, --
Pozemok, 8075 Hart pri Graze: Slnečný pozemok priamo pred bránami Grazu
Rozloha 1980 m², kúpna cena € 475 000, --
Pozemok v Stainz na predaj: Slnečný pozemok na okraji Stainzu
Rozloha 825 m², kúpna cena € 149 000,
Medzi vlastníkom pozemku a staviteľom domu neexistuje žiadne hospodárske prepojenie.
VISION – Realizácia na kľúč, stavebná a technická špecifikácia – domy na základovej doske!
Rozsah služieb
VÝŠKY PRIETOROV: Prízemie 3,05 m, podkrovie 2,67 m
Technika
Technika, ktorá uľahčuje bývanie: Technický balík Today 3BL kombinuje modernú technológiu tepelných čerpadiel s priestranným zásobníkom teplej vody a inteligentným ventilačným systémom. Výsledok: domov, ktorý sa automaticky stará o príjemné klimatické podmienky – teplo v zime, sviežo v lete, efektívne počas celého roka. Podlahové kúrenie zabezpečuje útulné teplo v každom priestore, zatiaľ čo centrálna ventilácia s rekuperáciou šetrí energiu a zabezpečuje stále čerstvý vzduch. Technický balík dokonale spája komfort, efektívnosť a budúcu udržateľnosť.
Elektrické rolety
Rolety od DANWOOD sú dokonalým doplnkom k energeticky efektívnej výstavbe DANWOOD. Chránia v lete pred horúčavou, udržujú teplo v zime a zabezpečujú súkromie a bezpečnosť kedykoľvek. Vďaka elektrickému ovládaniu alebo inteligentnému systému riadenia ich možno pohodlne a intuitívne využívať – pohodlie, ktoré pocítite každý deň. Stručne povedané, u DANWOOD sú rolety voliteľné, ale technicky dokonale integrovateľné – elektrické, odolné a ideálne pre modernú architektúru.
Sanitárne vybavenie:
• Sprcha – bezpečná, pohodlná a ideálna pre deti aj dospelých
• Veďouce WC – ľahko čistiteľné, hygienické, priateľské k rodine
• Umývadlo
• Kvalitné batérie a armatury – odolné, ľahko ovládateľné, teplotne stabilné
• Voliteľne, podľa modelu:
• Vaňa – perfektná pre deti, relaxáciu alebo spoločné večerné rituály
• Dvojité umývadlo – bez ranného zhonu
• Zabudované armatury – bezpečné, elegantné, ľahko čistiteľné
Všetko je navrhnuté tak, aby zjednodušilo každodenný život a zároveň zostalo dlho krásne.
Maľovacie práce
Steny a stropy – pripravené na nasťahovanie. Všetky vnútorné steny a stropy sú vyhotovené podľa štandardu „na kľúč“. To znamená:
• Hladké, omietnuté a zbrousené povrchy
• Biela finálna vrstva vo forme kvalitnej dispersnej farby
• Čistý a rovnomerný vzhľad vo všetkých obytných priestoroch.
DANWOOD dodáva už hotovú koncovú úpravu.
• Žiadne viditeľné spoje alebo prechody vďaka priemyselnej presnosti.
Vďaka tomu je dom ihneď pripravený na bývanie, bez potreby ďalších maliarskych prác.
Podlahy
Obytné a spálenské priestory – teplé, robustné, príjemné!
Všetky obytné a spálenské priestory budú vybavené kvalitnými, ľahko udržiavateľnými podlahovými krytinami, ktoré spájajú teplo, komfort a praktickosť pre každodenný život. Štandardné prevedenie (v závislosti od modelu):
• Kvalitná dizajnová vinylová podlaha s dreveným vzhľadom
• Odolná, tichá, príjemná na chôdzu
• Ideálna pre rodiny, domáce zvieratá a každodenné používanie
• Harmonické farebné odtiene (svetle dub, prírodný dub, sivý dub – podľa výberu v Design Centre Pinkafeld)
Voliteľne:
• Laminát v prémiovej kvalite
• Parket z masívneho dreva (za príplatok)
• Alternatívne dizajnové línie (betónový vzhľad, tmavý drevený vzhľad, teplé prírodné odtiene)
Poznámka: Všetky ceny domov sa uvádzajú od hornej hrany základovej dosky. Obrázky môžu zobrazovať voliteľné špeciálne vybavenie.
Parametre nehnuteľnosti
| Vek | Nad 50 rokov |
|---|---|
| Dispozícia | 5+1 |
| Úžitková plocha | 217 m² |
| Cena za jednotku | 2 373 € / m2 |
| Stav | Novostavba |
|---|---|
| Číslo inzerátu | 979508 |
| Plocha pozemku | 1 m² |
Čo táto nehnuteľnosť ponúka?
| MHD 3 minúty pešo |
V okolí nehnuteľnosti nájdete
Stále hľadáte to pravé?
Nastavte si strážneho psa. Ponuky vybrané na mieru dostanete súhrnne 1× denne e-mailom. S Premium profilom máte po ruke rovno 5 strážcov a keď sa niečo objaví, informujú vás obratom.


















