Prenájom bytu 4+1 • 116 m² bez realitkyHindenburgerstr 96 Neustadt an der Weinstraße Neustadt an der Weinstraße Rheinland-Pfalz 67433
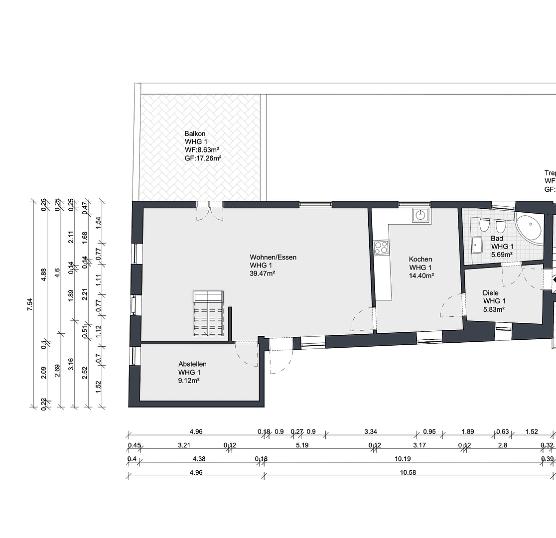
Hindenburgerstr 96 Neustadt an der Weinstraße Neustadt an der Weinstraße Rheinland-Pfalz 67433MHD 2 minúty pešo • GarážNa prenájom je bytie WHG 1, priestranné mezonetové bytie s približne 115,27 m² obytného priestoru, nachádzajúce sa v 1. poschodí predného domu s priamym prístupom k vstupu do budovy. Bytie sa rozprestiera na dvoch podlažiach (1. a 2. poschodie) a zaujme premysleným pôdorysom, veľkým množstvom svetla a výnimočnou atmosférou bývania.
Budova sama o sebe je veľmi udržiavaná a architektonicky príťažlivá.
Renovácia & Stav:
Bytie sa momentálne komplexne rekonštruuje a po dokončení bude odovzdané v modernom, veľmi udržiavanom stave:
- Všetky izby boli novopekané
- Nové okná vo všetkých miestnostiach bytu
- Nové vstupné dvere do bytu
- Nové obkladové lišty pri podlahách
- Nové vypínače a zásuvky
- Kúpeľňa opticky osviežená
- Veľká terasa bude úplne obnovená vrátane novej hydroizolácie
Pôdorys & Usporiadanie – WHG 1:
1. poschodie – Obývanie & Hostia:
- Hala (cca 5,83 m²)
- Priestranná obývacia a jedálenská časť (cca 39,47 m²)
- Samostatná kuchynská časť (cca 14,40 m²)
- Kúpeľňa osvetlená prirodzeným svetlom (cca 5,69 m²)
- Ďalšia izba (cca 9,12 m²)
→ ideálna ako detská izba, kancelária alebo izba pre hostí
- Prístup na veľkú terasu
→ cca 18 m² celkovej plochy, ktorá bude kompletne zrekonštruovaná
Poznámka:
V dolnej časti bytu je výška stropu o niečo nižšia než obvykle, čo dáva priestoru útulný, domáci charakter, ktorý sa veľmi dobre využíva v každodennom živote.
2. poschodie – Súkromný oddychový priestor:
Horné poschodie je ideálne navrhnuté ako súkromná spálňa a pracovný priestor:
- Spálňa (cca 8,62 m²)
- Pracovňa/šatník (cca 7,81 m²)
- Chodba (cca 15,38 m²)
Nádherný drevený strop s teplou, výnimočnou atmosférou bývania
+ Malý francúzsky balkón
Zvlášť je potrebné vyzdvihnúť:
- Celé horné poschodie je úplne izolované
- Nové okná zabezpečujú výbornú tepelnú a zvukovú izoláciu
- Okná na oboch stranách umožňujú optimálnu cirkuláciu vzduchu počas leta
- Zároveň prichádza veľa prirodzeného svetla, ktoré vytvára jasný, priateľský pocit z priestoru
Táto úroveň je perfektná ako spálňa so šatníkom a home office – pokojná, súkromná a jasne oddelená od obytného a hostinského priestoru.
Ďalšie vybavenie:
- Suterén s možnosťou umiestnenia práčky a sušičky
- Veľmi udržiavaná celková nehnuteľnosť
- Centrálna poloha v centre mesta s krátkymi vzdialenosťami k obchodom, gastronómii a MHD
Voliteľne:
- Garáž v susednej budove je na prenájom za 70 € mesačne
Krátky prehľad:
Bytie WHG 1
cca 115,27 m² čistej obytného priestoru – celková plocha cca 144,64 m²
Mezonetové bytie cez 1. a 2. poschodie
Veľká obývacia/jedálenská časť
3 flexibilne využiteľné izby
Veľká terasa (cca 18 m²)
Čerstvo zrekonštruované
Suterén s možnosťou prania
Garáž voliteľne
Neustadt – centrálna poloha
Záver:
Výnimočné mezonetové bytie s jasným oddelením medzi obyvaním a súkromným oddychom, s hojným množstvom svetla, vysoko kvalitnou rekonštrukciou a priestrannou terasou – ideálne pre páry, používateľov home office alebo malé rodiny, ktoré si cenia centrálnu polohu a zároveň priestor a atmosféru.
Bytie sa nachádza na Hindenburgstraße, priamo v srdci mesta Neustadt an der Weinstraße – poloha, ktorá spája mestský život s kvalitou bývania.
Táto centrálná adresa Ti ponúka všetko, čo potrebuješ pre každodenný život, priamo pred dverami alebo v priebehu niekoľkých minút chôdze:
• Rôzne možnosti nákupov a malé obchody
• Kaviarne, reštaurácie a bary pre voľný čas a pôžitok
• Lekári, lekárne a poskytovatelia služieb pre každodenné potreby
• Výborná dostupnosť MHD
• Krátke vzdialenosti k školám, materským školám a mestskej infraštruktúre
ImmobilienScout24
Napriek centrálnej polohe je okolie príjemne pokojné a životné – dokonalá kombinácia mestského života a komfortu bývania.
Vďaka blízkosti k zeleným plochám, parkom a cyklotrasám si môžete ideálne vychutnať pfälzsky životný štýl s vonkajšími a rekreačnými aktivitami. A poloha na okraji Pfälzskogor spája prírodu a mesto spôsobom, ktorý je naozaj výnimočný.
Bytie WHG 1
cca 115,27 m² čistej obytného priestoru – celková plocha cca 144,64 m²
Mezonetové bytie cez 1. a 2. poschodie
Veľká obývacia/jedálenská časť
3 flexibilne využiteľné izby
Veľká terasa (cca 18 m²)
Čerstvo zrekonštruované
Suterén s možnosťou prania
Garáž voliteľne
Neustadt – centrálna poloha
Prenájom garáže v žiadanej centrálnom meste, priamo pred vlastnými dverami, je voliteľný a závisí od dostupnosti, a je možný za 70 € mesačne.
Parametre nehnuteľnosti
| Vek | Nad 50 rokov |
|---|---|
| Stav | Po rekonštrukcii |
| Poschodie | 1. poschodie z 2 |
| PENB | E - Nehospodárne |
| Cena za jednotku | 8 € / m2 |
| Dostupné od | 15. 2. 2026 |
|---|---|
| Dispozícia | 4+1 |
| Číslo inzerátu | 979411 |
| Úžitková plocha | 116 m² |
Čo táto nehnuteľnosť ponúka?
| Balkón | |
| Garáž |
| Pivnica | |
| MHD 2 minúty pešo |
V okolí nehnuteľnosti nájdete
Stále hľadáte to pravé?
Nastavte si strážneho psa. Ponuky vybrané na mieru dostanete súhrnne 1× denne e-mailom. S Premium profilom máte po ruke rovno 5 strážcov a keď sa niečo objaví, informujú vás obratom.





















