
Predaj pozemku • 20000 m² bez realitky, Sasko
, SaskoMHD do minúty pešoPriamo od vlastníka sa ponúka približne 20 000 m² veľký komerčný pozemok so schváleným B-plánom a veľmi dobrou dopravnou dostupnosťou v blízkosti letiska Lipsko/Halle a diaľničného uzla.
Pozemok sa nachádza v podnikateľskom prostredí a je vhodný pre rôzne využitia v oblasti logistiky, služieb alebo ubytovania.
Je schválený právoplatný územný plán, ktorý umožňuje pomerne rýchlu výstavbu. Podľa ustanovení územného plánu je povolená výstavba s hrubou podlahovou plochou (HPP) až do približne 20 000 m². Koeficient zastavanosti (GRZ) je 0,8. Povolená výška budovy je – v závislosti od konkrétneho projektu – medzi 13 a 15 metrami.
Podľa § 8 ods. 1 Stavebného poriadku (BauNVO) sú medzi inými povolené nasledujúce využitia:
Podnikateľské prevádzky všetkých druhov
- Sklady a skladovacie priestory
- Obchodné, kancelárske a administratívne budovy
- Verejné prevádzky
- Čerpacie stanice a športové zariadenia
- Hotel a boardinghouse, prípadne porovnateľné koncepty ubytovania
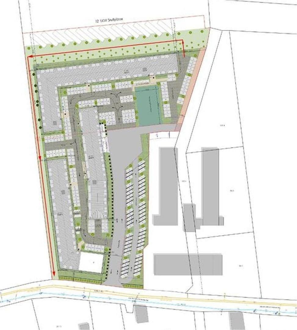
Priložené vizualizácie slúžia výhradne na zobrazenie možných variantov výstavby a nepredstavujú záväzný plán.
Predaj prebieha formou Share Deal. Kúpna cena je 65 €/m².
Pre ďalšie informácie alebo dohodnutie termínu obhliadky sme vám radi k dispozícii.
Lokalita sa nachádza v etablovanom podnikateľskom prostredí s bezprostrednou blízkosťou k medzinárodnému letisku (cca 2 km). Dve diaľničné tepny sú dostupné približne do 300 m; doplnkovo je zaisťované aj napojenie na štátnu cestu. Veľmi dobré železničné spojenie cez blízke medzinárodné uzly s ICE a IC spojením. Poloha ponúka vysokú možnosť pre terciárne využitie a trvalo udržateľný dopyt po hotelových, boardinghouse, logistických a komerčných využitiach.
Pre všetky otázky alebo ďalšie informácie som vám k dispozícii. Môžete ma telefonicky kontaktovať od pondelka do piatku medzi 9:00 a 18:00. Ak vám viac vyhovuje, môžete mi tiež poslať správu cez WhatsApp. Moje číslo je 0163-5152057.
Prípadne mi môžete napísať e-mail na adresu hildebrand@gpm.immobilien.
Ak si prajete hovoriť priamo s vlastníkom, napríklad ohľadom rokovaní o kúpnej cene, môžete sa priamo spojiť s vlastníkom, pánom Petrom Juglom, na telefónnom čísle 01709848571 alebo prostredníctvom WhatsApp.
Impressum
GPM GmbH
Hafenstraße 12
04416 Markkleeberg
Telefón:
03 41 / 35 42 20 20
E-mail:
info@gpm.immobilien
Zastupovaný:
Peter Jugl
Registrácia:
Zaregistrovaná v obchodnom registri.
Súd, v ktorom je registrovaná: Okresný súd v Lipsku
Registračné číslo: HRB 21518
Zodpovedný za obsah (podľa § 55 ods. 2 RStV):
Peter Jugl
Parametre nehnuteľnosti
| Číslo inzerátu | 979339 |
|---|---|
| Cena za jednotku | 65 € / m2 |
| Plocha pozemku | 20 000 m² |
|---|
Čo táto nehnuteľnosť ponúka?
| MHD 0 minút pešo |
V okolí nehnuteľnosti nájdete
Stále hľadáte to pravé?
Nastavte si strážneho psa. Ponuky vybrané na mieru dostanete súhrnne 1× denne e-mailom. S Premium profilom máte po ruke rovno 5 strážcov a keď sa niečo objaví, informujú vás obratom.


