
Prenájom bytu 3+1 • 60 m² bez realitkyLoppengasse 21, , Bádensko-Wurttembersko
Loppengasse 21, , Bádensko-WurttemberskoMHD 3 minúty pešoErstná prevádzka po rekonštrukcii: V pokojnej lokalite pri centru Nusslochu sú, podľa dokončenia jednotlivých jednotiek, od 01.02. / 01.04.2026 k dispozícii viaceré čerstvo zrekonštruované byty s obytnou plochou medzi 40 a 80 m², ktoré sa prenajímajú bez sprostredkovateľského poplatku. Byty aj celý objekt boli kompletne zrekonštruované a vybavené zdravými stavebnými materiálmi. Vybavenie je kvalitné – keramické dlažby z porcelánu, drevené okná (čiastočne nové) a parkety.
Ako nájomcovia sú vítané osoby so stálym pracovným pomerom na plný úväzok alebo s ručením. Kaucia predstavuje 3 nájomné bez zahrnutých služieb.
Dôležité! Zmluvy na elektrinu a internet si nájomcovia uzatvárajú sami, keďže tieto náklady nie sú zahrnuté v zálohe na prevádzkové náklady.
Neprepravujeme ani neponúkame parkovacie miesta pre vozidlá.
Prehľad dostupných bytov a nájomného bez zahrnutých služieb, plus záloha na prevádzkové náklady + elektrina + internet:
Byt č. 7 v prízemí, postavený bočný konštrukciou, 50 m² s vonkajším posedením a samostatným vstupom – 790,00 € plus prevádzkové náklady + elektrina + internet, od 01.02.2026
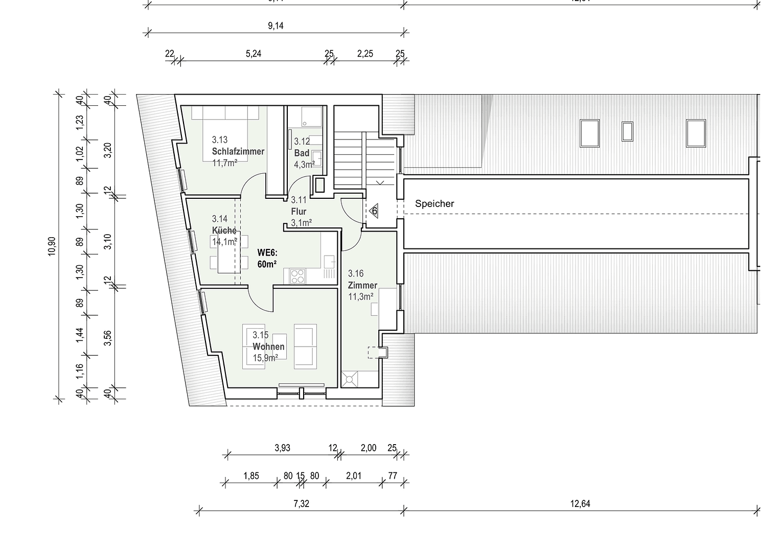
Byt č. 6 v podkroví prednej budovy, WE 6, 3 izbový s kuchyňou, kúpeľňou, úložným priestorom, 60 m² – 900,00 € + prevádzkové náklady + elektrina + internet. K dispozícii od 01.02.2026. Tento byt je vhodný maximálne pre 3 osoby.
Ďalšie 3 byty v zadnej budove, ešte nezrekonštruované, k dispozícii najskôr od 01.04.2026:
- Byt č. 8 v prízemí, modrý, 3 izby s kuchynským kútom, 70 m² vrátane terasy, nájomné 1 080,- €, k dispozícii od 15.3. alebo 1.4.2026
- Byt č. 9 v nadzemnom podlaží, zelený, 2 izby s kuchynským kútom, približne 40 m² vrátane balkóna, nájomné 690,- €, k dispozícii od 15.3. alebo 1.4.2026
- Byt č. 10 / maisonette, približne 80 m² (ešte nezrekonštruovaný, pôdorys zatiaľ nie je k dispozícii), nájomné 1 200,- € plus prevádzkové náklady, elektrina a internet. K dispozícii od 1.5. alebo 1.6.2026
Budova sa nachádza v tesnej blízkosti centra Nusslochu. Obchody, úrady, lekári, POZ (prvá pomoc) a školy sú v bezprostrednej blízkosti.
Vybavenie je kvalitné – keramické dlažby z porcelánu, drevené okná (čiastočne nové) a parkety. Steny sú hladko omietnuté a natreté na bielo.
Parametre nehnuteľnosti
| Vek | Nad 50 rokov |
|---|---|
| Stav | Po rekonštrukcii |
| Poschodie | 2. poschodie z 3 |
| PENB | G - Mimoriadne nehospodárne |
| Cena za jednotku | 15 € / m2 |
| Dostupné od | 1. 2. 2026 |
|---|---|
| Dispozícia | 3+1 |
| Číslo inzerátu | 979052 |
| Úžitková plocha | 60 m² |
Čo táto nehnuteľnosť ponúka?
| MHD 3 minúty pešo |
V okolí nehnuteľnosti nájdete
Stále hľadáte to pravé?
Nastavte si strážneho psa. Ponuky vybrané na mieru dostanete súhrnne 1× denne e-mailom. S Premium profilom máte po ruke rovno 5 strážcov a keď sa niečo objaví, informujú vás obratom.














