Predaj bytu • 293 m² bez realitkySollingergasse 23 Wien 19. Bezirk Wien 1190
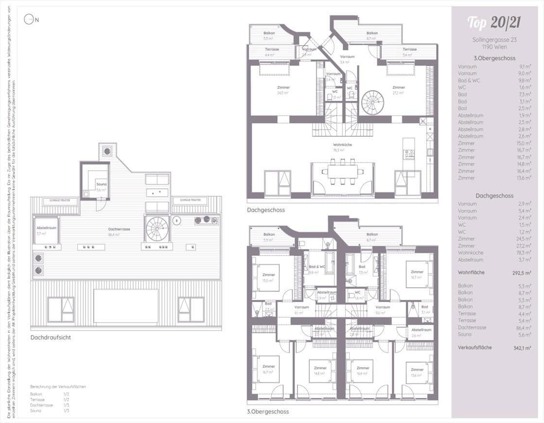
Sollingergasse 23 Wien 19. Bezirk Wien 1190MHD 4 minúty pešo • Výťah • Parkovanie • GarážTento výnimočný penthouse Top 20/21 ponúka luxusné bývanie na najvyššej úrovni, rozprestierajúce sa na dvoch obytných úrovniach s pôsobivou obytnou plochou približne 292,5 m². Priestranné okná pretínajú celý byt a zaplavujú miestnosti denným svetlom, pričom zároveň otvárajú úchvatné výhľady do všetkých strán sveta.
Otvorný obytný priestor ponúka veľa miesta na relaxáciu a reprezentatívne bývanie. Architektúra spája čisté línie s vysoko kvalitným vybavením a na mieru vyrobenými stolárskymi prvkami, ktoré zabezpečujú harmonický a elegantný celkový dojem v celom byte.
Penthouse disponuje celkovo 6 spálňami, vrátane dvoch priestranných master spální, pričom každá z nich je vybavená dvoma súkromnými sprchovňami a priamym prístupom na balkón. Rozloženie miestností zaručuje najvyššie súkromie a bývací komfort.
Byt sa predáva bez kuchyne, čo ponúka maximálnu voľnosť pre individuálne koncepcie bývania a dizajnu. Všetky obytné priestory sú kompletne klimatizované a navyše je tu aj vodný filtračný systém na úpravu viedenskej vody.
Absolútnym vrcholom je priestranná strešná terasa s približne 86,4 m², vybavená súkromnou saunou a s ohromujúcim panoramatickým výhľadom na Viedeň až po okolité vinice a kopce. Tento exkluzívny vonkajší priestor sa stáva jedinečným zážitkom v každej dennej dobe – či už ide o relaxáciu, pôžitok alebo reprezentáciu.
Nachádzajúci sa v jednej z najžiadanejších lokalít 19. viedenského okresu, tento exkluzívny penthouse spája pokoj, súkromie a vynikajúcu kvalitu života. Sollingergasse predstavuje zelené, elegantné prostredie s prvotriednou infraštruktúrou a zároveň s vynikajúcou dostupnosťou do centra Viedne.
Bezprostredná blízkosť k rekreačným oblastiam Cobenzl a Kahlenberg ponúka jedinečnú kombináciu mestského bývania a spojenia s prírodou. Nákupné možnosti, školy, medzinárodné inštitúcie a verejná doprava sú v pohodlnom dosahu. Je to útočisko pre tých, ktorí hľadajú niečo výnimočné – tiché, exkluzívne a zároveň výborne prepojené.
• Landhausdillen parketová podlaha, olejovaná
• Vysoko kvalitné masívne drevené dvere
• Feinstein obklady
• Plne klimatizované a s podlahovým kúrením
• Moderné posuvné okná z hliníka a dreva
• Vysoko bezpečnostné dvere
• Strešná terasa so saunou a voľným panoramatickým výhľadom
• Vysoko kvalitná mramorová kuchyňa
• Zabudované spotrebiče Miele
• Na mieru vyrobené stolárske prvky v celom byte
• Byt pripravený na nasťahovanie – prémiové vybavenie vo všetkých oblastiach
• Strešná terasa cca 86,4 m²
• 4 balkóny s približne 28 m²
• 9 izieb, 4 kúpeľne, 4 WC
• 2 úložné priestory
• Novostavba (2016) – stav: veľmi dobrý
• Absolútna pokojná poloha
• Vodný filtračný systém
Pôvodne navrhnutý ako dve samostatné obytné jednotky, boli tieto vlastníkom spojené do jedného priestranného penthouse. Stavebné predpoklady pre neskoršie oddelenie zostávajú, čo robí z nehnuteľnosti ideálnu voľbu pre vlastné bývanie, čiastočný prenájom alebo investičný koncept.
Pri ďalších otázkach ma neváhajte kontaktovať.
Parametre nehnuteľnosti
| Vek | Nad 50 rokov |
|---|---|
| Poschodie | 5. poschodie z 3 |
| Úžitková plocha | 293 m² |
| Stav | Dobrý |
|---|---|
| Číslo inzerátu | 978984 |
| Cena za jednotku | 10 683 € / m2 |
Čo táto nehnuteľnosť ponúka?
| Balkón | |
| Garáž | |
| Parkovanie | |
| Terasa |
| Pivnica | |
| Výťah | |
| MHD 4 minúty pešo |
V okolí nehnuteľnosti nájdete
Stále hľadáte to pravé?
Nastavte si strážneho psa. Ponuky vybrané na mieru dostanete súhrnne 1× denne e-mailom. S Premium profilom máte po ruke rovno 5 strážcov a keď sa niečo objaví, informujú vás obratom.













