Prenájom kancelárie • 116 m² bez realitkyKantstraße 99 Berlin Charlottenburg Berlin 10627
Kantstraße 99 Berlin Charlottenburg Berlin 10627MHD 1 minúta pešoOd 01.02.2026 hľadáme náhradného nájomcu pre naše úžasné, kompletne zariadené kancelárie v centrálnom Berlíne-Charlottenburgu.
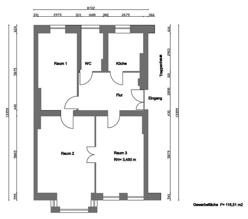
Kancelária sa nachádza v udržiavanej staršej budove s klasickým berlínskym šarmom a zaujme vysokými stropmi, stmlenými dekoráciami a kvalitnou podlahou.
Vybavenie & Rozdelenie
- 3 svetlé kancelárske miestnosti
- Zasadacia miestnosť s televízorom a whiteboardom
- 6 plne zariadených pracovných miest (bez problémov je možné zabezpečiť viac)
- Kuchyňa s modernou vstavanou kuchynskou linkou
- Kúpeľňa so sprchou
- Štýlová podlaha (parkety) a elegantný omietnutý strop
- Plynové kúrenie
Nábytok & Odovzdanie
Kancelária by mala byť ideálne zariadená a vrátane inventára prevzatá za zľavnenú cenu podľa faktúry.
Podrobný prehľad vrátane nákladov bude pri záujme poskytnutý samostatne.
Prenajímateľ podporuje vlastné hľadanie náhradného nájomcu.
Dôležité: Schválené je výlučne hľadanie kancelárie. Pre využitie ako ordinácia alebo komerčný byt bohužiaľ nie je schválená zmena využitia.
Top poloha v Berlín-Charlottenburgu – veľmi dobrá dostupnosť verejnej dopravy (metro, S-Bahn a autobus sú dostupné už o pár minút). Kaviarne, reštaurácie a obchody sa nachádzajú v bezprostrednom okolí.
Parametre nehnuteľnosti
| Dostupné od | 1. 12. 2025 |
|---|---|
| Poschodie | 2. poschodie |
| Plocha kancelárie | 116 m² |
| Stav | Dobrý |
|---|---|
| Číslo inzerátu | 978715 |
| Cena za jednotku | 22 € / m2 |
Čo táto nehnuteľnosť ponúka?
| MHD 1 minúta pešo |
V okolí nehnuteľnosti nájdete
Stále hľadáte to pravé?
Nastavte si strážneho psa. Ponuky vybrané na mieru dostanete súhrnne 1× denne e-mailom. S Premium profilom máte po ruke rovno 5 strážcov a keď sa niečo objaví, informujú vás obratom.



