Prenájom bytu 3+1 • 98 m² bez realitkyAbdena Str. 2 Emden Emden Niedersachsen 26721
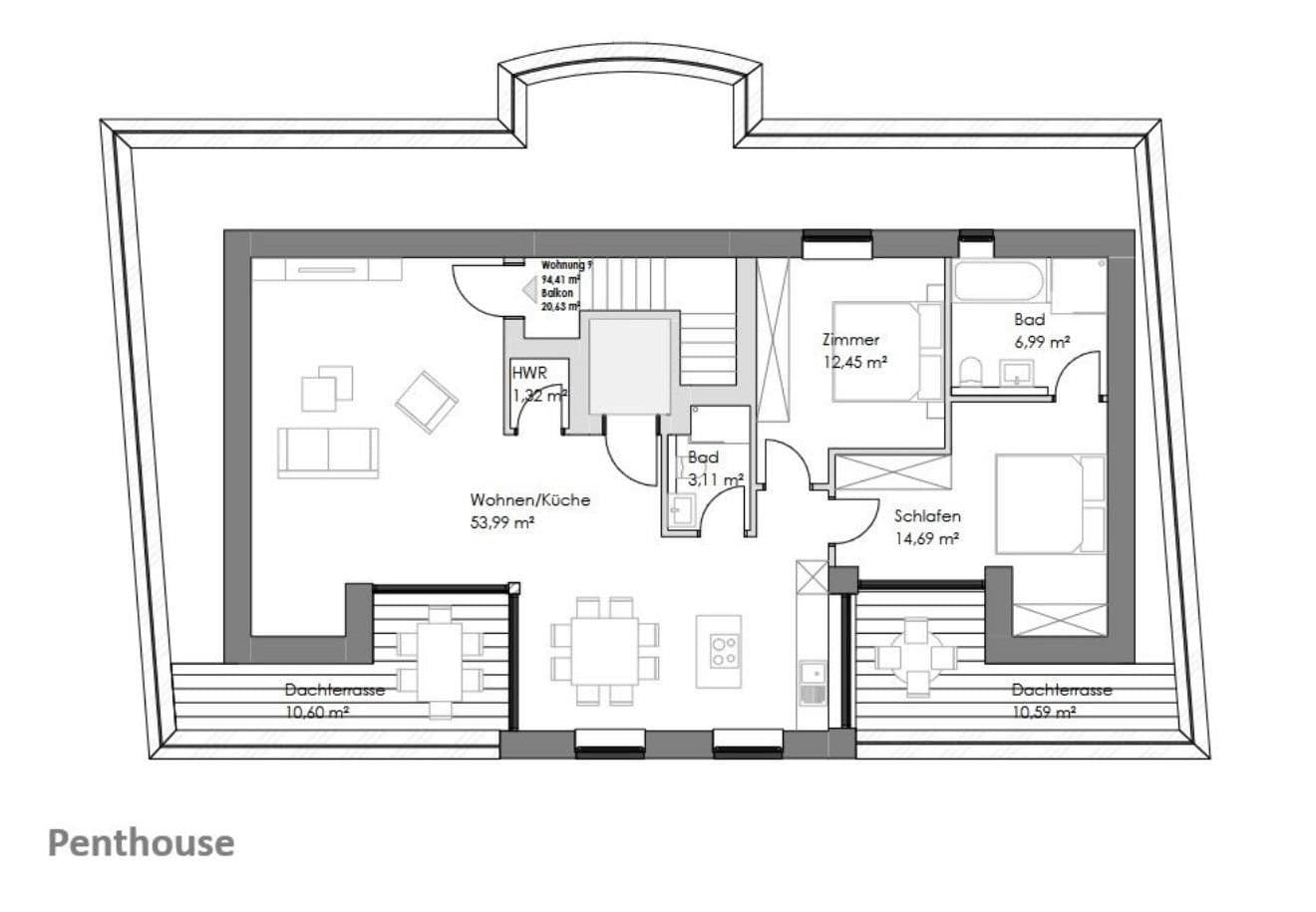
Abdena Str. 2 Emden Emden Niedersachsen 26721MHD 1 minúta pešo • Výťah • ParkovanieExkluzívny penthouse s dvoma strešnými terasami v centrálnom Emdene
Vo vyhľadávanej mestskej časti Emden, na Abdenastraße, na vás čaká tento vysoko kvalitný penthouse, ktorý spája moderný obytný komfort s udržateľnou stavebnou konštrukciou. Byt bol postavený podľa štandardu QNG (kvalitný pečiatka udržateľnej budovy) a spĺňa najvyššie požiadavky na energetickú efektívnosť, komfort a budúcnosť.
Výhody bytu
Penthouse s dvoma priestrannými strešnými terasami – ideálne na relaxáciu, opaľovanie a vychutnávanie si chvíľ
Dve dobre navrhnuté spálne
Otvorený obývací a jedálenský priestor s kvalitnou vstavanou kuchyňou
Podlahové kúrenie vo všetkých miestnostiach pre príjemnú atmosféru bývania
Elektrické rolety pre zvýšený komfort a bezpečnosť
Moderná kúpeľňa a samostatné hosťovské WC
Výťah s priamym prístupom až do bytu – maximálny komfort a bezbariérovosť
Kvalitné materiály a premyslené usporiadanie priestoru
Udržateľnosť a technológie
Postavené podľa štandardu QNG
Energeticky efektívna stavba so zameraním na environmentálnu šetrnosť a nízke prevádzkové náklady
Bývanie pripravené na budúcnosť v modernom novostavbe
Poloha
Abdenastraße sa nachádza v centre Emdenu a ponúka vynikajúcu infraštruktúru. Obchody, gastronómia, lekári, železničná stanica aj kultúrne ponuky sú dostupné pešo. Centrálna poloha spája mestský život s krátkymi vzdialenosťami a najlepším spojením.
Zhrnutie
Tento penthouse je ideálny pre tých, ktorí chcú spojiť exkluzívne bývanie, centrálnu polohu a udržateľnú kvalitu stavby. Domov s výnimočným pocitom bývania – nad strechami Emdenu.
Projekt bude k dispozícii koncom marca 2026.
K dispozícii sú aj iné byty rôznych veľkostí a jeden penthouse.
Radi si dohodneme termín prehliadky.
Ulica Abdena (Abdenastraße) v Emdene sa nachádza v centre mesta
Poloha a okolie
Prechádza centrom mesta, len pár minút pešo od železničnej stanice v Emdene a autobusovej stanice.
Vstavaná kuchyňa vrátane
Veľkoformátové dlaždice
Vetrací systém
Elektrické rolety
Parametre nehnuteľnosti
| Vek | Nad 50 rokov |
|---|---|
| Stav | Novostavba |
| Číslo inzerátu | 978282 |
| Cena za jednotku | 20 € / m2 |
| Dostupné od | 1. 4. 2026 |
|---|---|
| Dispozícia | 3+1 |
| Úžitková plocha | 98 m² |
Čo táto nehnuteľnosť ponúka?
| Výťah | |
| MHD 1 minúta pešo |
| Parkovanie | |
| Terasa |
V okolí nehnuteľnosti nájdete
Stále hľadáte to pravé?
Nastavte si strážneho psa. Ponuky vybrané na mieru dostanete súhrnne 1× denne e-mailom. S Premium profilom máte po ruke rovno 5 strážcov a keď sa niečo objaví, informujú vás obratom.











