Predaj domu 4+kk • 135 m² bez realitky, Šlezvicko-Holštajnsko
, Šlezvicko-HolštajnskoMHD 1 minúta pešo • Parkovanie • GarážSamostatná mestská vila v exkluzívnej lokalite
Kompletná masívna konštrukcia (aj v hornom poschodí) – dve plné poschodia bez šikmých striech – luxusné vybavenie
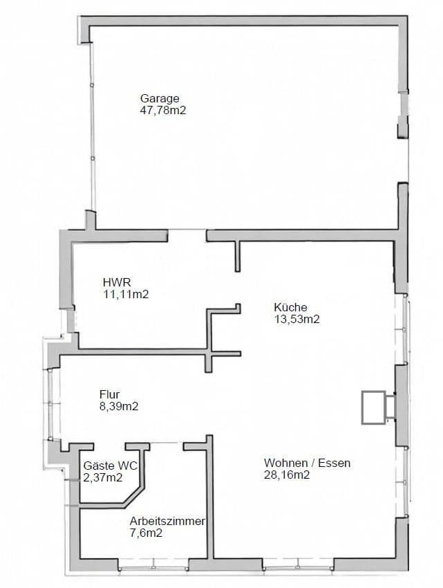
Obytná plocha: cca 135 m², garáž 47 m² podľa pôdorysu.
Užitková plocha: cca 47 m² dvojgaráž + komplet zútvarnený špicový podkrovie.
K dispozícii od júla 2026 alebo podľa dohody (príp. aj skôr)
Izby:
4,5 priestranných, svetlých izieb
Moderný, otvorený obývací/jedálenský priestor, tri dobre dispozíciou navrhnuté spálne a pracovňa využiteľná ako polovičná izba, vstupná časť s otvorenou galériou, množstvo miesta na podkroví.
1,5 kúpeľne
Luxusná kúpeľňa s voľne stojacou vaňou, bezbariérová sprchová kabína s daždivou sprchou, osvetlená polica v sprche a obklopená dlaždicami spolu s posedením, dvojité umývadlá, televízor, priestor pre vyhadzovanie bielizne do technickej miestnosti.
Hosťovské WC v prízemí s dodatočným ľahom.
Vybavenie:
3-stranný panoramatický krb, kvalitná a špičkovo vybavená kuchyňa s veľkým kuchynským ostrovom, extra vysoké stropy v prízemí, podlahové kúrenie v celom dome, rozsiahly systém smarthome, solárna inštalácia s 18 kW, batériou a wallboxom, elektrické rolety, elegantné drevené schodisko a mnoho ďalšieho.
Pozemok: cca 1 291 m² v exkluzívnej lokalite.
Okrem toho podiel na súkromnej ceste.
Veľká dvojgaráž s prístupom do domu, obrovská slnečná záhrada pri lese s ohniskom a ihriskom, komplet oplotená s absolútnym súkromím, dve priestranné terasy orientované na juh a východ, závlahový systém záhrady s dažďovou nádržou.
Komplexnejšie expozičné materiály môžu byť zaslané na požiadanie.
Energetický preukaz je k dispozícii a patrí do triedy energetickej efektívnosti A.
Ďalšie informácie: Stavebné dokumenty sú k dispozícii. Tento expozičný materiál je informačný a nezáväzný. Nepreberáme zodpovednosť za poskytnuté údaje. Súkromný predaj – bez záruky, predaj v stave, v akom je – bez záruky na vybavenie alebo prípadné vady.
Schwarzenbek – rodinne priateľské miesto v Schleswig-Holštajnsku s výbornou infraštruktúrou. Dom sa nachádza v pokojnej slepej uličke na konci hracej ulice, obklopený lesom a s vynikajúcimi spojeniami:
• Železničná stanica Schwarzenbek: 2 km
• Diaľnica: 8 km
• Letisko: 40 km
• Škola/škôlka: 1,5 km
• Nemocnica: 11 km
• Obchody/gastronómia: 2 km
V blízkosti centra, ale oddelené susediacim lesom.
Ideálne pre rodiny, páry alebo samostatne zárobkovo činné osoby – centrálne, no zároveň v kontakte s prírodou.
Parametre nehnuteľnosti
| Vek | Nad 50 rokov |
|---|---|
| Stav | Veľmi dobrý |
| Číslo inzerátu | 978249 |
| Úžitková plocha | 135 m² |
| Celkové poschodia | 2 |
| Dostupné od | 1. 7. 2026 |
|---|---|
| Dispozícia | 4+kk |
| PENB | A - Mimoriadne úsporné |
| Plocha pozemku | 1 291 m² |
| Cena za jednotku | 5 919 € / m2 |
Čo táto nehnuteľnosť ponúka?
| Garáž | |
| MHD 1 minúta pešo |
| Parkovanie | |
| Terasa |
V okolí nehnuteľnosti nájdete
Stále hľadáte to pravé?
Nastavte si strážneho psa. Ponuky vybrané na mieru dostanete súhrnne 1× denne e-mailom. S Premium profilom máte po ruke rovno 5 strážcov a keď sa niečo objaví, informujú vás obratom.





















