Predaj nebytového priestoru • 76 m² bez realitkyWeiserstraße 28 Salzburg Schallmoos Salzburg 5020
Weiserstraße 28 Salzburg Schallmoos Salzburg 5020MHD 2 minúty pešoKvôli odchodu do dôchodku predávam odteraz
BEZ PROVÍZIE
svoje obchodné priestory v bezprostrednej blízkosti Salzburger HAUPTBAHNHOF.
Obchodné priestory sa nachádzajú v prízemí obytného bloku, ktorý má celkovo 42 bytov a 3 ďalšie obchodné priestory.
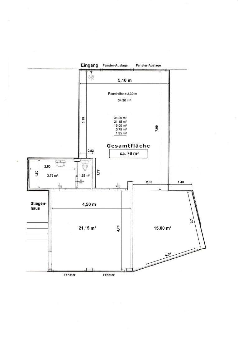
Celková obchodná plocha o rozlohe cca 76 m² je rozdelená do 3 miestností:
1. Predajňa (cca 50 m²)
a
2. Kancelária (cca 21 m²), pričom tieto dve miestnosti sú oddelené iba dočasnou stenou, ktorú je možné v prípade potreby odstrániť.
3. Sklad s pripojením na vodu (resp. malá kuchynka má cca 5 m²) a WC (cca 1 m²)
Do obchodných priestorov vedú 2 vstupné dvere: jedny zo strany ulice a druhé (ťažké bezpečnostné dvere) zo zadného dvora obytného bloku, resp. zo schodiska domu.
Aj sklad v obchodných priestoroch je oddelený od kancelárie bezpečnostnými dverami.
Všetky výklady, dve veľké okná do vnútorného dvoru a vstupné dvere sú navyše chránené žalúziami.
Celé obchodné priestory boli pred niekoľkými rokmi náročne kompletne zrekonštruované: boli obnovené všetky elektrické káble, zásuvky, vypínače, radiátory a dvere. Podlaha bola obložená prírodnými keramickými dlaždicami.
Celý obchodný priestor bol nedávno znovu natretý.
Bola inštalovaná kabelová alarmová sústava (ktorá je technicky už zastaraná), ale stále funguje.
Ponúkané obchodné priestory sú výborne vhodné aj ako kancelária.
Prevádzkové náklady momentálne činia približne 386 EUR vrátane DPH, pričom obchodné priestory neboli v posledných rokoch vykurované. Priamo pod obchodom sa nachádza vykurovacia miestnosť celého obytného bloku, vďaka čomu teplota v miestnostiach počas zimy sotva klesá pod 19 stupňov.
P.S. Nevhodné pre gastronomický prevádzku. Energetický preukaz je k dispozícii. Obchodné priestory sú tiež k prenájmu (mesačný MP 1 500 EUR).
Parametre nehnuteľnosti
| Stav | Po rekonštrukcii |
|---|---|
| Plocha nebytového priestoru | 76 m² |
| Číslo inzerátu | 978232 |
|---|---|
| Cena za jednotku | 4 342 € / m2 |
Čo táto nehnuteľnosť ponúka?
| Bezbariérový prístup |
| MHD 2 minúty pešo |
V okolí nehnuteľnosti nájdete
Stále hľadáte to pravé?
Nastavte si strážneho psa. Ponuky vybrané na mieru dostanete súhrnne 1× denne e-mailom. S Premium profilom máte po ruke rovno 5 strážcov a keď sa niečo objaví, informujú vás obratom.




















