
Prenájom bytu 4+kk • 136 m² bez realitky, Bádensko-Wurttembersko
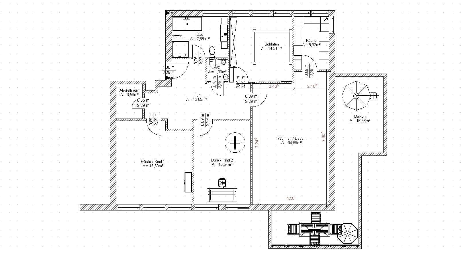
, Bádensko-WurttemberskoMHD 1 minúta pešo • Výťah • GarážUdržiavaný veľký byt s 3 spálňami (jedna sa od tej doby využívala ako kancelária) a s dvoma veľkými posuvnými dverami vedúcimi na balkón orientovaný na východ a juh. K dispozícii sú veľké markízy, vrátane posuvných závesov v obývačke a hosťovskej izbe, vstavaná kuchyňa s prémiovými spotrebičmi a granitovou pracovnou doskou, trojdielna zrkadlová skriňa so skriňami vedľa veľkého umývadla, navyše skladovacia miestnosť priamo v byte, domofón so vstavanou videokamerou a existujúce LAN káblovanie do obývačky, kancelárie a hosťovskej izby...
Prosíme, aby ste neposielali dopyty od maklérov a záujemcov o prenájom prostredníctvom úradu práce (Jobcenter), tieto nebudú zohľadnené.
Toto jedinečné nehnuteľnosť sa nachádza pri obrubníku Bietigheim, v blízkosti polí, lúk a lesa, s výhľadom na údolie Mettertal zo strany východu. Možnosti voľnočasových aktivít a vynikajúce napojenie na verejnú dopravu sú v bezprostrednej blízkosti. Mestská kúpeľňa, letný bazén a ľadová hala, ako aj gymnázium a odborná škola, sú ľahko dostupné.
Vysokokvalitné vybavenie zahŕňa granitovú podlahu v predsieni, kúpeľni a kuchyni, vchodové dvere s technológiou Schall-Ex, všetky dvere sú dodané s lícovým povrchom z kanadského javoru, pričom všetky vnútorné dvere v byte sú bez zámkov – iba dvere do kúpeľne a WC sú vybavené automatickými zavíjačmi. Nová podlaha v obývačke je vo forme vinylového laminátu s dreveným vzorom a integrovanou zvukovou izoláciou proti krokom, spálne majú korkovo-laminátovú podlahu (s miernymi známkami používania), byt nemá podlahové kúrenie, je však vybavený dizajnovými nástennými radiátormi, WC je vybavené urinalom a kúpeľňa navyše obsahuje bidet. Podľa delenej deklarácie je povolené komerčné využitie bez prítomnosti verejnosti. Časť balkónovej podlahy ešte musí byť čiastočne prekrytá (obnova bitúmenovej hydroizolácie zabezpečená spoločenstvom). Prehliadka sa uskutoční iba na základe pozitívneho dokladu o bonite.
Parametre nehnuteľnosti
| Vek | Nad 50 rokov |
|---|---|
| Stav | Dobrý |
| Poschodie | 2. poschodie |
| PENB | C - Hospodárne |
| Cena za jednotku | 14 € / m2 |
| Dostupné od | 1. 2. 2026 |
|---|---|
| Dispozícia | 4+kk |
| Číslo inzerátu | 977545 |
| Úžitková plocha | 136 m² |
Čo táto nehnuteľnosť ponúka?
| Balkón | |
| Pivnica | |
| Výťah |
| Bezbariérový prístup | |
| Garáž | |
| MHD 1 minúta pešo |
V okolí nehnuteľnosti nájdete
Stále hľadáte to pravé?
Nastavte si strážneho psa. Ponuky vybrané na mieru dostanete súhrnne 1× denne e-mailom. S Premium profilom máte po ruke rovno 5 strážcov a keď sa niečo objaví, informujú vás obratom.



