Predaj domu • 258 m² bez realitkyMax-Planck-Straße 3 Gera Gera Thüringen 07548
Max-Planck-Straße 3 Gera Gera Thüringen 07548MHD 2 minúty pešoUdržiavaná viacrodinná budova (MFH) v obľúbenom geraerskom štvrti „Heinrichsgrün“ na predaj (Max-Planck-Straße).
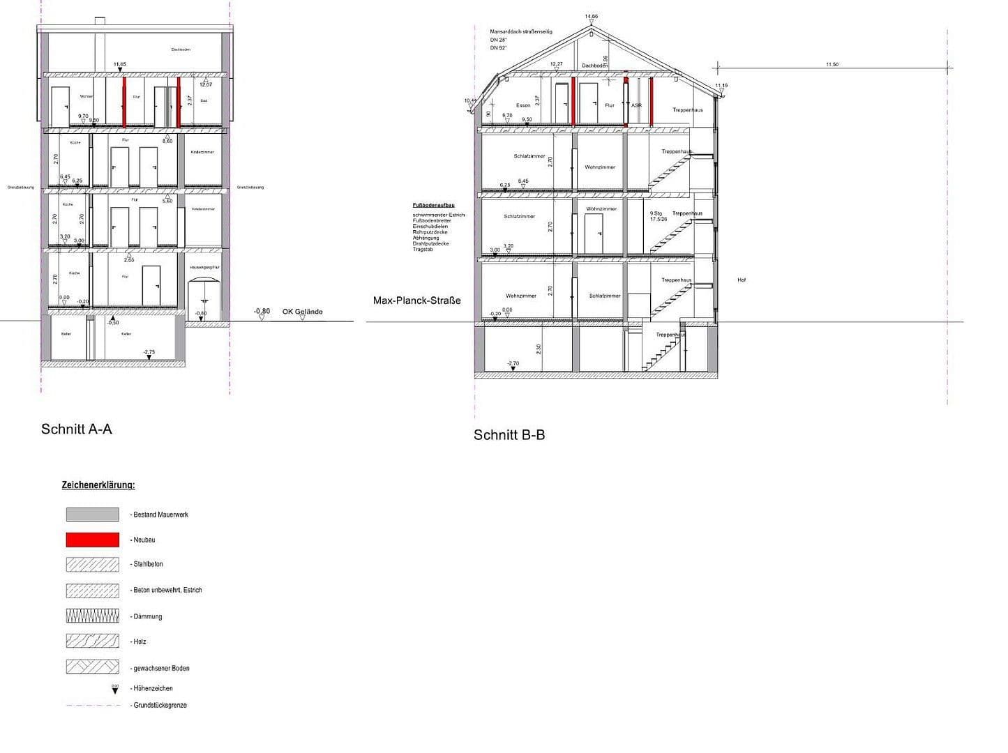
Typ objektu: Viacrodinná budova (MFH), štvrovetažová, z masívnej konštrukcie, úplne s podzemím, so záhradou a prídavnou zadnou budovou
Rok výstavby: 1910
Adresa: Max-Planck-Str. 3, 07548 Gera
Rozloha pozemku: 214 m²
Obytná plocha: cca 258 m²
Izby & bytové jednotky: 11 izieb rozdelených do 4 bytových jednotiek, všetky bytové jednotky sú prenajaté
Provízia: žiadna, pretože ide o priami predaj bez makléra
Kúpna cena: 310.000 €
Ročný čistý nájom: 18.120 € (úplne prenajaté)
Dom sa nachádza na bočnej ulici s optimálnym dopravným a infraštruktúrnym spojením. Za jednu minútu chôdze ste v mestskom lese, pri autobusovej zastávke, materskej škôlke, pri Dahliengartene, pekárni, a za dve minúty chôdze dosiahnete aj zvierací park a supermarket. O pár minút chôdze ďalej sú navyše dostupné aj lekárske centrum, geraerská nemocnica a centrum mesta.
V posledných rokoch boli realizované komplexné rekonštrukčné opatrenia, napríklad: obnovené vykurovanie (energetický nosič plyn), obnovené zdvihové hlavné potrubie, protipožiarna ochrana v súlade s aktuálnymi normami, zrenovovaná strecha a konštrukcia strechy hlavnej budovy, obnovená strecha zadnej budovy. Dom je teda v dobrom celkovom stave a môže okamžite slúžiť ako investičný objekt.
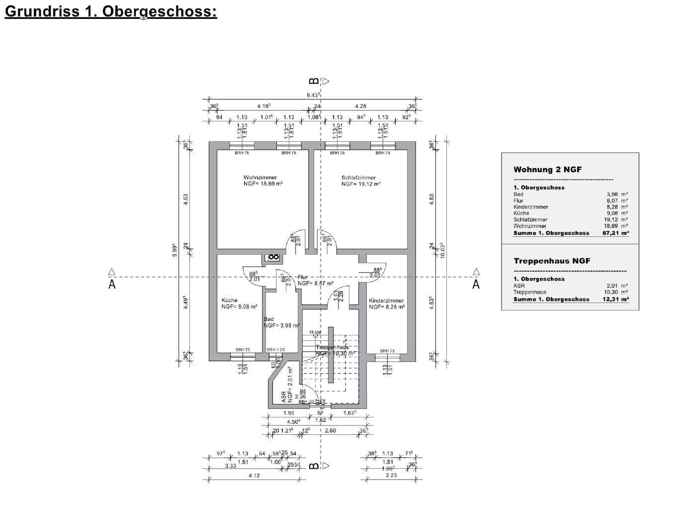
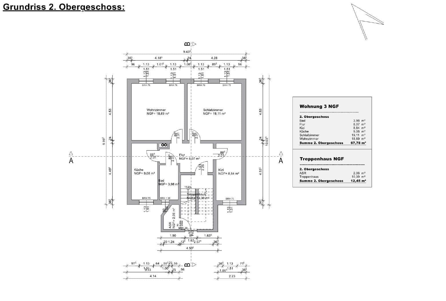
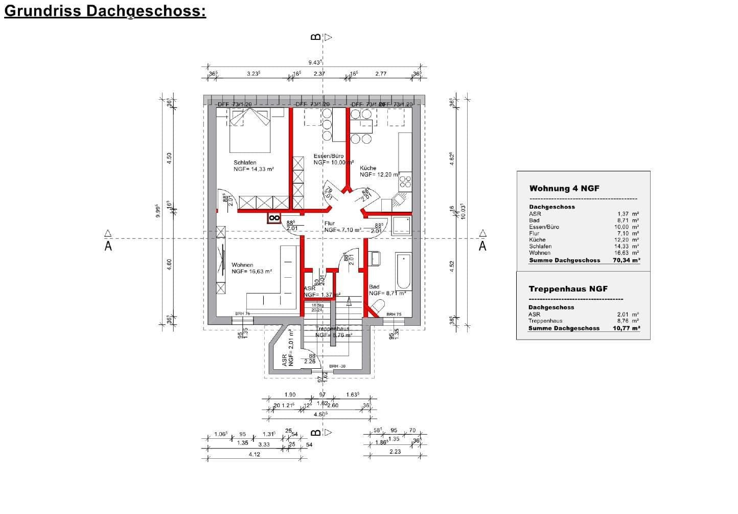
Každá bytová jednotka zaberá celé poschodie. Všetky štyri bytové jednotky sú prenajaté. Byty majú veľkorysý pôdorys a obytné plochy sú rozdelené nasledovne:
• Podkrovie: 73 m² (1 byt, 3 izby)
• 2. poschodie: 70 m² (1 byt, 3 izby)
• 1. poschodie: 70 m² (1 byt, 3 izby)
• Prízemie: 45 m² (1 byt, 2 izby)
Ročný čistý nájom: 18.120 € (úplne prenajaté)
Dom má úplne vybavené podzemie (uzamykateľné nájomné sklepy, kotolňa, elektroinštalácia).
Aktuálny energetický preukaz spotreby (vydaný v roku 2025) uvádza energetickú hodnotu 70,7 kWh/(m²a) a triedu energetickej efektívnosti B.
V zadnom dvore/záhrade stojí robustná zadná budova, ktorá má ešte ďalší potenciál. Momentálne sú zadná budova aj záhrada voľne k dispozícii na spoločné využitie nájomcami.
Zhrnutie:
– Byty: laminát/dlaždice, kúpeľne s vaňou a/alebo so sprchou, steny s textúrovanou omietkou
– Záhrada: áno, k voľnému využitiu nájomcami
– Balkón/Terasa: nie
– Úplne s podzemím
– Plynové kúrenie
– Prídavná zadná budova
– Úplne prenajaté
– Predaj bez sprostredkovateľského poplatku, od súkromného vlastníka, bez makléra
Parametre nehnuteľnosti
| Vek | Nad 50 rokov |
|---|---|
| PENB | B - Veľmi úsporné |
| Plocha pozemku | 214 m² |
| Cena za jednotku | 1 202 € / m2 |
| Číslo inzerátu | 977504 |
|---|---|
| Úžitková plocha | 258 m² |
| Celkové poschodia | 4 |
Čo táto nehnuteľnosť ponúka?
| Pivnica |
| MHD 2 minúty pešo |
V okolí nehnuteľnosti nájdete
Stále hľadáte to pravé?
Nastavte si strážneho psa. Ponuky vybrané na mieru dostanete súhrnne 1× denne e-mailom. S Premium profilom máte po ruke rovno 5 strážcov a keď sa niečo objaví, informujú vás obratom.
























