Predaj domu 5+1 • 130 m² bez realitkySchachenstraße 25 Neuburg an der Donau Bruck Bayern 86633
Schachenstraße 25 Neuburg an der Donau Bruck Bayern 86633MHD 6minút pešo • GarážSkvelá nehnuteľnosť
----------------------------------------------------------------------------------------------------------------------------------
Tento samostatne stojaci rodinný dom bol postavený v roku 1968 a disponuje obytnou plochou približne 130 m² na priestrannej parcele o rozlohe cca 1 089 m². Nachádza sa v pokojnej, v priebehu rokov zabehnutej rezidenčnej štvrti a pohodlne na okraji obce – ideálne pre rodiny s potrebou priestoru, milovníkov prírody alebo developerov, ktorí chcú využiť veľký rozvojový potenciál pozemku.
Pozemok je optimálne orientovaný: Dlhšia strana smeruje na juhozápad a susedí s poľnohospodárskou pôdou. To zabezpečuje mimoriadne pekný prúd denného svetla a voľný výhľad do zelene.
Dom bol naposledy zmodernizovaný v roku 1990 a je vo všeobecne udržiavanom stave. Celkovo ponúka 5 izieb, čo poskytuje veľa priestoru pre rodiny alebo páry, ktoré sa chcú tešiť z dodatočného miesta na koníčky, home office alebo pre hostí. Okrem kúpeľne sa nachádza aj hosťovské WC v prízemí a sprcha v suteréne. Funkčné usporiadanie otvára rôzne možnosti pre individuálne usporiadanie priestoru. Dom je navyše kompletne podkrovený a disponuje vlastnou garážou. Ohrev domu zabezpečuje centrálne inštalovaný olejový kotol.
Hlavné prednosti:
- Pokojná, zabehnutá rezidenčná štvrť na okraji obce
- Priestranný pozemok
- Juhozápadná orientácia s množstvom denného svetla
- Výhľad do zelene – poloha pri poli, kde sa neplánuje žiadna ďalšia výstavba
- Úplne suterénovaný
- Garáž pri dome
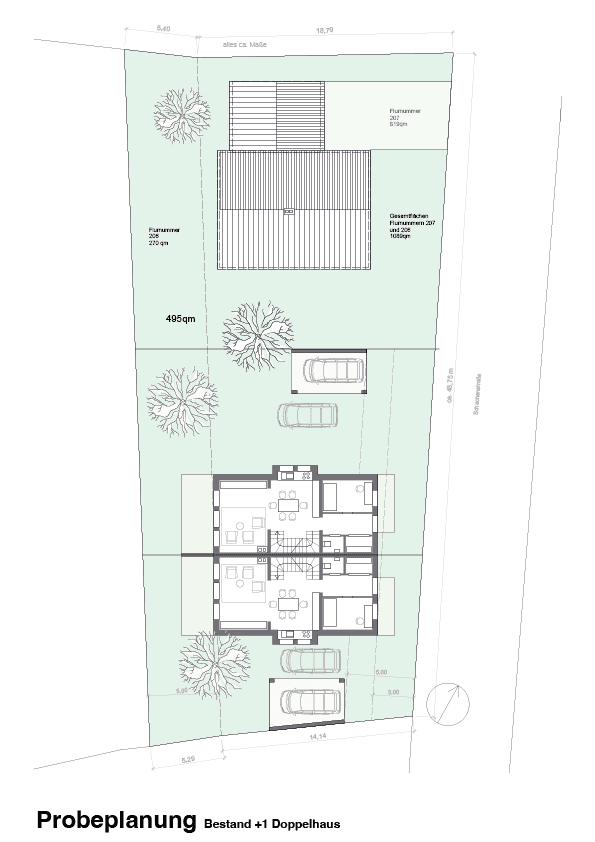
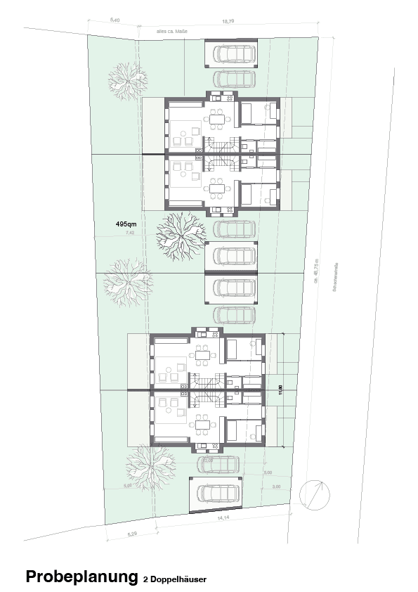
- Možnosť rozdelenia na až 4 parcely; žiadosť o stavebné povolenie je v riešení
S množstvom možností úprav
----------------------------------------------------------------------------------------------------------------------------------
1. Okamžité využitie existujúceho stavu
Dom je možné okamžite obývať v súčasnom stave. Je vhodný ako bývanie aj ako solídna investícia.
2. Rozdelenie pozemku
Pozemok je navyše veľmi dobre deliteľný – a to na až 4 parcely s rozlohou približne 260 m² každá. Ponúka tak priestor pre až štyri dvojdomy.
V priložených plánovacích podkladoch sú zobrazené rôzne možnosti výstavby. Príslušná žiadosť o stavebné povolenie je v riešení.
V dobrej lokalite
----------------------------------------------------------------------------------------------------------------------------------
Bruck je časťou veľkej okresnej obce Neuburg an der Donau v hornobavarskom okrese Neuburg-Schrobenhausen.
Neuburg an der Donau je očarujúce mesto s dobre rozvinutou infraštruktúrou. Poloha domu umožňuje výborné napojenie na verejnú dopravu a rýchly prístup k obchodným centrom, školám a lekárskym zariadeniam. Okolie navyše ponúka množstvo rekreačných príležitostí, vrátane dvoch golfových ihrísk, parkov a oblastí na oddych, ktoré pozývajú na aktivity v prírode.
S vynikajúcou dopravnou dostupnosťou
----------------------------------------------------------------------------------------------------------------------------------
Autom:
•
Parametre nehnuteľnosti
| Vek | Nad 50 rokov |
|---|---|
| Stav | Dobrý |
| Číslo inzerátu | 977491 |
| Plocha pozemku | 1 089 m² |
| Cena za jednotku | 4 500 € / m2 |
| Dostupné od | 21. 1. 2026 |
|---|---|
| Dispozícia | 5+1 |
| Úžitková plocha | 130 m² |
| Celkové poschodia | 2 |
Čo táto nehnuteľnosť ponúka?
| Balkón | |
| Garáž | |
| Terasa |
| Pivnica | |
| MHD 6 minút pešo |
V okolí nehnuteľnosti nájdete
Stále hľadáte to pravé?
Nastavte si strážneho psa. Ponuky vybrané na mieru dostanete súhrnne 1× denne e-mailom. S Premium profilom máte po ruke rovno 5 strážcov a keď sa niečo objaví, informujú vás obratom.



















