
Predaj domu 4+kk • 120 m² bez realitkyNové Strašecí - Nové Strašecí, Středočeský kraj
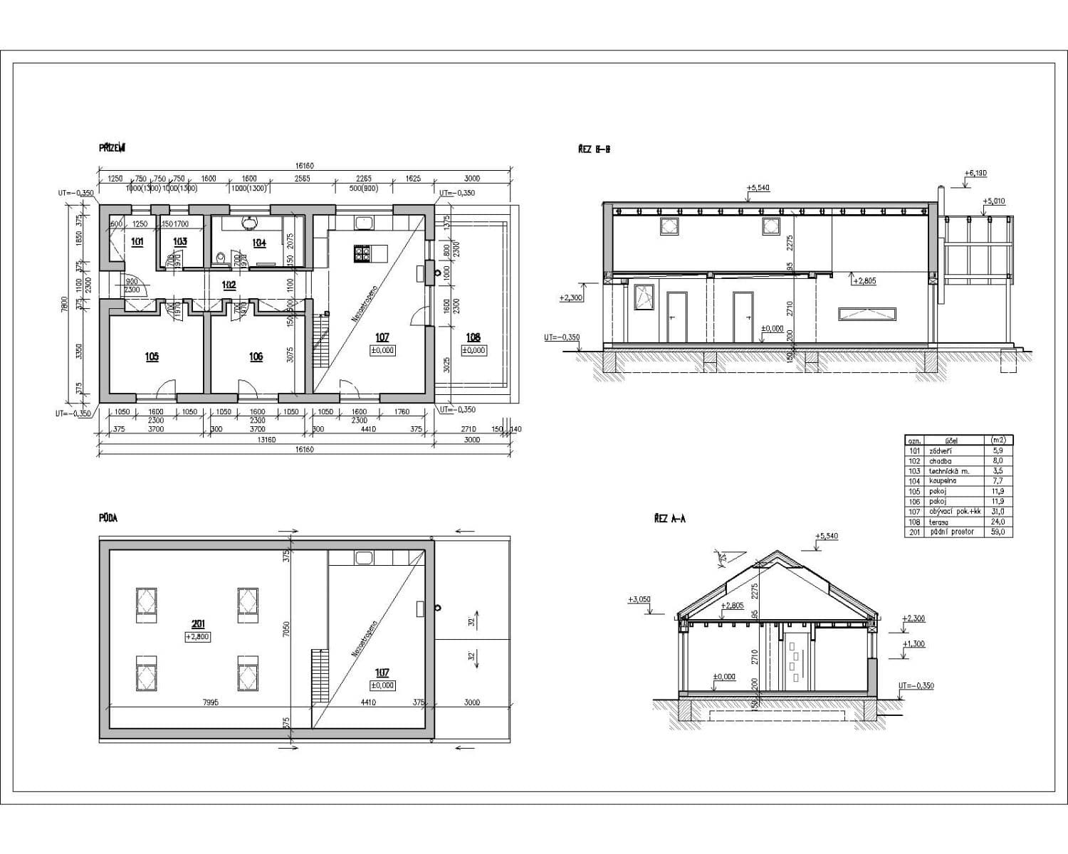
Jako přímý majitel nabízím k prodeji domek s dispozicí 4+kk uzpůsobený k celoročnímu užívání. V přízemí se nacházejí dva pokoje, obývací pokoj s kuchyňským koutem řešený jako otevřený prostor bez stropu, dále koupelna s WC a technická místnost. Dvě třetiny půdorysu stavby jsou zastropeny a vytvářejí tak podkrovní prostor pro spaní. Celková vnitřní podlahová plocha činí 80m2 v přízemí a dalších 60m2 podkrovního prostoru (pokud se započítá plocha nad 1m výšky nad podlahou, tak má podkroví výměru 43m2).
Domek se nachází v klidné rekreační části Nového Strašecí, některé sousedící stavby se již využívají pro celoroční bydlení. Do centra města trvá cesta vozem asi 4 minuty, na nájezd č.32 dálnice D6 kolem 3 minut. V Praze na Zličíně jste za 20 minut. Česká pošta nebo kurýrní služby do místa běžně zavážejí. V prosinci byla dokončena jeho kolaudace a již má přidělené evidenční číslo.
Stavba má plastová okna s trojskly, plechovou střešní krytinu, na podlahách laminátové lamely a dlažby. Vytápění je podlahové, TUV připravuje bojler (zvýhodněná sazba). Zásobování vodou se řeší hloubkovým studničním vrtem s vysokou vydatností, odpadní vody jímkou (možnost přestavby na DČOV v případě celoročního užívání). Dešťové vody jsou svedeny do podzemní retenční nádrže.
Pozemek s celkovou plochou 741m2 má obdélníkový tvar s delší stranou orientovanou ve směru SZ-JV, je rovinný a osluněný. Zatím není dokončena terasa se zastřešením s plochou 24m2, která bude přístupná z obývacího pokoje, hrubé terénní úpravy a oplocení s bránou. Plot směrem k příjezdové cestě je povolen jako gabionový (lze případně změnit). Parkování na vlastním pozemku, zahradní domek nebo sklad nářadí již dalšímu povolení nepodléhá.
Součástí prodeje je kompletní dokumentace k samotné stavbě, studničnímu vrtu a přípojce nízkého napětí, výkresy a veškerá stanoviska, souhlasy a povolení, revize i kolaudace.
Realitní kanceláře, prosím, nevolejte. Veškeré advokátní služby, smlouvy nebo úschova jsou zajištěny a součástí kupní ceny. Zpracování PENB se na stavby s evidenčním číslem nevztahuje, avšak parametry se rovnají hodnotám pro novostavby RD.
Parametre nehnuteľnosti
| Dostupné od | 3. 1. 2026 |
|---|---|
| Výstavba budov | Tehla |
| Vybavené | Nevybavené |
| Vlastníctvo | Osobné |
| Poloha domu | Oddelené stránky |
| Plocha pozemku | 740 m² |
| Stav | Novostavba |
|---|---|
| Dispozícia | 4+kk |
| Číslo inzerátu | 977420 |
| PENB | C - Hospodárne |
| Úžitková plocha | 120 m² |
| Cena za jednotku | 77 083 CZK / m2 |
Čo táto nehnuteľnosť ponúka?
| Parkovanie |
| Terasa 25 m² |
V okolí nehnuteľnosti nájdete
Stále hľadáte to pravé?
Nastavte si strážneho psa. Ponuky vybrané na mieru dostanete súhrnne 1× denne e-mailom. S Premium profilom máte po ruke rovno 5 strážcov a keď sa niečo objaví, informujú vás obratom.












