Predaj domu • 273 m² bez realitky, Hesensko
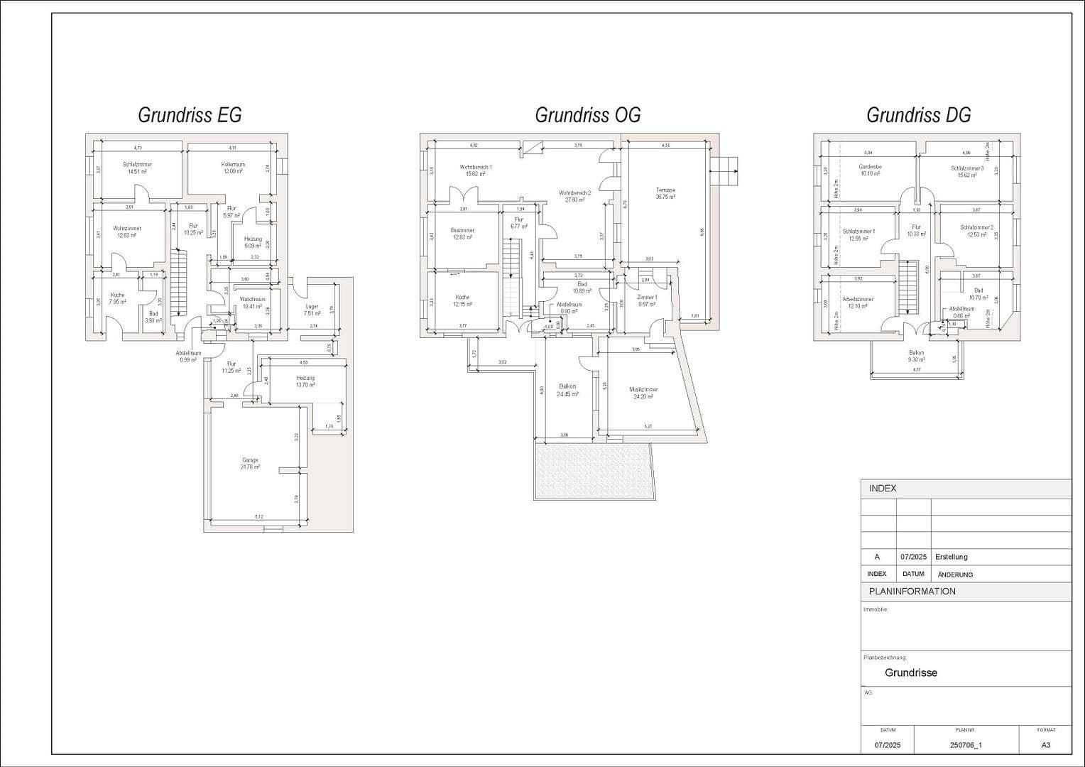
, HesenskoMHD do minúty pešo • Parkovanie • GarážHistorická budova chránená ako pamätník z roku 1890 spája historický šarm s moderným komfortom bývania. Na pozemku o rozlohe približne 405 m² sa nehnuteľnosť rozprestiera na troch podlažiach s obytnou plochou 273 m² a celkovo 10 izbami.
Okrem hlavného bytu rozprestierajúceho sa na dvoch podlažiach dom ponúka aj samostatný byt pre nájomníkov a veľmi pôvabné vonkajšie priestory: terasu, balkóny a prívesný priestor, ktoré poskytujú dodatočné možnosti využitia, napríklad pre saunu a fitness miestnosť. Príprava pre saunu už existuje. V súkromnom dvore je k dispozícii dvojgaráž a 2 parkovacie miesta.
Dom sa nachádza v historickom centre Gelnhausenu, v mimoriadne tichej lokalite. Okolie je charakterizované domami s halovou konštrukciou a vybudovanou infraštruktúrou. Iba 3 minúty pešo a dosiahnete Horný a Dolný trh. Obchodné možnosti, školy, lekári aj verejná doprava sú tiež rýchlo dostupné. A nezabudnime na krásny mestský park, ktorý sa nachádza v bezprostrednej blízkosti.
Renovácia bola vykonaná s veľkou úctou k historickej hodnote objektu a so zmyslom pre detail. Pôvodný charakter zostal zachovaný a bol obohatený o kvalitné akcenty.
Bez provízie – priamo od majiteľa.
Obhliadky po dohode.
Parametre nehnuteľnosti
| Vek | Nad 50 rokov |
|---|---|
| Číslo inzerátu | 977310 |
| Plocha pozemku | 405 m² |
| Cena za jednotku | 3 601 € / m2 |
| Stav | Po rekonštrukcii |
|---|---|
| Úžitková plocha | 273 m² |
| Celkové poschodia | 3 |
Čo táto nehnuteľnosť ponúka?
| Balkón | |
| Garáž | |
| MHD 0 minút pešo |
| Pivnica | |
| Parkovanie | |
| Terasa |
V okolí nehnuteľnosti nájdete
Stále hľadáte to pravé?
Nastavte si strážneho psa. Ponuky vybrané na mieru dostanete súhrnne 1× denne e-mailom. S Premium profilom máte po ruke rovno 5 strážcov a keď sa niečo objaví, informujú vás obratom.












