Predaj domu 3+1 • 82 m² bez realitky, Meklenbursko-Predpomoransko
, Meklenbursko-PredpomoranskoMHD do minúty pešoDieser vollständig modernisierte Bungalow bietet genau das, was aktuell nur noch selten zu finden ist: ein durchdachtes, ebenerdiges Wohnkonzept, moderne Technik und eine ruhige Lage nahe der Ostsee – ohne Renovierungsstau, ohne Kompromisse.
Tento kompletne zmodernizovaný bungalov ponúka presne to, čo je v súčasnosti ťažko nájsť: premyslený koncept bývania na jednej úrovni, moderné technológie a pokojnú polohu v blízkosti Baltského mora – bez zanedbaných opráv a kompromisov.
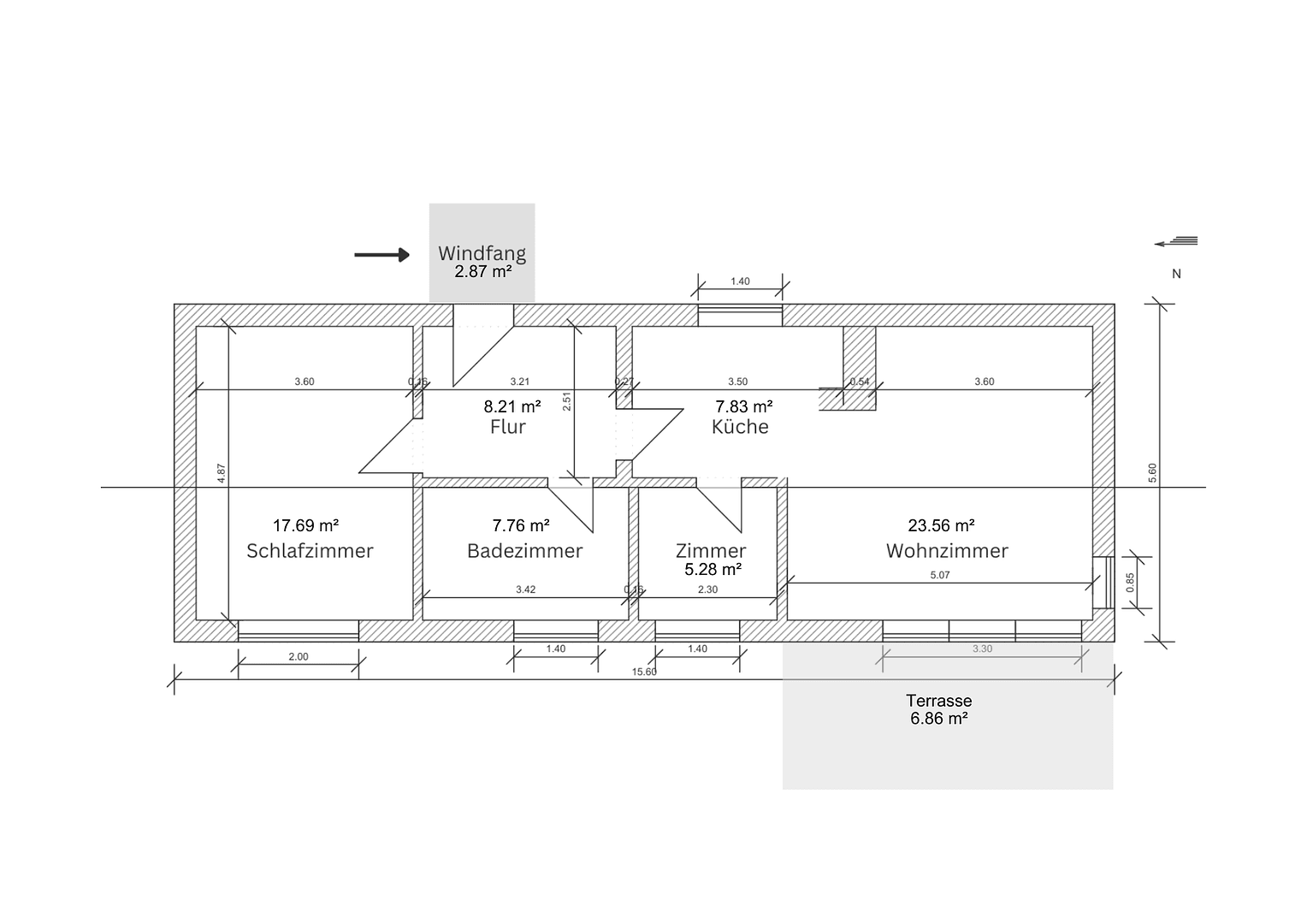
Auf rund 81 m² Wohnfläche erwartet Sie ein klar strukturierter Grundriss mit großzügigem Wohn- und Essbereich, bodentiefen Fenstern und direktem Zugang zur neu angelegten, überdachten Terrasse. Die offene Küche fügt sich harmonisch in den Wohnbereich ein und schafft eine moderne, offene Wohnatmosphäre. Ein Kamin sorgt zusätzlich für Behaglichkeit an kühleren Tagen.
Na približne 81 m² obytného priestoru vás čaká jasne štruktúrovaný pôdorys s priestrannou obývacou a jedálenskou časťou, oknami s podlahou až po strop a priamym vstupom na novo upravenú, prekrytú terasu. Otvorená kuchyňa sa harmonicky spája s obývacou časťou a vytvára modernú, otvorenú atmosféru bývania. Krb navyše zaisťuje útulnosť počas chladnejších dní.
Der Bungalow wurde umfassend modernisiert und befindet sich technisch wie optisch auf einem sehr aktuellen Stand. Alles ist vorbereitet für sofortiges, stressfreies Einziehen – ideal für Eigennutzer, die dauerhaft an der Ostsee leben möchten, ebenso wie für Käufer, die ein wertstabiles Objekt in gefragter Lage suchen.
Bungalov bol komplexne zmodernizovaný a je technicky aj opticky na veľmi aktuálnej úrovni. Všetko je pripravené pre okamžité a bezstresové nasťahovanie – ideálne pre majiteľov, ktorí chcú trvalo bývať pri Baltskom mori, rovnako ako pre kupujúcich, ktorí hľadajú hodnotný objekt na žiadanej lokalite.
Das Grundstück ist pflegeleicht angelegt. Eine Garage sowie ein separates Gartenhaus bieten zusätzlichen Komfort und Stauraum. Durch die ebenerdige Bauweise ist das Haus langfristig alltagstauglich und komfortabel nutzbar.
Pozemok je nenáročný na údržbu. Garáž a samostatný záhradný dom poskytujú dodatočný komfort a úložný priestor. Vďaka jednopodlažnej konštrukcii je dom dlhodobo vhodný pre každodenné použitie a pohodlné bývanie.
In dieser Qualität, mit diesem Zustand und dieser Lage ist ein Bungalow in Zierow derzeit kaum vergleichbar am Markt verfügbar.
V takejto kvalite, so súčasným stavom a lokalitou je bungalov v Zierow momentálne na trhu ťažko porovnateľný.
Haben wir Ihr Interesse geweckt?
Dann nehmen Sie gern Kontakt auf und vereinbaren Sie einen Besichtigungstermin.
Zaujali sme vás?
Kontaktujte nás a dohodnite si termín obhliadky.
Der Bungalow befindet sich in Zierow, einer beliebten und ruhigen Wohngemeinde unmittelbar westlich von Wismar. Nur wenige Minuten trennen Sie vom Naturstrand der Ostsee, der zum Spazieren, Radfahren oder Entspannen einlädt.
Bungalov sa nachádza v Zierow, obľúbenej a pokojnej obci priamo západne od Wismaru. Len pár minút vás delí od prírodnej pláže Baltského mora, ktorá je ideálna na prechádzky, bicyklovanie alebo oddych.
Zierow verbindet naturnahe Wohnqualität mit stadtnaher Bequemlichkeit – ideal für alle, die Ruhe und frische Seeluft schätzen, ohne auf eine gute Erreichbarkeit zu verzichten.
Zierow spája prírodnú kvalitu bývania s komfortom blízkosti mesta – ideálne pre všetkých, ktorí si cenia pokoj a čerstvý morský vzduch bez kompromisu na dobrej dostupnosti.
• Vollständig modernisiert – kein Renovierungsbedarf
• Kompletné zmodernizovanie – bez potreby opráv
• Bungalow: alles auf einer Ebene
• Bungalov: všetko na jednej úrovni
• Großzügiger Wohn- und Essbereich mit bodentiefen Fenstern
• Priestranná obývacia a jedálenská časť s oknami zasahujúcimi od podlahy až po strop
• Offene Küche und moderne Raumaufteilung
• Otvorená kuchyňa a moderné usporiadanie priestoru
• Kamin für zusätzliche Wohnqualität
• Krb pre zvýšenie komfortu bývania
• Überdachte Terrasse mit neu gestaltetem Außenbereich
• Prekrytá terasa s novo upraveným vonkajším priestorom
• Garage und separates Gartenhaus
• Garáž a samostatný záhradný dom
• Ruhige, beliebte Wohnlage nahe der Ostsee
• Pokojná, obľúbená lokalita v blízkosti Baltského mora
• Sofort bezugsfrei
• Ihneď k dispozícii
• Seltenes Angebot in dieser Lage und diesem Zustand
• Zriedkavá ponuka v tejto lokalite a tomto stave
Parametre nehnuteľnosti
| Vek | Nad 50 rokov |
|---|---|
| Stav | Po rekonštrukcii |
| Číslo inzerátu | 977282 |
| Úžitková plocha | 82 m² |
| Cena za jednotku | 3 901 € / m2 |
| Dostupné od | 14. 1. 2026 |
|---|---|
| Dispozícia | 3+1 |
| PENB | C - Hospodárne |
| Plocha pozemku | 318 m² |
Čo táto nehnuteľnosť ponúka?
| Bezbariérový prístup | |
| Terasa |
| MHD 0 minút pešo |
V okolí nehnuteľnosti nájdete
Stále hľadáte to pravé?
Nastavte si strážneho psa. Ponuky vybrané na mieru dostanete súhrnne 1× denne e-mailom. S Premium profilom máte po ruke rovno 5 strážcov a keď sa niečo objaví, informujú vás obratom.


















