
Predaj bytu 3+1 • 90 m² bez realitkyWolfratshausen Wolfratshausen Bayern 82515
Wolfratshausen Wolfratshausen Bayern 82515MHD do minúty pešo • GarážVeľmi pekný a priestranný 3-izbový byt v udržiavanom a tichom obytnom komplexe vo Wolfratshausene Waldram.
Budova bola postavená v roku 1974 ako masívna stavba.
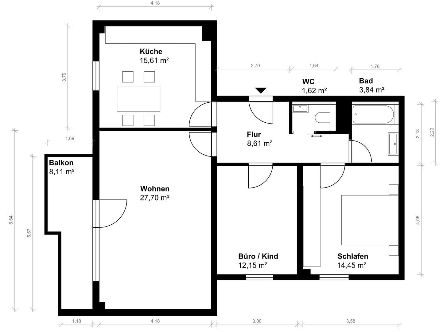
Do bytu sa vstupuje cez predsieň, z ktorej máte prístup do všetkých miestností. Veľkorysá obývačka ponúka množstvo možností zariadenia. Z obývačky vedie vstup na krytý balkón orientovaný na juhovýchod.
Kuchynsko-obývacia časť poskytuje dostatok priestoru pre útulný jedálenský kútik.
Obe spálne majú prehľadné dispozície a ponúkajú dostatok miesta pre nábytok.
Kúpeľňa s vaňou a samostatné WC majú moderné a kvalitné vybavenie.
K bytu patrí aj veľké pivničné priestory a garáž. Garáž je vybavená elektrickou prípojkou a elektrickým garážovým bránou. Je tiež k dispozícii wallbox s výkonom 11 kW.
Byt sa nachádza v pokojnom obytnom komplexe vo Waldrame – pokojnej, rodinne priateľskej a obľúbenej štvrti Wolfratshausene.
Celá štvrť je zónou s obmedzenou rýchlosťou 30 km/h.
Štvrť je obklopená množstvom prírody: rieku Isar dosiahnete pešo, nádherné cyklotrasy sú priamo za dverami. Okrem toho sú vo Waldrame k dispozícii materské školy, detské ihriská, školy, športové a tenisové ihriská, supermarket, pekáreň a zdravotná starostlivosť.
Centrum Wolfratshausene je vzdialené približne 2 km.
Doprava verejnou dopravou je zabezpečená: autobusová zastávka sa nachádza v blízkosti, z ktorej autobusom dojdete k stanici S-Bahn Wolfratshausen a odtiaľ sa za približne 40 minút dostanete do Mníchova.
Mníchov je cez diaľnicu A95 vzdialený približne 20 minút a lyžiarske strediská Álp sú dostupné do 1 až 1,5 hodiny.
Kompletná rekonštrukcia 2017:
• Nové plastovo-hliníkové okná s trojsklom
• Nové vonkajšie žalúzie
• Nová kúpeľňa s kvalitným nábytkom a armaturami
• Nová toaleta
• Nové vnútorné dvere a rámiky
• Nová elektroinštalácia vrátane FI chrániča
• Nová omietka
• Nové podlahové krytiny
• Vstavaná kuchyňa
2021:
• Wallbox 11 kW v garáži
• Mechanizmus otvárania garážových dverí, osvetlenie a elektrické zásuvky v garáži
2022:
• Bezpečnostné dvere na vstupe do bytu
Parametre nehnuteľnosti
| Vek | Nad 50 rokov |
|---|---|
| Dispozícia | 3+1 |
| Číslo inzerátu | 977268 |
| Úžitková plocha | 90 m² |
| Stav | Po rekonštrukcii |
|---|---|
| Poschodie | 1. poschodie |
| PENB | C - Hospodárne |
| Cena za jednotku | 4 667 € / m2 |
Čo táto nehnuteľnosť ponúka?
| Balkón | |
| MHD 0 minút pešo |
| Garáž |
V okolí nehnuteľnosti nájdete
Stále hľadáte to pravé?
Nastavte si strážneho psa. Ponuky vybrané na mieru dostanete súhrnne 1× denne e-mailom. S Premium profilom máte po ruke rovno 5 strážcov a keď sa niečo objaví, informujú vás obratom.



















