
Prenájom bytu 2+kk • 88 m² bez realitky, Hesensko
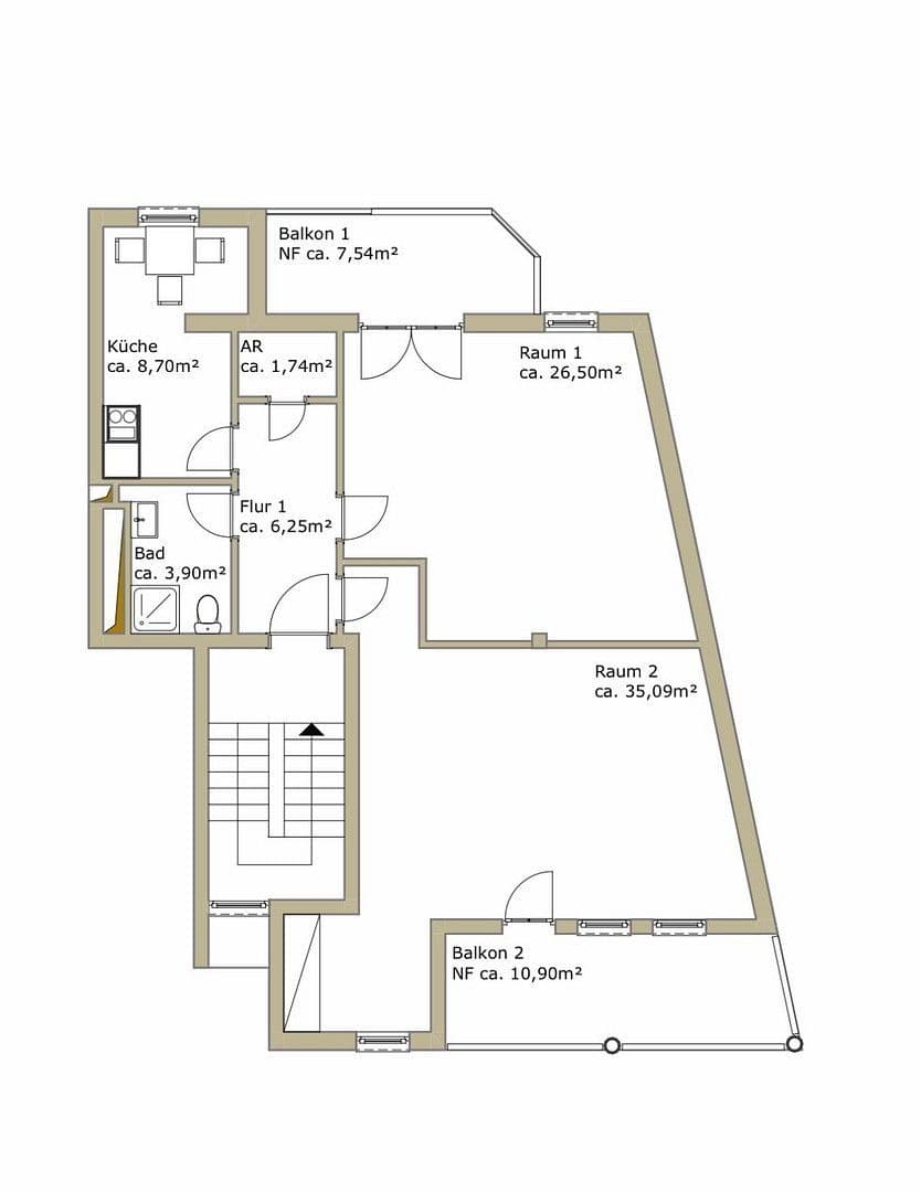
, HesenskoMHD do minúty pešoGemütlichkeit, šarm a individualita vyžarujú z tejto vysoko kvalitne zrekonštruovanej 2,5-izbovej bytu, ktorá bude k dispozícii od 01.01.2026. V druhom poschodí domu, ktorý má 22 rokov, nájdete svoj nový domov. Biela lakovaná kuchyňa, štýlové parkety a veľké izby patria len medzi niektoré zaujímavosti tejto priestrannej a modernej bytu. K dispozícii je aj úložná miestnosť pre všetky nevyhnutné veci každodenného života a, posledné, ale nie menej dôležité, dva slnečné balkóny s nádherným výhľadom. Rozdelenie priestoru otvára dvere množstvu možností pri zariadení. Nezabudnite ani na miesto v podzemnej garáži a vstavanú kuchyňu.
Zavolajte a pozrite si ju s nami.
Vybavenie:
• Parkety
• Dlaždice
• Vstavaná kuchyňa
• 2 balkóny
• Miesto v podzemnej garáži
V pokojnej lokalite, neďaleko obchodov s každodennými potrebami, S-Bahn a škôl. Pri úpätí Taunusu leží mesto Kronberg, ktoré je štátne uznávaným liečebným kúpeľom na čerstvom vzduchu. Táto obec je obklopená nádhernými lesnými scenériami, ovocnými sadmi a malebnými chodníkmi, ktoré pozývajú na príjemné, pokojné prechádzky. V Kronbergu ste chránení pred hlukom a zhonom bankovej metropoly Frankfurt, ktorá je vzdialená približne 15 km a pohodlne dostupná pomocou S-Bahn. Mesto ponúka veľmi dobré dopravné spojenia.
Kronberg má očarujúce historické centrum, nad ktorým dominuje zámok.
Schlosshotel Kronberg má celosvetovú povesť a bol umiestnený v bývalom vdovskom sídle cisárovnej.
Príťažlivosťou pre veľkých aj malých je Opel-Zoo so svojimi veľkými výbehy vonku.
Parametre nehnuteľnosti
| Stav | Veľmi dobrý |
|---|---|
| Poschodie | 2. poschodie z 2 |
| Úžitková plocha | 88 m² |
| Dispozícia | 2+kk |
|---|---|
| Číslo inzerátu | 976965 |
| Cena za jednotku | 14 € / m2 |
Čo táto nehnuteľnosť ponúka?
| Balkón | |
| Terasa |
| MHD 0 minút pešo |
V okolí nehnuteľnosti nájdete
Stále hľadáte to pravé?
Nastavte si strážneho psa. Ponuky vybrané na mieru dostanete súhrnne 1× denne e-mailom. S Premium profilom máte po ruke rovno 5 strážcov a keď sa niečo objaví, informujú vás obratom.










