Predaj domu • 237 m² bez realitkyReichertshausen - Steinkirchen Steinkirchen Bayern 85293
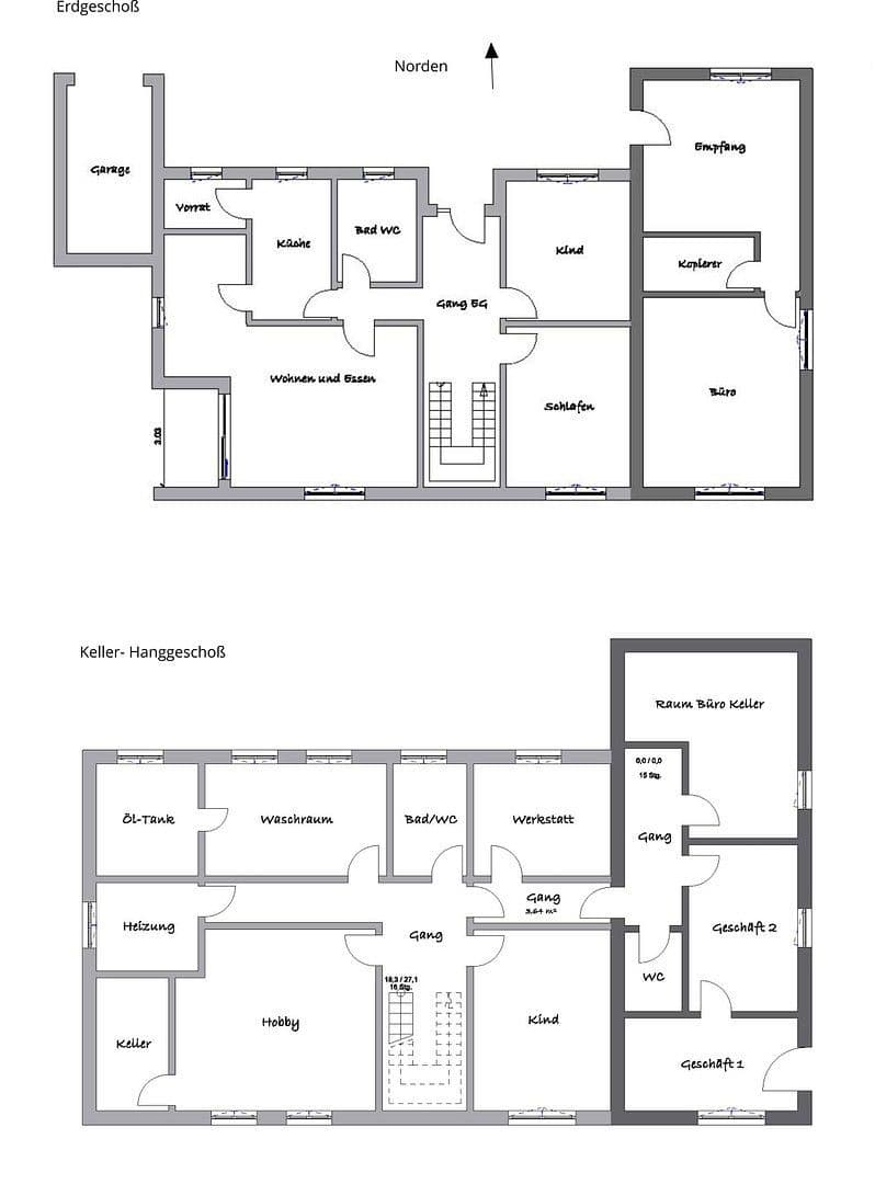
Reichertshausen - Steinkirchen Steinkirchen Bayern 85293MHD 1 minúta pešo • Parkovanie • GarážTáto ponuka pozostáva z multifunkčne využiteľného objektu, pretože okrem veľmi dobre navrhnutého pôdorysu, v kombinácii s prístavbou postavenou v roku 2000, môže byť využitý rôznymi spôsobmi (napr. ako kancelária, HP-prax alebo kozmetické štúdio). Okrem pokojnej obytné lokality s vynikajúcim dopravným spojením môže byť váš nový objekt vďaka prístavbe využitý rôznymi spôsobmi. Objekt bol postavený masívnou tehlovou stavbou a zahŕňa približne 357 m² (z toho približne 120 m² tvorí prístavba s dvoma samostatnými vstupmi) celkovej podlahovej plochy. Nachádza sa na pozemku s rozlohou približne 992 m², v pokojnej slepej uličke so smerom na juh. Lokalita je tiež obzvlášť vhodná pre rodiny, keďže vo vzdialenosti približne 80 metrov sa nachádza novo postavená materská škôlka vrátane jasličiek a približne vo vzdialenosti 200 metrov základná škola. Objekt bol priebežne udržiavaný vo vlastnom vlastníctve a už bol energeticky zrekonštruovaný (aktuálny energetický preukaz je k dispozícii). Pôvodná budova bola postavená v roku 1974. Na pozemku sa nachádza garáž vrátane autokarportu, ako aj samostatné a kryté miesto pre príves. Objekt je momentálne využívaný vlastníkmi na súkromné aj komerčné účely a môže byť individuálne odovzdaný po dohode.
Panský objekt sa nachádza v Reichertshausen-Steinkirchen v pokojnej slepej uličke. V bezprostrednej blízkosti objektu premávajú autobusové linky 707, 9202 a 9203. Vo vzdialenosti približne 3–5 km je niekoľko nákupných možností. Tiež v bezprostrednej blízkosti sa nachádza základná škola Steinkirchen, len asi 200 metrov od objektu. V okruhu približne 1–5 km sú dostupné veľmi dobré zdravotnícke služby a rôzne možnosti oddychu a športu (medzi inými golfové ihrisko, lesný lezecký park, minigolf, tenisové kurty, športové zariadenie miestneho športového klubu). K S-Bahn München (S2 a regionálna linka) je to približne 3 km, čo umožňuje doraziť do hlavnej stanice v Mníchove za približne 30 minút. Autom je to len približne 40 km do Mníchova aj k ingolštádskej hranici mesta. Do Pfaffenhofen a.d.Ilm je to približne 10 km a v bezprostrednom okolí sa nachádza množstvo dobre upravených cyklotrás, ktoré napríklad vedú k kúpeľnému jazeru pri Kranzbergu, ktoré je dosiahnuteľné na bicykli za približne 30 minút. K letisku Mníchov trvá cesta autom približne 30 minút a kultúrne okres Pfaffenhofen, ako aj bezprostredne susediaci okres Dachau, ponúkajú pestrú škálu rôznych atrakcií.
K dispozícii sú okrem iného čiastočne dubový parket, obklady z dlaždíc a kameniny, ako aj vinylové alebo laminátové podlahy. Plastové okná s dvojsklovou Schuco tepelnou izoláciou. Moderná, kompletne vybavená a nová kuchyňa. Solárna prípojka na ohrev teplej vody vrátane 6 kW/h fotovoltaickej elektrárne. Úplná tepelná izolácia budovy a izolácia pod strešným priestorom dopĺňajú ostatné energetické opatrenia. Existujúce olejové kúrenie bolo pravidelne servisované a obsahuje zásobník na teplú vodu. V obývačke sa nachádza švédsky pec, ktorý je pripojený na nerezový komín, pričom na želanie poskytuje príjemné teplo počas zimy. Podľa aktuálneho energetického preukazu je objekt zaradený do triedy C.
Pôvodná budova je v súčasnosti využívaná ako obytný dom a prístavba slúži ako kancelária a kozmetické štúdio (s dvoma samostatnými a oddelenými vstupmi). Návrh prístavby ponúka ďalšie možnosti využitia, napríklad ako ďalšia prenajímateľná jednotka alebo ako doplnková obytná jednotka. Objekt bol ešte pred 4 rokmi nanovo natretý kvalitnou silikónovou farbou, a prístupová cesta, vjazd do garáže aj terasa boli taktiež pred niekoľkými rokmi novopoložené dlažbou. Pre obytnú a využitelnú plochu bola vypracovaná aktuálna kúpna kalkulácia nezávislým znaleckým posudkom.
Parametre nehnuteľnosti
| Vek | Nad 50 rokov |
|---|---|
| Číslo inzerátu | 976879 |
| Plocha pozemku | 992 m² |
| Cena za jednotku | 3 882 € / m2 |
| Stav | Po rekonštrukcii |
|---|---|
| Úžitková plocha | 237 m² |
| Celkové poschodia | 2 |
Čo táto nehnuteľnosť ponúka?
| Pivnica | |
| Parkovanie | |
| Terasa |
| Garáž | |
| MHD 1 minúta pešo |
V okolí nehnuteľnosti nájdete
Stále hľadáte to pravé?
Nastavte si strážneho psa. Ponuky vybrané na mieru dostanete súhrnne 1× denne e-mailom. S Premium profilom máte po ruke rovno 5 strážcov a keď sa niečo objaví, informujú vás obratom.






































