
Prenájom bytu 4+1 • 81 m² bez realitky, Porýnie-Falcko
, Porýnie-FalckoMHD 1 minúta pešo • ParkovanieMesačné nájomné1 150 €
+ Poplatky za služby150 €
+ Vratná kaucia3 300 €
Preložené AI
Jedná sa o staršiu nehnuteľnosť zo 60. rokov, ktorá je čiastočne zrekonštruovaná. Samotný byt sa momentálne kompletne rekonštruuje (nová kúpeľňa, nové potrubie + elektrina, nová podlaha, čerstvo natreté steny, nové sanitárne zariadenia, nová klimatizácia, nové radiátory). Za ním sa nachádza záhrada, ktorá je možné využívať.
Okrem toho je k bytu priradené aj parkovacie miesto.
Veľmi tichá lokalita na okraji lesov Bienwaldu, avšak Karlsruhe je autom dostupné za 15 minút.
Spoločnosť Daimler Truck AG je taktiež dostupná do 10 minút.
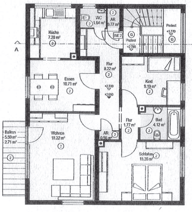
Parametre nehnuteľnosti
| Vek | Nad 50 rokov |
|---|---|
| Stav | Po rekonštrukcii |
| Poschodie | 1. poschodie |
| PENB | G - Mimoriadne nehospodárne |
| Cena za jednotku | 14 € / m2 |
| Dostupné od | 1. 3. 2026 |
|---|---|
| Dispozícia | 4+1 |
| Číslo inzerátu | 976687 |
| Úžitková plocha | 81 m² |
Čo táto nehnuteľnosť ponúka?
| Balkón | |
| Parkovanie |
| Pivnica | |
| MHD 1 minúta pešo |
V okolí nehnuteľnosti nájdete
MHDWörth, Ottstraße
🚶 73 m (1 min)
Pošta4You Repair
🚘 1 565 m (4 min)
ObchodFidan Market
🚶 173 m (2 min)
BankaVR Bank Südpfalz eG
🚶 199 m (2 min)
ReštauráciaOro di Barone
🚶 131 m (2 min)
LekáreňZügel-Apotheke
🚶 178 m (2 min)
ŠkolaDammschule
🚶 182 m (2 min)
Materská školaJohann-Friedrich-Oberlin-Kindergarten
🚶 295 m (4 min)
ŠportoviskoBienwaldhalle
🚶 796 m (10 min)
Ihrisko
🚶 281 m (3 min)
Vzdialenosť k:
Mesačné nájomné1 150 €
+ Poplatky za služby150 €
+ Vratná kaucia3 300 €
Stále hľadáte to pravé?
Nastavte si strážneho psa. Ponuky vybrané na mieru dostanete súhrnne 1× denne e-mailom. S Premium profilom máte po ruke rovno 5 strážcov a keď sa niečo objaví, informujú vás obratom.



















