Prenájom kancelárie • 52 m² bez realitkyFischergasse 3, , Bavorsko
Fischergasse 3, , BavorskoMHD 5minút pešoBydlieť a pracovať v prostredí MERTSEEHOF,
bydlieť a pracovať s vyššou kvalitou života
Spustite svoje podnikanie v roku 2026 s novými energiami v inšpiratívnom pracovnom prostredí.
Kancelárska/obchodná jednotka v rozšírenom stavebnom úseku MERTSEEHOF bude začiatkom roku 2026 pripravená na nasťahovanie. Jednotka je súčasťou atmosféry a celku MERTSEEHOF.
V nových priestoroch MERTSEEHOF sa vám ponúka možnosť prezentovať svoju firmu v najlepšej mestkej lokalite.
Vaša adresa v MERTSEEHOF je vizitkou pre vašich zákazníkov.
Vaši zamestnanci si vychutnajú atraktívne prostredie rovnako ako vy.
Postarajte sa o silný imidž svojej firmy.
Projekt MERTSEEHOF ponúka mimoriadne aspekty pre pravých vidiecko-mestských obyvateľov. Pracujte a žite v jedinečnej atmosfére MERTSEEHOF.
Uprostred mesta využijete prednosti najlepšej mestkej lokality, pričom si zároveň vychutnáte pokojné pracovné prostredie v tejto prestížnej budove.
Kancelárska/obchodná jednotka v MERTSEEHOF bude k dispozícii od začiatku januára 2026. Mnoho detailov, ktoré hovoria samy za seba:
- moderná drevená stavba s odkrytými stropmi z pravého dreva
- čiastočne odhalený viditeľný betón
- olírovaná dubová parketová podlaha
- dreveno-hliníkové okná v modernom dizajne
- vnútorné dvere zo solídneho dreva vo farbe bielej
- akusticky izolované medzistropy
- podlahové kúrenie
- plne elektrické žalúzie
- energeticky úsporný vykurovací systém s tepelnočerpadlom vzduch a podporeným plynovým hybridným kúrením
- vysoko účinne izolovaná vonkajšia fasáda
- čiastočne integrované LED vnútorné osvetlenie
- všeobecne použiteľný TV-SAT systém
- budúcnosť zabezpečujúci optický kábel pripravený v obytnom komplexe
- moderná vstavaná kuchyňa so sporákom, sklokeramickou doskou, umývačkou riadu a odsávacím systémom
- prípojky pre práčku a sušičku
- klimatizácia
- moderný, súčasný dizajn
- najvyšší energetický štandard KFW40
- práca v dokonalej atmosfére pohodlia
Prenájom iba pre firmy s možnosťou DPH.
Parametre nehnuteľnosti
| Vek | Nad 50 rokov |
|---|---|
| Číslo inzerátu | 976675 |
| Cena za jednotku | 11 € / m2 |
| Stav | Novostavba |
|---|---|
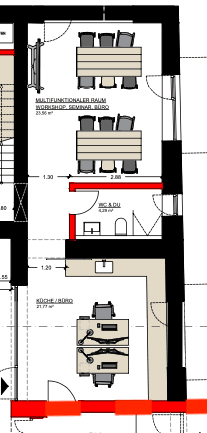
| Plocha kancelárie | 52 m² |
Čo táto nehnuteľnosť ponúka?
| MHD 5 minút pešo |
V okolí nehnuteľnosti nájdete
Stále hľadáte to pravé?
Nastavte si strážneho psa. Ponuky vybrané na mieru dostanete súhrnne 1× denne e-mailom. S Premium profilom máte po ruke rovno 5 strážcov a keď sa niečo objaví, informujú vás obratom.






