Predaj pozemku • 1000 m² bez realitky, Dolné Sasko
- Priamy kontakt: Dieter Büge 01728118000
- Pre súkromných kupujúcich bez provízie! Pre obchodných kupujúcich, ktorí napríklad chcú postaviť viacrodinný dom (prví nájomcovia sú už dostupní), 3 % plus 19 % DPH. Váš stavebný pozemok v exkluzívnej novej štvrti s jedinečnou polohou pri jazere triedy 1a!
- Tieto atraktívne pozemky (napr. dom číslo 21) je možné zakúpiť vrátane mestskej vily ako rozšíreného domu – viď https://www.allkauf-ausbauhaus.de/de/haeuser/hausserie/city-villa/city-villa-4 – za celkovú cenu od 595 000 EUR. Balík zahrnutých služieb pre túto mestskú vilu (kúpna cena od: 355 999 € ako rozšírený dom) s 250 m²: architektonické služby, balíček stavebnej bezpečnosti, balíček kúrenia a elektroinštalácie, trojnásobne zasklené okná vrátane hliníkových rolovacích žaluzií, vzduch-voda tepelná čerpadlá, schody zo skutočného dreva, podlahové krytiny a tapety, meranie vzduchotesnosti, výška osvetleného priestoru 2,75 m, izolačný a obkladový balíček, domová technika vrátane potrubia, kontrolovaná vzduchotechnika s rekuperáciou tepla, sanitárne zariadenia, vnútorné dvere, zárubne a dlaždice, zásuvky!
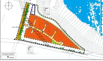
- K dispozícii je len veľmi málo pozemkov pre rodinné domy, dvojdomy a viacrodinné domy. Asi najexkluzívnejšia novostavba v Hemmoor so výhľadom na jazero sa nachádza iba niekoľko minút autom alebo na bicykli od centra Hemmooru (okres Cuxhaven).
Zabezpečte si ešte dnes svoje "filetové" miesto, lebo také územie s výhľadom na jazero už ďalšie nebolo vyčlenené ani schválené! Počet pozemkov je obmedzený na 18.
9 voľných pozemkov pre súkromnú výstavbu rodinného domu (viď WA 1): od 839 do 1 990 m². Pre samostatné a dvojdomy, jednopodlažné (+ prístavné poschodie) až s výškou štítu 8,50 m.
Pozemky pre rodinné a viacrodinné domy (WA2, WA3) od 1 000 m². Výška štítu 10 m (WA 2) a 11,50 m (WA 3) so 2 resp. 3 plnými podlažiami. Koeficient zastavanosti (GFZ): 0,4.
Zažite čoskoro to privilegium a kúzlo ohromujúceho panoramatického výhľadu na krištáľovo čisté jazero Kreide, ktorý si ako náročný vlastník luxusnej nehnuteľnosti alebo nájomca exkluzívneho bytu v najlepšej lokalite budete môcť vychutnať!
Postavte si podľa svojich predstáv svoj vysnívaný dom na priestrannom pozemku od 810 do 1 990 m² v štýle Bauhaus, mestskú vilu, dvojdom alebo, ak ste developer či investor, svoj viacbytový dom na pozemku od 1 000 m²!
Stavebné pozemky v prvej línii pri jazere môžu hostiť jednopozičné, dvojpozičné aj dvojdomy až s 1 plným podlažím + 1 prístavným poschodím, s výškou stavby do 8,50 m, zatiaľ čo pozemky pre rodinné a viacrodinné domy vo druhej línii môžu byť postavené s 2-3 podlažiami do výšky 10 resp. 11,50 m.
Ak hľadáte ako súkromný alebo obchodný kupujúci pozemok so strategickou, centrálnou a zároveň pokojným umiestnením v 1a polohe pri jazere, mali by ste si čoskoro dohodnúť obhliadku! K dispozícii je len niekoľko pozemkov! Upozornenie: V tejto lokalite pri jazere už nebudú schvaľované ďalšie stavebné pozemky.
Kontaktnou osobou pre nájomcov, súkromných aj obchodných kupujúcich je Dieter Büge. Telefónna dostupnosť denne (aj v sobotu/nedeľu) od 9:30 do 20:00! Telefón: 01728118000 alebo info@win-marketing.de
Internet: www.wain-marketing.de
Exkluzívny predaj / kontaktná osoba: Dieter Büge – realitný maklér a odhadca
WIN-MARKETING, vlastnený Dieterom Büge – EXKLUZÍVNA PREDÁVA POZEMKY A NEHNUTEĽNOSTI OD ROKU 1992!
Tešíme sa, že vás od začiatku sprevádzame pri hľadaní stavebného pozemku, ako kupujúceho domu alebo bytu, alebo ako nájomcu bytu pri realizácii vášho projektu.
Jazero Kreide sa nachádza v Dolnom Sasku, v okrese Cuxhaven. Jazero leží v západnej časti mesta Hemmoor-Warstade. Objavte Hemmoor – idylickú oázu na západnom brehu rieky Oste v malebnom okrese Cuxhaven, Dolné Sasko! Toto pôvabné mestečko, obklopené nedotknutou prírodou, vám ponúka nielen vysokú kvalitu života, ale aj ideálnu polohu pre váš nový domov.
Len kameňov hod od obľúbeného jazera Kreide na vás čaká pozemok s rozlohou cca 1 000 m², ideálny pre milovníkov prírody a rekreačných nadšencov. Jazero Kreide nie je len obľúbeným potápačským lokalitom, ale aj miestom na oddych a relax, kde si môžete uvoľniť myseľ a vychutnať krásy prírody.
S približne 8 700 obyvateľmi ponúka Hemmoor priateľskú komunitu a príjemné životné prostredie. Mesto strategicky leží medzi Stade a okresným mestom Cuxhaven, a preto predstavuje ideálny východiskový bod pre výlety do okolia.
Centrum Hemmooru, vzdialené len približne 3000 m, vám ponúka množstvo nákupných možností. V bezprostrednej blízkosti nájdete lekárske ordinácie, autobusové zastávky, materskú školu a všetky školské zariadenia. Všetko, čo potrebujete pre každodenné životné potreby, máte pohodlne a rýchlo na dosah.
Dopravné spojenie prostredníctvom cesty B73 vám umožňuje rýchly prístup do miest Cuxhaven (cca 45 km), Stade (cca 30 km), Bremerhavenu (cca 55 km) a Hamburga (cca 83 km). Železničná stanica v Hemmoore je dostupná za 15 minút autobusom alebo na bicykli a poskytuje vám vynikajúce verejné spojenie.
Využite príležitosť stať sa súčasťou tohto pôvabného malomesta a splniť si sen o vlastnom bývaní v Hemmoore – mieste, ktoré spája kvalitu života, prírodu a komunitu!
Údaje podľa § 5 TMG
WIN-MARKETING, vlastnený Dieterom Büge
Oblasť podnikania: DBI – DIETER BÜGE REALITNOSTI
Prevádzka na základe povolenia podľa § 34c GewO
Adresa:
Süderende 12
D - 21782 Bülkau
Kontakt (Nemecko/Rakúsko/Švajčiarsko):
info(at)win-marketing.de
https://www.win-marketing.de
Telefón: 0172/8118000
Identifikačné číslo pre DPH podľa §27a zákona o DPH: DE204939419.
Mimosúdne riešenie sporov
Európska komisia poskytuje platformu pre online riešenie sporov (OS): https://ec.europa.eu/consumers/odr.
Našu e-mailovú adresu nájdete vyššie v impressu.
Nie sme pripravení ani povinní zúčastňovať sa mimosúdnych riešení sporov pred spotrebiteľskou arbitrážnou inštitúciou.
Zodpovednosť za obsah
Ako poskytovateľ služieb zodpovedáme podľa § 7 ods. 1 TMG za vlastný obsah na týchto stránkach podľa všeobecných právnych predpisov. Podľa §§ 8 až 10 TMG však ako poskytovateľ služieb nie sme povinní dozorovať prenášané alebo uložené cudzie informácie ani vyšetrovať okolnosti, ktoré by naznačovali protizákonnú činnosť.
Povinnosti odstránenia alebo zablokovania používania informácií podľa všeobecných právnych predpisov týmto nedotýkajú našej zodpovednosti. Akonáhle sa o konkrétnom porušení právnych predpisov dozvieme, zodpovednosť vzniká až od okamihu, keď sme mali o danom porušení vedomosť. Pri zistení príslušných právnych porušení okamžite odstránime daný obsah.
Zodpovednosť za odkazy
Naša ponuka obsahuje odkazy na externé webové stránky tretích strán, na ktoré nemáme žiadny vplyv. Preto za obsah týchto stránok nezodpovedáme. Za obsah stránok, na ktoré sú odkazy, je vždy zodpovedný príslušný poskytovateľ alebo prevádzkovateľ. Odkazy boli v čase vzniku prekladu overené z hľadiska možných právnych porušení. Protiprávne obsahy v momente vzniku neboli rozpoznateľné.
Trvalá kontrola obsahu odkazovaných stránok však bez konkrétnych podnetov o porušení zákona nie je možná. Akonáhle zistíme porušenie zákona, tieto odkazy okamžite odstránime.
Autorské právo
Obsah a diela vytvorené prevádzkovateľmi týchto stránok podliehajú nemeckému autorskému právu. Rozmnožovanie, úprava, distribúcia a akákolvek využitie mimo medzí autorského práva je povolené len so písomným súhlasom príslušného autora alebo tvorcu. Sťahovanie a kopírovanie týchto stránok je povolené výlučne pre súkromné, nekomerčné účely.
Pokiaľ obsah týchto stránok nebol vytvorený samotným prevádzkovateľom, budú rešpektované autorské práva tretích strán. Najmä budú cudzie diela riadne označené. Ak sa napriek tomu dostanete do povedomia o porušení autorských práv, prosíme, upozornite nás. Akonáhle zistíme príslušné porušenia, daný obsah okamžite odstránime.
Parametre nehnuteľnosti
| Dostupné od | 30. 12. 2025 |
|---|---|
| Plocha pozemku | 1 000 m² |
| Číslo inzerátu | 976235 |
|---|---|
| Cena za jednotku | 170 € / m2 |
Čo táto nehnuteľnosť ponúka?
| MHD 8 minút pešo |
V okolí nehnuteľnosti nájdete
Stále hľadáte to pravé?
Nastavte si strážneho psa. Ponuky vybrané na mieru dostanete súhrnne 1× denne e-mailom. S Premium profilom máte po ruke rovno 5 strážcov a keď sa niečo objaví, informujú vás obratom.


















