Predaj domu 5+1 • 114 m² bez realitky, Dolné Sasko
, Dolné SaskoMHD 2 minúty pešo • ParkovanieTento riadový dom sa nachádza v žiadanej mestskej časti v krásnom Rotenburgu. Dobre navrhnuté dispozície ponúkajú veľa priestoru pre veľkú rodinu.
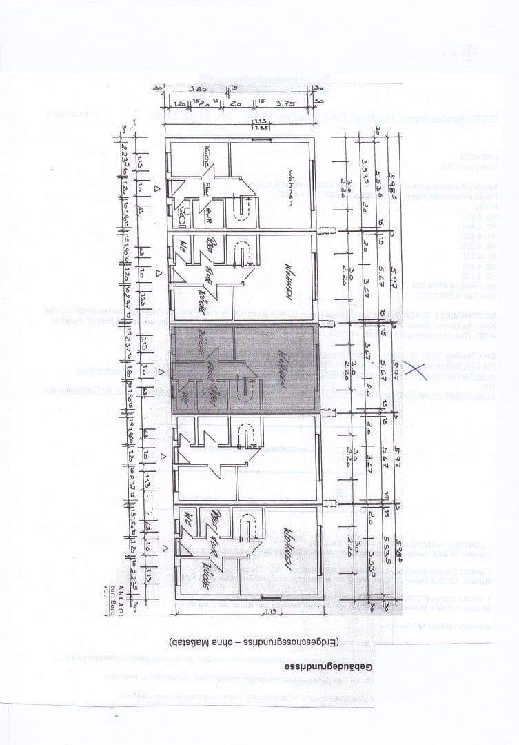
V prízemí domu sa nachádza kuchyňa so vstavanou kuchynskou linkou, veľký a svetlý obývací jedálenský priestor s prístupom na terasu a malú nenáročnú záhradu. Okrem toho je v prízemí úložný priestor a guest WC.
Na hornom poschodí sú tri spálne a veľká kúpeľňa so vstavanou vaňou a sprchou. Na podkroví sa nachádza ďalšia spálňa a úložný priestor s kúrením. Pred domom je k dispozícii parkovacie miesto pre automobil. V blízkom okolí sa nachádzajú školy, škôlky a možnosti na nakupovanie.
Jedná sa o žiadanú lokalitu s veľmi dobrou infraštruktúrnou dostupnosťou. Diaľnica A1 je dostupná len niekoľkými minútami. Je tiež potrebné zdôrazniť blízkosť škôl, škôlok a obchodných možností. Lekárska starostlivosť je v Rotenburgu skvele zabezpečená.
Ďalej existujú veľmi dobré železničné spojenia do Hamburgu a Brém.
- cca 114 m² obytného priestoru a cca 9 m² užitnej plochy
- 5 izieb rozložených na celkovo 3 podlažia
- kúpeľňa so vaňou a sprchou, ako aj guest WC
- slnečná terasa s nenáročnou záhradou
- 1 parkovacie miesto
- Vstavaná kuchynská linka je vybavená novou rúrou, novou keramickou varnou doskou, novým digestorom a chladničko-mrazničkou.
Pri kontaktovaní uveďte prosím svoje telefónne číslo, adresu a e-mailovú adresu. Bez úplných kontaktných údajov nebude reakcia možná.
Všetky ďalšie otázky ohľadom objektu pokojne posielajte e-mailom.
Parametre nehnuteľnosti
| Vek | Nad 50 rokov |
|---|---|
| Stav | Po rekonštrukcii |
| Číslo inzerátu | 976172 |
| Úžitková plocha | 114 m² |
| Celkové poschodia | 3 |
| Dostupné od | 13. 1. 2026 |
|---|---|
| Dispozícia | 5+1 |
| PENB | C - Hospodárne |
| Plocha pozemku | 300 m² |
| Cena za jednotku | 2 798 € / m2 |
Čo táto nehnuteľnosť ponúka?
| Parkovanie | |
| Terasa |
| MHD 2 minúty pešo |
V okolí nehnuteľnosti nájdete
Stále hľadáte to pravé?
Nastavte si strážneho psa. Ponuky vybrané na mieru dostanete súhrnne 1× denne e-mailom. S Premium profilom máte po ruke rovno 5 strážcov a keď sa niečo objaví, informujú vás obratom.



















