Predaj domu 4+kk • 175 m² bez realitky, Dolné Sasko
, Dolné SaskoMHD do minúty pešo • Parkovanie • GarážProvízne bez provízie exkluzívna moderná mestská vila s bazénom, zimnou záhradou a zdvojnásobenou garážou v Ilsede-Gadenstedt
Na predaj je moderná mestská vila z roku 2020, situovaná v žiadanej obytné štvrti Ilsede-Gadenstedt. Samostatne stojaci rodinný dom zaujme svojou čistou architektúrou, priestrannými miestnosťami, vysoko kvalitným vybavením a mimoriadne energeticky úspornou konštrukciou podľa štandardu KfW s energetickou triedou A+ a taktiež veľmi nízkymi nákladmi na energie.
Na pozemku o rozlohe 707 m², ktorý je celkom oplotený, ponúka nehnuteľnosť obytnú plochu približne 175 m² s premysleným pôdorysom a veľkým komfortom pre rodiny.
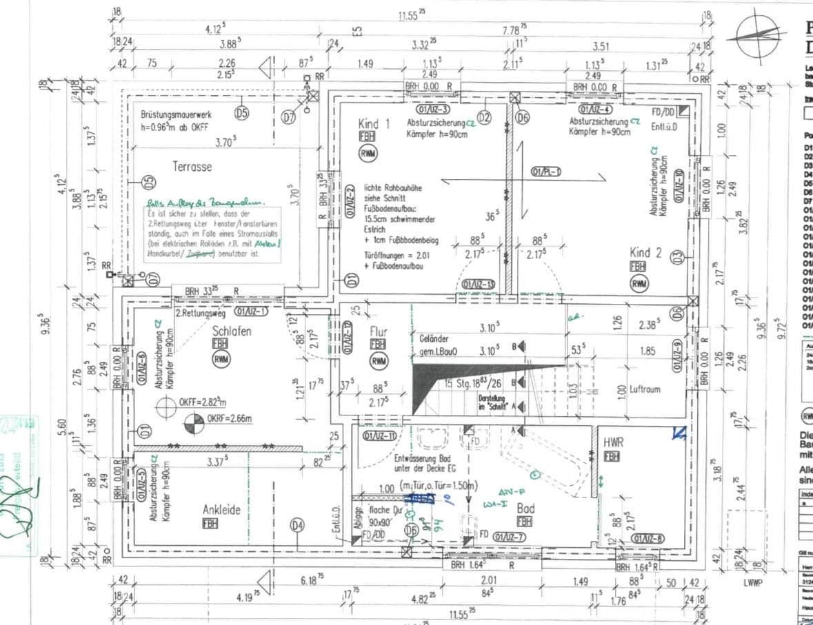
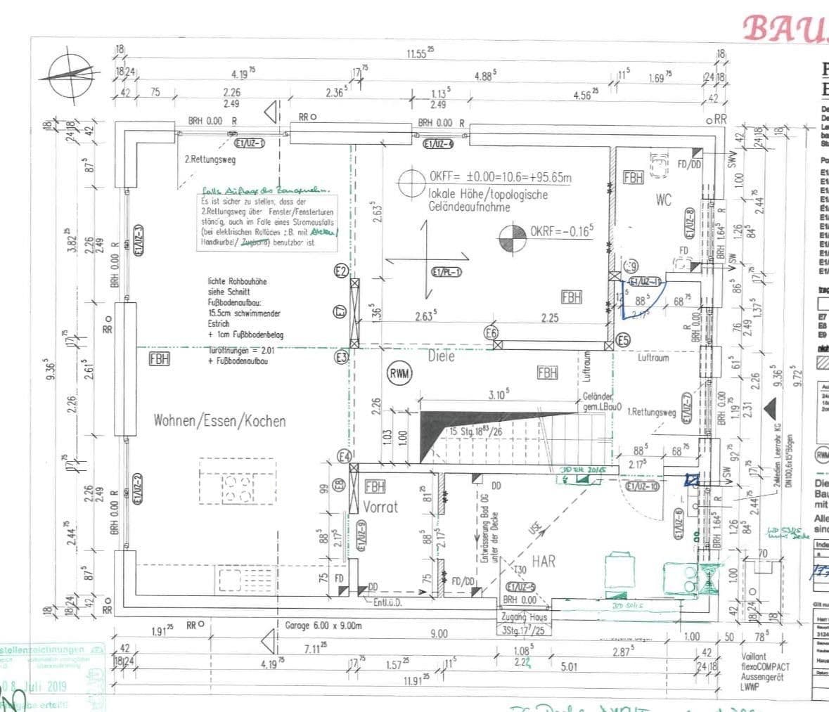
Bývanie a pôdorys
Otevřený obytný priestor spája kuchyňu, jedáleň aj obývaciu izbu do svetlého centrálneho bodu domu. Kvalitná kuchyňa s ostrovčekom sa dokonale začleňuje do moderného konceptu bývania. Galéria v predsieni a schody z pravého kameňa s priehľadnou zábradlím podčiarkujú exkluzívny charakter nehnuteľnosti.
Na poschodí sa nachádzajú dve detské izby, spálňa so samostatným šatníkom, dve moderné kúpeľne (kompletne obložené dlažbou) a samostatná práčovňa s práčovňou.
Exteriér a vychytávky
Láskavo upravená záhrada ponúka skutočný skvost:
Zabudovaný bazén (6 × 3 × 1,50 m) s detsky bezpečným prekrytím (bazénový domček). Bazén beží plne automaticky s automatizovaným dávkovaním, takže nie je potrebné manuálne meranie ani doladzovanie.
Okrem toho dom disponuje:
• Veľkou zimnou záhradou (cca 5 × 4 m), ktorú je možné úplne otvoriť
• Balkónom s rozlohou cca 13 m²
• Terasou na hornom poschodí
• Zdvojenou garážou (cca 6 × 9 m) s priamym vstupom do domu
• Ďalším parkovacím miestom pri ulici
Technika a energie
• Tepelné čerpadlo (WP)
• Podlahové kúrenie v celom dome
• Energetická trieda A+
• Pripravená na inštaláciu fotovoltaickej elektrárne
• Žiadny pivničný priestor, žiadna podkrovná miestnosť (optimálne využitie plochy)
Nehnuteľnosť sa nachádza v pokojnej a udržiavanej obytné štvrti v idylickej časti Gadenstedt, ktorá patrí k obci Ilsede v okrese Peine. Okolie je charakterizované prevažne rodinnými domami, množstvom zelene a príjemným, ustáleným susedstvom. Tu sa stretáva vidiecka idylka s vysokou kvalitou bývania a života – ideálne pre rodiny, páry aj tých, ktorí hľadajú pokoj.
Doprava obmedzená obytná ulica zabezpečuje uvoľnenú a bezpečnú atmosféru ďaleko od priechodnej premávky. Zároveň je infraštruktúra vynikajúco rozvinutá: možnosti nákupu bežných potrieb, pekárne, lekári, lekárne a ďalší poskytovatelia služieb sú dostupní v priebehu niekoľkých minút. Materské školy, základná škola a ihriská sú taktiež v krátkej vzdialenosti, čo robí lokalitu mimoriadne prívetivou pre rodiny.
Aj z hľadiska dopravy lokalita vyniká. Nedaleko sa nachádzajú spolkové cesty B1 a B444, ktoré umožňujú rýchle spojenie s mestami Peine, Brunswick a Hannover. Preto je táto lokalita ideálna pre dochádzajúcich, ktorí chcú bývať v prírode, ale zároveň ocenia dobrú dostupnosť mestských centier. Verejná doprava dopĺňa mobilitu v rámci regiónu.
Ďalším plusom je prírodné okolie. Rozľahlé polia a lúky, ako aj početné chodníky a cyklotrasy, pozývajú k relaxačným aktivitám vonku a poskytujú vysokú recreačnú a oddychovú hodnotu priamo za dverami. Športové a rekreačné možnosti v obci dopĺňajú túto všestrannú lokalitu.
Celkovo lokalita pôsobí výborne vďaka skvelej kombinácii pokoja, vynikajúcej infraštruktúry, skvelej dopravnej dostupnosti a prírodného prostredia – obytné miesto, ktoré ponúka vysokú kvalitu života.
Parametre nehnuteľnosti
| Vek | Nad 50 rokov |
|---|---|
| Dispozícia | 4+kk |
| PENB | A - Mimoriadne úsporné |
| Plocha pozemku | 707 m² |
| Cena za jednotku | 3 857 € / m2 |
| Stav | Veľmi dobrý |
|---|---|
| Číslo inzerátu | 976162 |
| Úžitková plocha | 175 m² |
| Celkové poschodia | 2 |
Čo táto nehnuteľnosť ponúka?
| Balkón | |
| Parkovanie | |
| Terasa |
| Garáž | |
| MHD 0 minút pešo |
V okolí nehnuteľnosti nájdete
Stále hľadáte to pravé?
Nastavte si strážneho psa. Ponuky vybrané na mieru dostanete súhrnne 1× denne e-mailom. S Premium profilom máte po ruke rovno 5 strážcov a keď sa niečo objaví, informujú vás obratom.


























